查看完整案例


收藏

下载

翻译
Tam Dao villa is a vacation villa located in a valley at the foot of the mountain in Tam Dao town. The front of the house is east-facing, welcoming the dawn and the rear looks toward the golf course valley in the west,watching the sunset.
The house is designed with 3 stories, descending towards the valley. The house has a simple architectural shape with three square boxes placed on top of each other. The biggest box is the second floor with dimensions of 22m x 22m x 3.3m. Ground floor and basement boxes are 16m x 16m x 3.3m. There is a void of 6.5m x 6.5m in the centre of the boxes where a fish pond is located on the ground floor.
The entrance of the house is from the foot of the mountain, the architects designed the main hall on the ground floor , the front and the rear to be extended and connected to the courtyard, which helps the house not hide the valley landscape for everyone could see from the main road.
The courtyard and the pond also take part in ventilating to bring breeze into the house. The hall is designed open, is a place to sit down, have some tea, relax and feel the changing moments of the weather, the scenery, the sunshine and the rain.
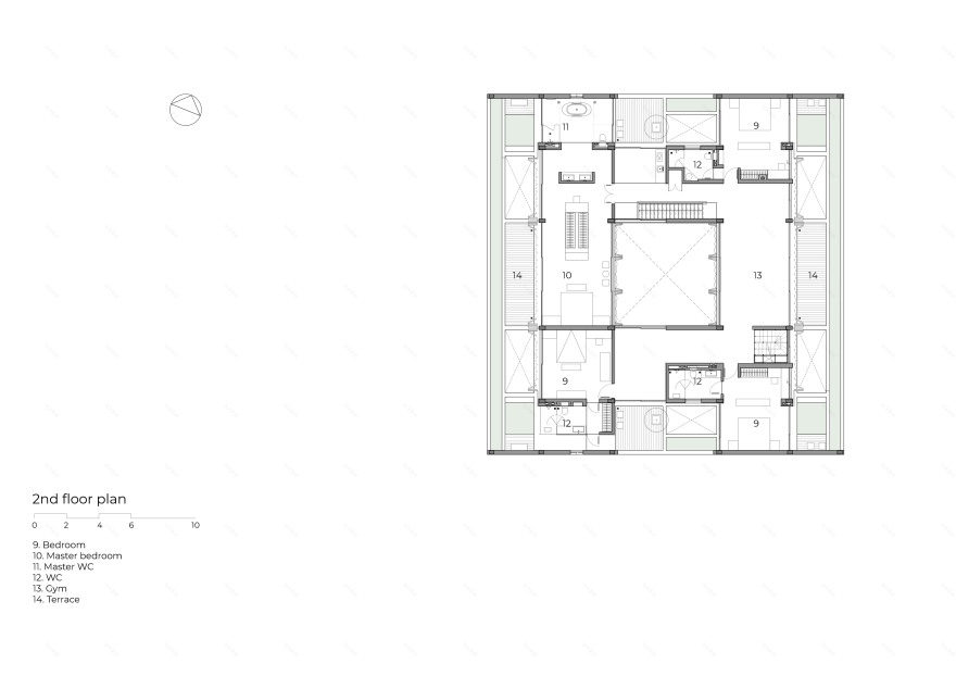
The ground floor is the reception area and the main kitchen connected to the outdoor BBQ area. The basement consists of 2 bedrooms with views of the valley, a bar area and a wine cellar where people can watch the sunset and fish swimming through the large aquarium. The second floor accommodates the master bedroom and 3 other bedrooms.
The empty and the solid spaces are interlocked to ventilate and get more natural light into every corner of the house. The views are penetrated through many layers of voids creating the depth of the space. The rooftop is a camping area where people can experience the early frost walking through from the mountain to the valley and back.
The long horizontal terraces are perforated to reduce the span avoiding the feeling of being too long and to create vertical view. These terraces also create the buffer space or blurred boundary between the indoor space and the outside scenery.
客服
消息
收藏
下载
最近


























































