查看完整案例

收藏

下载
随着线上购物愈发便捷,当下的商业空间不再是单纯的消费场所,其功能早已从“消费”转向“体验”乃至“文化”。
再来茶饭中心位于厦门中华城,甲方是群喜好潮流文化的年轻人,他们拥趸时代的浪潮,希望通过介入设计,为餐饮品牌赋能,创造新的商业价值。
与之前的店面不同,作为品牌一次全新的探索与尝试,3.0版在体量以及定位上都进行了升级。
01
商业赋能
借设计创作新的品牌价值
设计再来茶饭中心之前,我们首要考量的不是美感与功能,而是分析客群、运营、造价,从商业逻辑反推到空间设计。这么做,既保障经营方的品牌效益和空间呈现,又能体现顾客的消费态度,满足其心理诉求。由此,设计框架变得清晰、有序。
▲轴测图
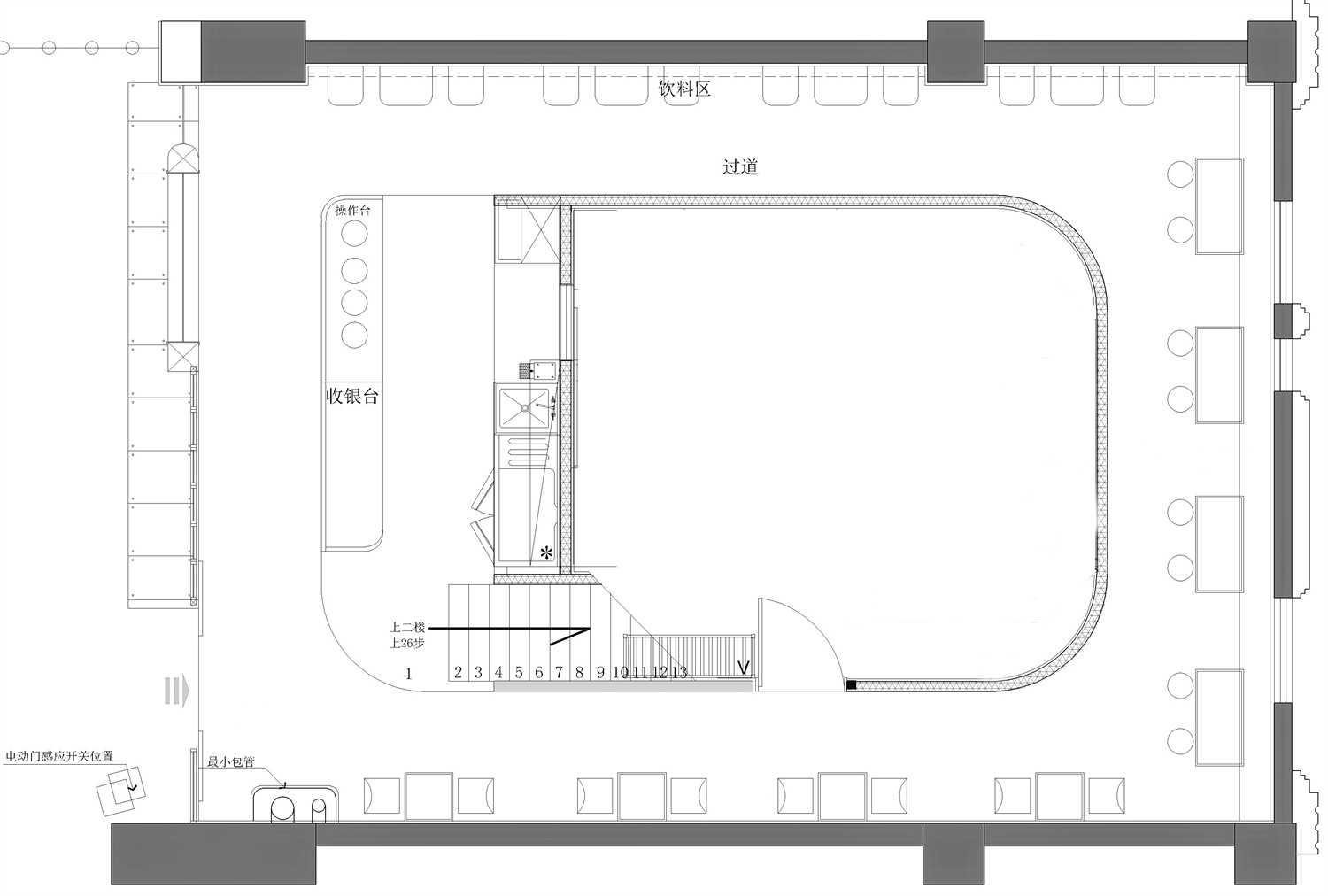
我们希望做一个与周遭和亦而不同的用餐空间。餐厅分为一、二两层,一层的面积在一百平方左右,我们将黄金位置的一楼规划为厨房、餐区和周边产品贩卖区。
同时,打造一个窗口与街面进行互动,模糊内与外的边界。人坐在窗边,透过中间的窗口远眺,望着人来人往,被氛围深深地打动,时间似乎慢了下来;窗外,过往人群可以驻足逗留、休息、亦或是点一杯柠檬茶,在门口摆上几张桌椅,悠然闲适地度过午后时光。满足餐厅自我需求的同时也营造出饱满的状态。
收银区与二楼的楼梯是同个体块,楼梯设计采用“小径通幽”的概念。在保证通行的基础上,通过灯光设计,尽可能地把比例拉窄,引发窥探的欲望,从而为二楼空间做自然的引导,也为接踵而来的“豁然开朗”埋下伏笔。
02
新旧对话
让现代在传统中野蛮生长
店铺位于中华城内街,如何处理特殊的地理位置与周边环境的关系成为设计的一个关键。
街区保有旧时南洋建筑的特色,衔接门店的结构立面裹覆着烙有时代印记的红砖元素,于是我们就地取材,将大块面的砖红色调运用于门面与内饰,使得铺子与周遭环境自然过渡,和谐地融入街区。
门头利用不锈钢支棱起架构,覆上网面,原建筑结构隐隐约约。这样做,一方面有利于控制造价,另一方面,令门头与周围建筑融合的同时,保有自己的特色,真正做到“和而不同”。
▲轴测图
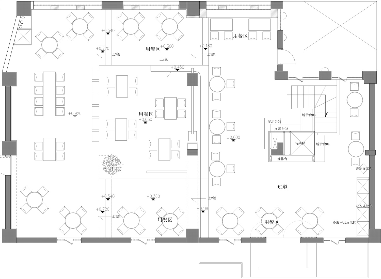
二楼原来是一个毛坯空间,裸露的红砖混泥土突兀、粗糙。综合造价因素,我们试图从不修边幅的材料中,从毛糙沉重的粗野感里,寻求形式上的出路。于是对空间结构进行重组和梳理,在不更动原结构的基础上,于西侧用餐区大胆地放置了三根斜向结构梁,让粗犷主义在这里演绎得更为疯狂、彻底。镜面反射的加持下,结构梁虚实交叠,在缥缈的氛围中无限延伸,模糊空间边界,呈现不可名状的秩序感。
多种材料进行碰撞与冲突也是项目的一个重点。裸露的红砖、粗犷的水泥与细腻的镜面、不锈钢进行较量,在冲突中寻求新的平衡,在斑驳和瑕疵里生发美感,打造独特又和谐的空间氛围。
03
文化碰撞
保留对生活的另一种想象
港式茶餐厅最早从街头小店一路高歌到人均上千的酒店用餐环境,形式各异,但不变的是茶餐厅自带的精神内核,它效率/放松/休闲/自由/不变,刻在每个热爱它的人骨子里。
这令人想到了同属街头艺术的“涂鸦”,诞生于非固定的媒介,不同的艺术家,手中有不一样的涂鸦表现形式,但始终不变的是它的精神。
鲜明的色彩触发强烈的视觉张力,成就一个表达自我与态度的出口。
将传统茶餐厅的饮食文化和涂鸦艺术文化结合,碰撞出新的文化体验,这既是文化的思考也是消费升级的体现。该想法得到了甲方的认可,我们提供意向思路,通过艺术家再创作,最终呈现属于再来的标识性图案。
此外,闽南这片土壤保留着质朴的表情,我们以空间为介质,植入复合概念,即以餐饮为主线,同时承载产品贩卖、艺术展示等功能。试图从视、听、嗅、味、触五感上,给予顾客全然不同的体验,借以传递更多元的品牌文化。
从1.0的崇尚复古,到2.0的品牌成型;再到3.0的品牌升级,我们见证一个老文化的茶餐厅在新时代中焕发新生;在这个摸索的过程中,个人也深有感触,无论是看着自己的作品慢慢完善,还是团队日趋成熟,都值得欣喜。
▲一层平面图
▲二层平面图
项目信息——
项目名称:再来茶饭中心3.0
项目面积:300平米
项目地点:福建·厦门
设计单位:DCD 大成设计
设计总监:何美春
照明设计:梁致光品
涂鸦艺术家:ABOMB涂鸦工作室
摄影:RICO
客服
消息
收藏
下载
最近



















