查看完整案例


收藏

下载
Modern Pour-Over Tea (现代手冲茶)——是猿抱子古树茶旗下面向年轻人的原叶手冲茶品牌,茶叶均产自品牌自有的低密度自然免耕茶园。
Modern Pour-Over Tea is a brand of whole leaf hand brewed tea for young people under the banner of Yuan Bao Zi Ancient Tree Tea. Its tea leaves are produced from the brand’s own natural no-till tea plantation in low density.
使用质朴的清水模,除了美学上的企图,更能让人们心中只留下对空间强而有力的感受。——安藤忠雄
Using the pristine smooth-as-silk concrete is,To leaves a strong and powerful impression of space on people’s mind,As well as to achieve aesthetic attempts.——Tadao Ando
回应原叶茶的自然风味特征,MOC也希望在空间上回归本质,结合空间结构为消费者提供一个褪去装饰的纯粹空间。
Responding to the natural flavor profile of whole leaf tea, MOC also hopes to return to the essence of space by providing consumers with a pure space that is free from decoration.
▲主入口视角 View from the main entrance
清水混凝土是现代主义的一种表现手法,其通过对传统混凝土材质进行加工,既保留了质朴的特点同时增加了细腻的质感。
Concrete is an expression of modernism. By processing this traditional material, it does not only retain the rustic characteristic, but also adds a delicate texture.
自然免耕茶园生长的茶叶,经过一系列加工后制成保留原始风味的茶叶——二者的共性使MOC选择清水混凝土作为空间的主材。
Tea leaves grown in natural no-till tea gardens are undergone a series of processes to keep its original flavor. The commonality between the concrete and tea leads to MOC’s option for fair-faced concrete as the main material for the space.
▲空间结构造型细节 Details of space structure and modelling
结合空间结构和功能需求,MOC在空间中以清水混凝土体块对空间进行划分,而结构体块上方则以框架型灯膜覆盖,框架柔和了灯光,光线在体块之间渗透下来,勾勒出禅意。
Based on the structural and functional requirements, MOC divides the space with fair-faced concrete blocks and covers the top of structural blocks with frame-type light membranes. The frame softens the light and the light penetrates down between the blocks, outlining the Zen feeling.
▲轴测分析 Axon
▲光线从结构体块之间柔和的洒下 Light is softly illuminating between the structural blocks
在纯粹建筑感受的空间中,一个玻璃茶室被置入其中,茶室是传统茶道区,精致华丽的黄金屏风透露与空间中极简风格的碰撞,两者差异巨大又和谐相处。
In the pure and architectural space, a glass tea room is in place for traditional tea ceremony. The fine and gorgeous golden screen clashes with the minimalist style of the space, which looks so different, but harmonious.
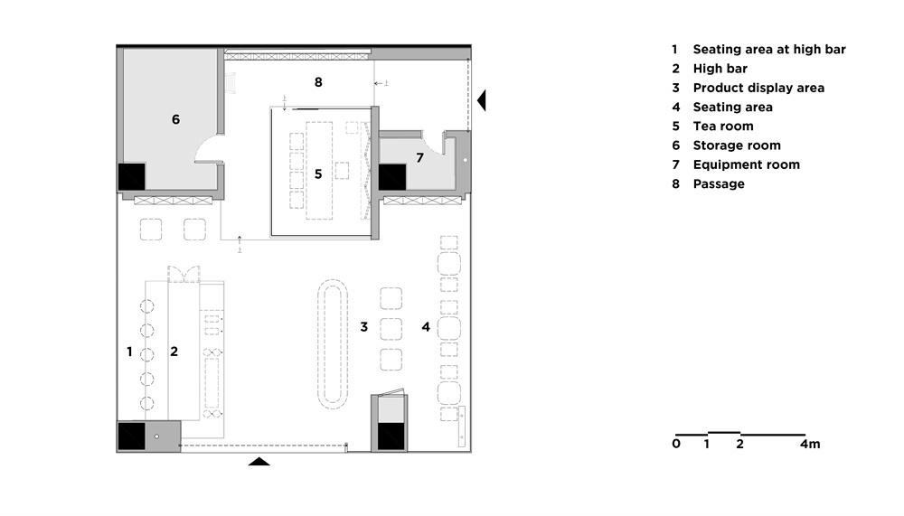
▲平面图 Plan
入口一侧极简的吧台则与空间呼应,吧台区更适合年轻人的饮用习惯,当人们在吧台前、天光下品茶,同时也可以看到中间玻璃茶室,感受到传统茶道的魅力。
The minimalist bar on the entrance side echoes the space. The bar area is more in line with young people’s drinking habits. When people are sipping tea in front of the bar and under the sky light, they can also see the middle glass tea room and feel the charm of traditional tea ceremony.
▲极简的吧台形式,搭配品牌自有的手冲茶具 Minimalist bar with the brand’s hand-brewed tea set.
▲专属定制的茶罐陈列架 Exclusively custom-made display for tea canisters.
项目信息——
项目名称: 现代手冲茶
主创设计:梁宁森、吴岫微
项目管理:杨振钰
设计团队:胡侨、古耸宇
设计周期:2021.5-2021.8
竣工:2021.10
项目地址:湖北武汉市东方茶港1层
面积:136㎡
主材:混凝土卷材、不锈钢、瓷砖、实木地板
业主:现代手冲茶
翻译:柯清雅
摄影:小云
Project information——
Project Name: Modern Pour-Over Tea
Chief Designers: Sam Liang, Vivi Wu
Project Director: Yang Zhenyu
Design Team: Hu Qiao, Gu Songyu
Design Phase: May – August 2021
Completion: October 2021
Location: 1F Tea Port of the Orient, Wuhan, Hubei
Area: 136㎡
Materials: Concrete waterproofing membrane, stainless steel, tile, solid wood flooring
Client: Modern Pour-Over Tea
Translator: Coco
Photography: Xiaoyun
客服
消息
收藏
下载
最近























