查看完整案例


收藏

下载
晨昏之间的转变,差一分,到六点。「5:59」是成都老牌餐饮集团「Burano布拉诺」旗下新的西餐品牌,以早午餐和酒吧的全时餐厅形态亮相,同时也是一次有趣的全新尝试。
Between dawn and dusk, one minute to six.「5:59」 is a new brand of Western food under the old Chengdu restaurant group “Burano布拉诺”. It is presented in the form of a full-time restaurant for brunch and bar. It is also an interesting new attempt.
▲室内概览
“航站楼”
当下航站楼的设计中,总是不乏现代、前卫和科技感的元素。此次设计的主要概念也受到了机场航站楼的启发。
There is always a sense of modernity, avant-garde and technology in the design of the current terminal. The main concept of the「5:59」design was also inspired by the airport terminal.
▲入口
圆拱形大门入口,白色和橙色材质搭配玻璃,刚柔并济。原始建筑格局拥有两面通透的采光,利用如同机场航站楼一样的大面积落地玻璃,开敞明亮。
Circular arch entrance, white and orange material collocated with glass, and with hardness with softness.The original architectural pattern has transparent lighting on both sides, and is open and bright with a large area of floor-to-ceiling glass like the airport terminal.
▲环形吧台
环形吧台是一层空间的中心,座位区域也是围绕着吧台辐射排布,提升空间体验的舒适度。
The circular bar counter is the center of the 1F space, and the seating area is also arranged around the bar counter to enhance the comfort level of the space experience.
▲回形走廊
▲就餐区
▲聚碳酸酯板透光的属性,可以实现各种光线的变化,以应对不同时段的经营属性
回形走廊,以中庭天井和景观为中心,座位依次排布。长廊使用聚碳酸酯板曲线分割设计,增加了曲径通幽的趣味。而聚碳酸酯板透光的属性,可以实现各种光线的变化,以应对不同时段的经营属性。
The circular corridor, centered on the atrium patio and landscape, is lined with seating. The corridor uses Polycarbonate Translucent Panel curve partition design, which increases the interest of winding and secluded path. But the Polycarbonate Translucent Panel transmittance attribute, may achieve each kind of light change, in response to the different time period management attribute.
▲楼梯
通过双向楼梯来到二楼,才是整个空间的“重头戏”,也是网传“落日餐厅”的由来。
Through two – way stairs to the second floor, is the highlight of whole space, and is where the so-called “sunset restaurant” from.
▲光线透过橙色聚碳酸酯板照进空间里
光线透过橙色聚碳酸酯板照进空间里,形成了一种温润的日落观感。昏昏黄黄,层次分明。
Light shines through the orange Polycarbonate Translucent Panels into the space, creating a warm sunset feel. Faint yellow, and also layered.
▲就餐区
与一层不同的是,二层将开敞座位区放置在中间,洗手间、包厢和吸烟室等功能区域则分散在外围排布。这样的设置,使得以上三个功能区域分别获得了独立又独特的场景感。
Unlike the first floor, the second floor has an open seating area in the middle, while functional areas such as bathroom, balcony and smoking room are scattered around the periphery. Such setting gives the above three functional areas an independent and unique sense of scene.
▲吸烟室
“机场吸烟室”
二层吸烟室的设计,形成了弧形的密闭空间。「5:59」在门头是标识,背后则变为巨大的电子时钟。在温暖轻松的环境中,慢慢显示著时间的流逝。
The smoking room of second floor is designed to form a curved enclosed space. 「5:59」is a sign on the front of the door and a giant electronic clock on the back. In a warm and relaxed environment, slowly shows the passage of time.
空间与人永远是相辅相成的共生关系:空间给人以载体,人还空间以气场。好的空间不但可以留住人,还能将人留得更久一点。最终能够“留久一点”的却不只是设计或空间本身,而是空间的体验。
Space and human beings are always symbiotic relations with each other: space gives people carrier, and people return space with aura.Good space can not only keep people, but also keep people a little longer.It’s not just the design or the space itself that ends up “making people stay longer,” but the experience of the space.
▲二层空间局部细节
“机械感”
「5:59」在命名时,想表达的就是晨昏交替的过程。它总是动态变化着,并且表达了从工作到休息状态转变的仪式感。
When naming「5:59」, we want to express the process of morning and night alternations. It is always dynamic and expresses a ritual transition from work to rest.
当时间来到五点五十九分,灯光变暗,音乐更换,酒架转动,桌灯点亮。来「5:59」给她一杯Mojito吧,这样你才能阅读她微醺时的眼眸。
When it comes to 5:59, the lights dim, the music changes, the wine racks turn and the table lights on.Get her a Mojito at 5:59 so you can read her tipsy eyes.
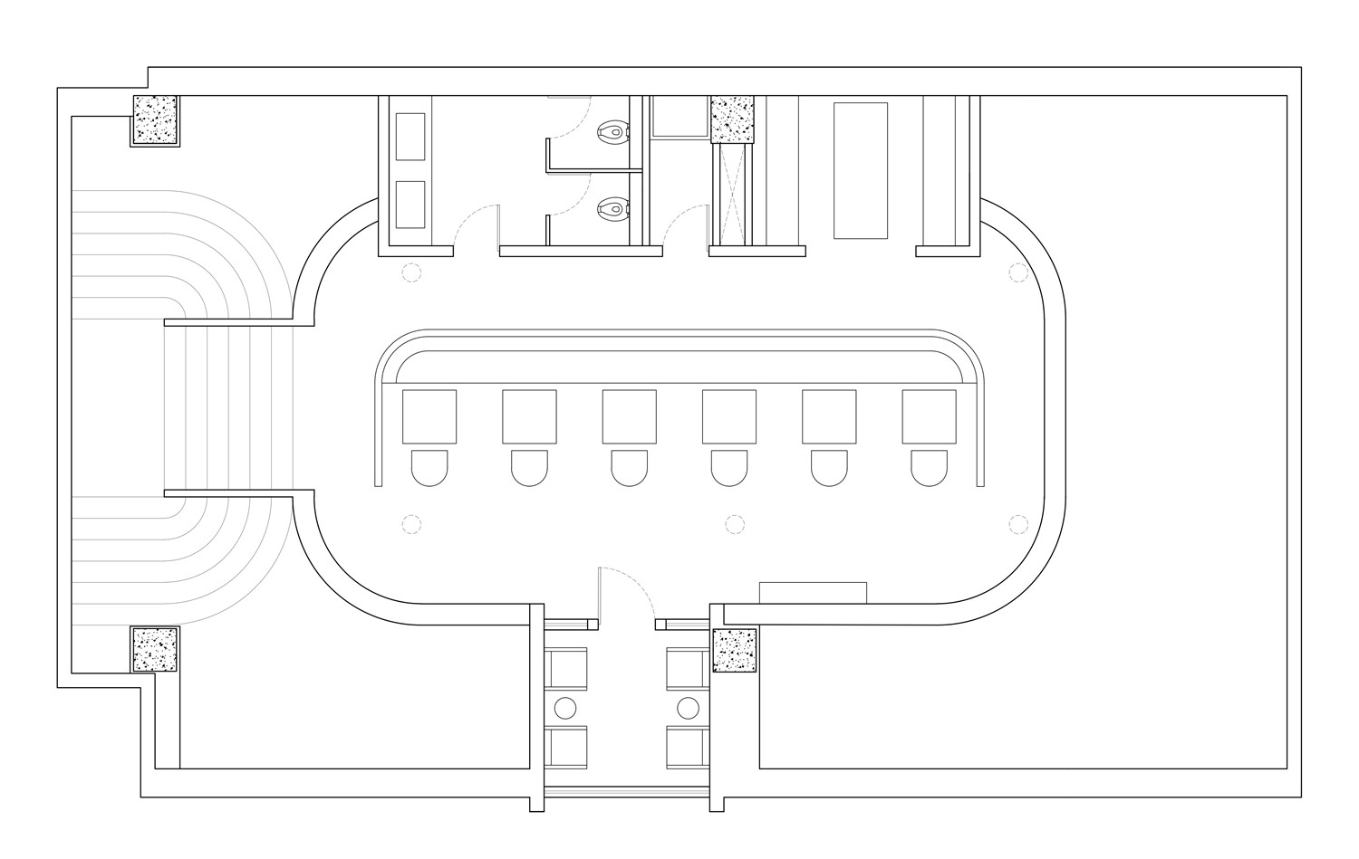
▲一层平面图
▲二层平面图
项目信息——
项目名称:5:59 Brunch & Bar
设计公司:iZ Design Studio
面积:室内面积245sqm,室外面积210sqm
项目地址:成都
品牌设计:有幸设计
品牌策划:山与海品牌管理机构
摄影:Here Space Photography.
Project information——
Project Name: 5:59 Brunch & Bar
Design company:iZ Design Studio
Area: Indoor: 245 sqm,Outdoor: 210 sqm
Project Location:Chengdu, China
Branding Design:LuckyDesign
Brand Strategy:M&O
Photographer: Here Space Photography.
客服
消息
收藏
下载
最近












































