查看完整案例


收藏

下载
美式复古风格是上海彦文建筑工作室(Atelier A)的新作BEES‘ KNEES餐厅的设计主题,这两家餐厅分别位于济南万象城和恒隆广场,采用统一设计装饰风格和主题,同时根据不同的地理位置,对空间处理和材料使用进行了相应调整。
American Retro style is the theme of the two BEES’ KNEES Restaurants, the new projects of Atelier A in the MixC Shopping Mall and Hang Lung Plaza (Parc 66) in Jinan.
BEES‘ KNEES餐厅的设计灵感源自美国震教徒(the Shakers)质朴天然的美学理念,该教派虽于19世纪末逐渐消亡,但对美式建筑装饰和北欧当代设计影响深远。Atelier A追溯其本源,将BEES’ KNEES两家餐厅打造成简约朴实、崇尚功能与质感的咖啡馆兼轻餐馆,这也与Atelier A一贯的实用主义设计风格吻合。
The design is inspired by the natural and austere aesthetics of American Shakers, which has a great impact on American decorations and contemporary Scandinavian design. Both of the BEES‘KNEES restaurants feature simple, practical and elegant decorations in accordance with the Shakers’ style as well as Atelier A‘s philosophy that values utility and quality.
恒隆店BEES’ KNEES at Hang Lung Plaza (Parc 66)
▲BEES‘ KNEES恒隆店
BEES’ KNEES at Hang Lung Plaza (Parc 66)
恒隆店的主题色为橄榄绿色,与餐厅logo色一致,墙面保留灰色原始砌块砖,同时在花槽、立柱等局部用粉红色瓷砖点缀并挑亮自然朴素的整体色调。
The theme colour of the Hang Lung restaurant is olive green, the same as its logo. The original walls of grey concrete blocks are preserved. Plant troughs and columns are paved with pink tiles to lighten the natural and simple atmosphere.
墙上的横向分割线条,是震教派室内装饰的典型元素,除勾勒线条,使墙面比例匀称之外,横杆上的挂钩排可悬挂锅具、砧板等,既起到装饰作用,又节约储存空间,给餐厅增添了温馨宜人的居家氛围。
The ‘peg rail’, a horizontal pelmet, is a typical element of Shakers decoration. The rail leaves a proportionally agreeable line on the walls and the pegs can be used to hung pots, pans and chopping boards to save storage space and create a homelike atmosphere.
▲墙上的横向分割线条,是震教派室内装饰的典型元素The ‘peg rail’, a typical element of Shakers decoration
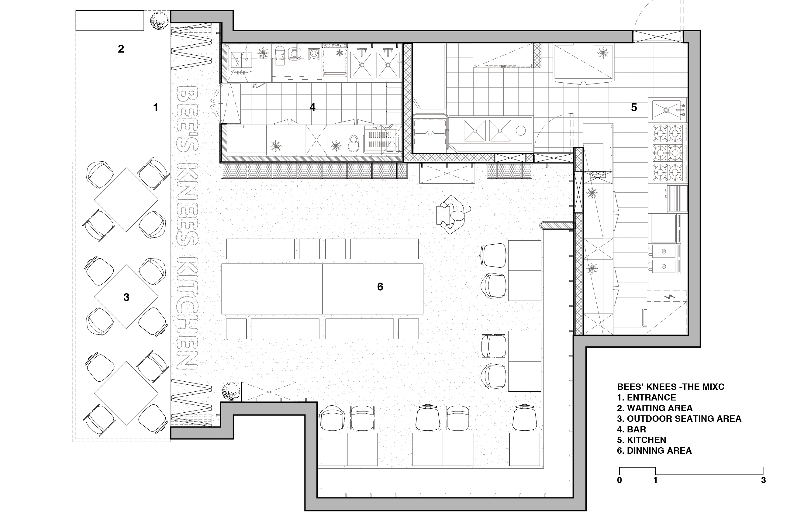
在空间布局上,为在商场内打造类似室外露台,设计师将餐厅外立面内退,内部采用木制地板和白色天花,外部地板则用水泥自流平,配合对应的绿色吊顶 ,以划定这一 “室外”空间。厨房以功能性模块的方式嵌入内部空间,与外立面连接,既和开放的外部露台呈对比,又保障空间的延续性和消防路径的畅通。
In order to create a terrace within the shopping mall, the façade has been moved inwards. A distinction is made between the ‘indoor’ space with wooden floor and white ceiling and the ‘outdoor’ terrace with cement floor and green ceiling. The back of house is placed as a functional block. One of its walls is connected to the façade as a contrast to the open terrace, and ensures the continuity of the space and directness of the emergency route.
▲厨房以功能性模块的方式嵌入内部空间The back of house as a functional block
▲BEES‘ KNEES恒隆店BEES’ KNEES at Hang Lung Plaza (Parc 66)
万象城店BEES’ KNEES at the MixC
▲BEES’ KNEES万象城店BEES‘ KNEES at the MixC
万象城店则将露台空间延伸至商场过道,由于位于B1层,按消防规定无法使用木制材料进行装饰,因而采取灰黑色热轧钢用于层板、轨道和装饰线条,与商场统一建设的外立面材料相呼应。厨房部分新建墙体使用暖色调的红砖来柔和整体空间的调性,其余部分墙面尽可能保留商场原始砌块砖。
As for the MixC restaurant, slight adjustments are made in space and materials. Its terrace is extended to the corridor, which is available for use. As it is located on the B1 floor, wood cannot be used for decoration according to fire safety regulations. Therefore, hot rolled steel is used for shelves, rails and decorative lines to conform to the uniformed façade of the shopping mall. The original concrete blocks are kept as much as possible except for the newly built part which is paved with warm red bricks to soften the tonality of the space.
▲墙体部分使用红砖柔和整体空间的调性,其余部分尽可能保留原始砌块砖The original concrete blocks are kept as much as possible except for the newly built part which is paved with warm red bricks to soften the tonality of the space.
▲层板、轨道和装饰线条采用热轧钢Hot rolled steel used for shelves, rails and decorative lines
▲BEES’ KNEES万象城店BEES‘ KNEES at the MixC
项目信息——
建筑事务所:上海彦文建筑工作室
位置: 中国济南万象城、恒隆广场
分类:餐厅
建筑师:朱彦文
团队:王媞
面积:90 / 150 平方米
竣工:2019年9月
摄影:田炳珉
Firm : Atelier A + Be opposite architecture
Location: Plaza 66 and The MixC, Jinan, China
Category: Restaurant
Project Architect: Yanwen (Lily) Zhu
Team: Rachel Wang
Area: 90 / 150 m2
Project Year: 2019
Photographs: Byungmin Jeon
客服
消息
收藏
下载
最近















