查看完整案例


收藏

下载
为扩大新利马市,在大贝洛奥里藏特,Osso餐厅在维拉达塞拉开设了一个新店。
这家新餐厅有250个座位,采用了铁、玻璃、皮革和金属丝面板,将现代和乡村的元素融合在一起。
整个项目的核心是parrilla,由玻璃幕墙围成的烧烤架,让每个人都能看到厨房的氛围。从这个特殊的元素中产生了构成餐厅空间的所有项目的概念。
墙壁和天花板的颜色以及琥珀色的灯光给顾客带来一种舒适的感觉。刀的钢材和切肉板的木材也被整合在结构、柜台和家具中。
Prodomo Design为餐厅设计了独特的家具,从经过热处理的桉树板制成的桌子到用环保皮革制成的座椅,他们什么都用。由格列柯设计公司专门为餐厅设计的金属板制成的巨大的格栅天花板一定会吸引顾客的注意。
在严整的网格面板上,有几层泡沫覆盖着透明的织物,以便更好地反射光线。画在黄色,红色和橙色的梯度,面板像火焰。椅子完全由设计师Olavo Machado Neto设计,由钢结构制成,座椅和靠背均为钢板。
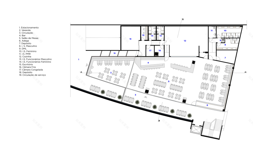
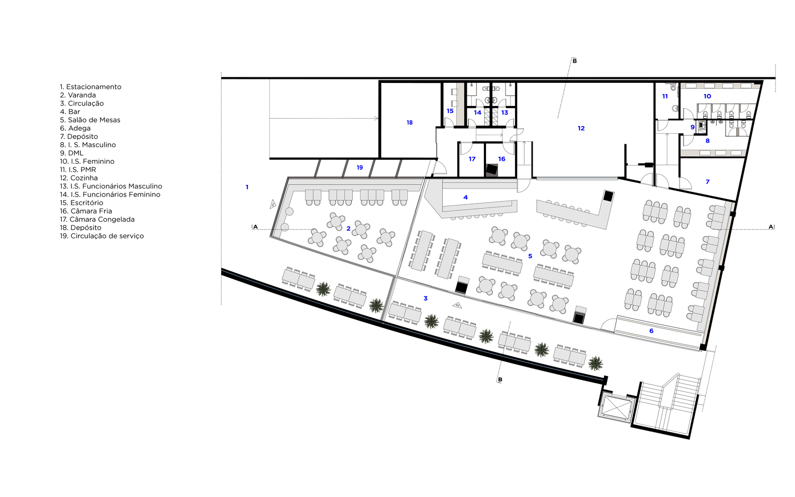
▲平面图
▲剖面图
▲立面图
项目信息——
工作室:Gustavo Penna Arquiteto e Associados
位置:Nova Lima – MG, 34000-000, Brazil
团队:Gustavo Penna, Norberto Bambozzi, Laura Penna, Letícia Carneiro, Alice Leite Flores, Fernanda Tolentino, Henrique Neves, Gabriel de Souza, Eduardo Magalhães, Julia Lins, Ada Penna, Larissa Freire, Sávio de Oliveira, Rodrigo Gomes
实习生:Gustavo Monteiro, Wesley Gonzaga, Caio Vieira, Mariana Carvalho, Rafaela Renno, Felipe Franco
项目面积:508.0 m2
摄像:Jomar Bragança
年份:2017
客服
消息
收藏
下载
最近

























