查看完整案例


收藏

下载
FOODOO是都市酒吧连锁店“This is Pivbar”的一部分,位于乌克兰基辅的Levyi Bereg住宅区,是一家休闲风格的餐厅。包括了厨房区域,一共仅占地130平方米,可容纳54位客人。入口处有一个外带区,顾客可以坐在圆柱形座位上等待外卖。
Balbek Bureau团队面临着几项任务。首先,建筑师要在很短的时间内完成项目——从签订合同到开业只有100天。除此之外,客户还强调了快餐的概念,保证人流量和高运转率让座位的设计变得异常重要。同时,该设计必须是实用、耐用,并且能让未来的餐厅项目以最高速度开连锁店。
建筑师提供了一个简洁实用的室内设计方案。公司的象征颜色——绿色——被用作配色方案的主要色调。结合其他基本的单色调和皮革,建筑师强调了极简主义的优雅美好。在家具的选择上,设计师更多地选择了乌克兰本土品牌,比如propro的椅子和桌子。
为了让建筑更有个性,建筑师试图创造一个代表FOODOO的符号——一个2.5米高的宇航员。它由聚酯做成,表面涂了一层清漆,这位宇航员不仅是这家餐厅的主角,也是客人们最喜欢的Instagram打卡焦点。
▲“宇航员”概念手绘图
▲“宇航员”制作过程
位于基辅第聂伯河左岸的地图被挂在餐厅里,目的是让客人能在地图上找到并标出自己家的位置,图像被印在柔软的泡沫纸板上。设计师还挂了一副火箭设计图来呼应主题。
建筑的设计没有过多的明亮色彩和装饰元素。balbek bureau团队非常注重室内的建筑设计,在天花板和墙壁之间的连接处有一条黑色的缝,由铝型材制成,增加了空间的复杂性,视觉上提升了层高。
地板是由一种天然的高耐用性材料marmoleum制成。由于其生态特性,建筑师还将它作为吧台的装饰材料。
建筑师遵循了垂直平面到水平平面的无缝衔接的概念,用钢型材帮助实现墙壁到地板的平滑过渡。取消了地板和墙壁之间的踢脚线,保持了视觉上的整洁性。
▲施工过程
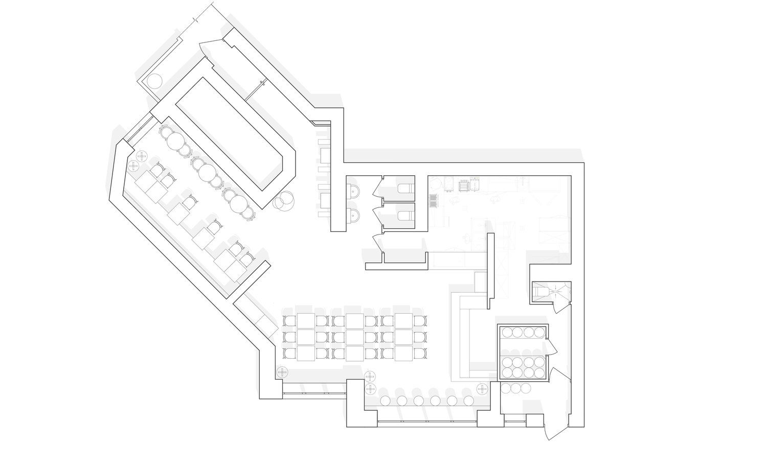
▲平面图
▲轴测图
项目信息——
项目名称:FOODOO餐厅
设计团队:balbek bureau
建筑师:Slava Balbek,Lena Bryantseva,Natalia Kurylenko,Yevhenii Kuchmin,Dmitry Bondarenko
地区:乌克兰,基辅
项目面积:130平方米
完成时间:2019
摄影:Yevhenii Avramenko
客服
消息
收藏
下载
最近































