查看完整案例


收藏

下载
Xround 拳击馆 位于上海陕康里综合商业园区,项目意图打造一个新的生活场所,提供拳击训练与健身于一体的运动服务。
Xround Boxing Gym is located in Shankangli integrated business park in Shanghai. This project aims in building a new living place and provides sports services integrating boxing training and fitness.
通过构造元素和细节等手段,暴露螺栓及电气等技术化的表现,增加拳击运动的电子、游戏化体验。
By structural elements and details, as well as the technical appearance of the exposed bolts and electricity, the electronic and gamified experience of boxing is increased.
丨设计概念CONCEPT丨
项目利用场地进深,将不同功能区布置其中。设计希望保证空间连贯性与视线的通畅,为训练者营造良好的互动与参与感。
The project adopts the depth of the site to arrange different functional areas. The design wishes to maintain the continuity of the space and an unobstructed vision, so as to create a good sense of interaction and participation for the trainers.
灰色运动地胶的整体地面,在兼具良好运动功能同时,增加空间的整体感受。
The project adopts gray sports rubber on the ground, which not only has excellent sports function, but also increases the overall feeling of the space.
▲拳击馆整体空间概览Overview of Boxing Gym ©UJ
设计对原有建筑的钢结构屋顶和部件以最大程度保留,而新的活动及相应功能与设备,被作为“临时”内容,植入建筑框架内。
The design preserves the steel structure roof and components of the original building to the greatest extent, while new activities and corresponding functions and equipment are implanted into the building frame as “temporary” content.
▲多功能训练空间的整合连贯The continuity and an unobstructed vision of the space©UJ
丨区域AREA丨
专项训练区,多样的训练器械被金属框架整合,装配式方式搭建,“植入”训练活动。框架侧边设置半透明散光板,结合黄色圆形光环,将图形化元素引入,增加空间的序列感受。
In the special training area in the front, diversified training equipment are integrated with the metal frame and built in a prefabricated way, which are “implanted” in training activities. A translucent diffuser is set aside the frame, combing with a yellow circular halo, graphic elements are introduced to add the sense of sequence in the space.
▲前部专项训练空间Special training area ©UJ
▲金属框架与半透明散光板Metal frame and translucent diffuser ©UJ
▲半透明散光板细部设计Detail of the translucent diffuser ©UJ
拳台团课区域顶部布置环形吊灯,提供重点区域的均匀照明。吊灯序列式排布,结合顶部空间,使秩序中产生不稳定,营造神秘的未来感。
Ring chandeliers are set at the top of the rear boxing stage for group class, providing uniform lighting in key areas. The chandeliers are arranged in sequence, combined with the top space, an instability is generated in the order and a mysterious sense of the future is created.
▲拳台与团课训练空间 The rear boxing stage for group class ©UJ
入口处的LOGO视觉展示面,使用定制的1*1m不锈钢冲压板,哑光金属漆表面处理,结合扩散板和LED灯管,创造出独特的光影肌理。
The LOGO visual display at the entrance adopts a customized 1*1m stainless steel stamping plate with surface undergone matte metal paint, combining with a diffuser plate and LED light tubes, a unique light and shadow texture is created.
▲LOGO视觉展示面 The LOGO visual ©UJ
兼顾收纳功能的定制座椅,以边长0.5m的立方体模块,喷塑金属板为表面,装饰螺栓和工业灰配色,赋予场所机械与工业文化。
The customized seats are integrated with the storage function. It is a cube module with a side length of 0.5m and a plastic sprayed metal plate as the surface. Along with decorative bolts and industrial gray color, it embeds the area with a mechanical and industrial culture.
▲入口接待与寄存处 The entrance ©UJ
丨技术图纸DRAWINGS丨
▲轴侧图 Axonometric ©uncertain lab
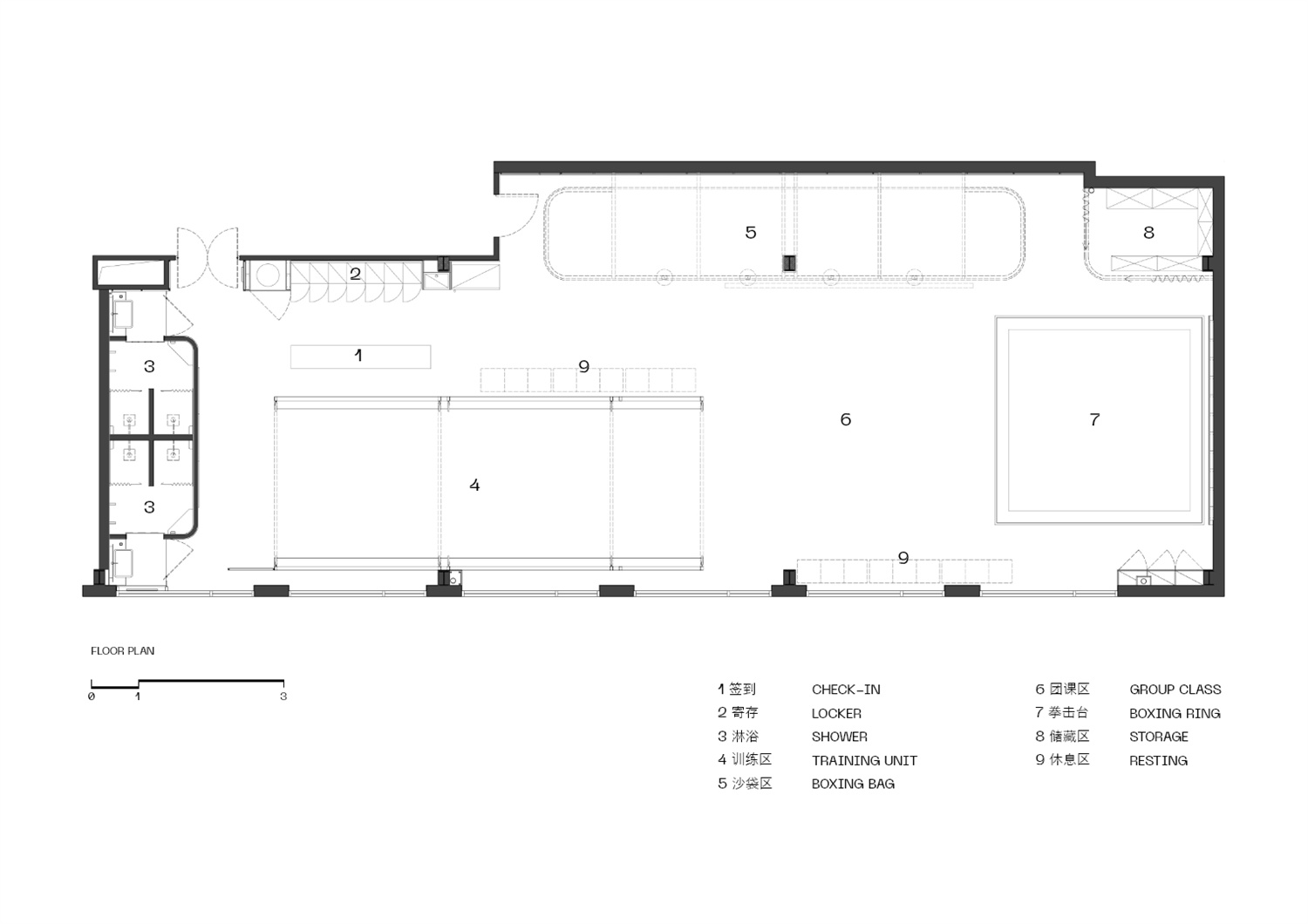
▲平面图 Plan ©uncertain lab
项目信息——
项目名称:动力车间:XROUND 拳击馆
设计方: uncertain lab / 无定设计
项目设计 & 完成年份:2020.11 & 2021.03
主创及设计团队:谢金杋(主创)、雷婧
项目地址:上海静安区陕康里
建筑面积:193㎡
摄影版权:UJ studio
客户:X ROUND
施工单位:上海锦夏唐舒装饰设计有限公司
装修主材:不锈钢冲压板,运动地胶,肌理漆,集成墙板
客服
消息
收藏
下载
最近


















