查看完整案例


收藏

下载
Crossboundaries携手华晟宝马设计完成的北京正通BMW博物馆,是在德国本土的慕尼黑宝马博物馆之外,全球第二家车系最全、车辆最多的宝马专属博物馆,也是首座落地中国的国际汽车博物馆。其中典藏有BMW、MINI、Rolls-Royce三大品牌、年代跨越88年之久的37款经典老爷车,很多都是极具里程碑意义和收藏价值的古董车型。为突出该博物馆的这一身份地位,我们的设计语言不仅要彰显经典老爷车的魅力,也要为中国藏家增添本土的亲和感。
博物馆的区域起始于整栋宝马展厅的三层。经由双层净高、开阔明亮的主入口,访客就到达了博物馆的接待区。我们从车辆疾驰的流线中提取灵感,在墙面用水平的发光线条强调汽车主题。随着这些线条,客人被引导向一组沉稳大气、形似“中式红门”的层叠红幔。穿过“红门”,就进入了主展厅。
在本层,为化解过高的层高带给人的空旷感,并营造展厅氛围,我们将白色、轻质的半透明幕布从开放式天花垂挂而下,布料的悬垂性把天花板的高度降到了令参观者更为舒适的尺度。大量白色织物营造出端庄、空灵的空间氛围,“红门”则彰显出帝王般的雍容气质,而水平延展的光线,也在主展厅及墙面内置的多媒体投影仪上继续呈现。通过这些简练的手法,增添了展厅的仪式感,衬托出本层展出的少量精品的独一无二。
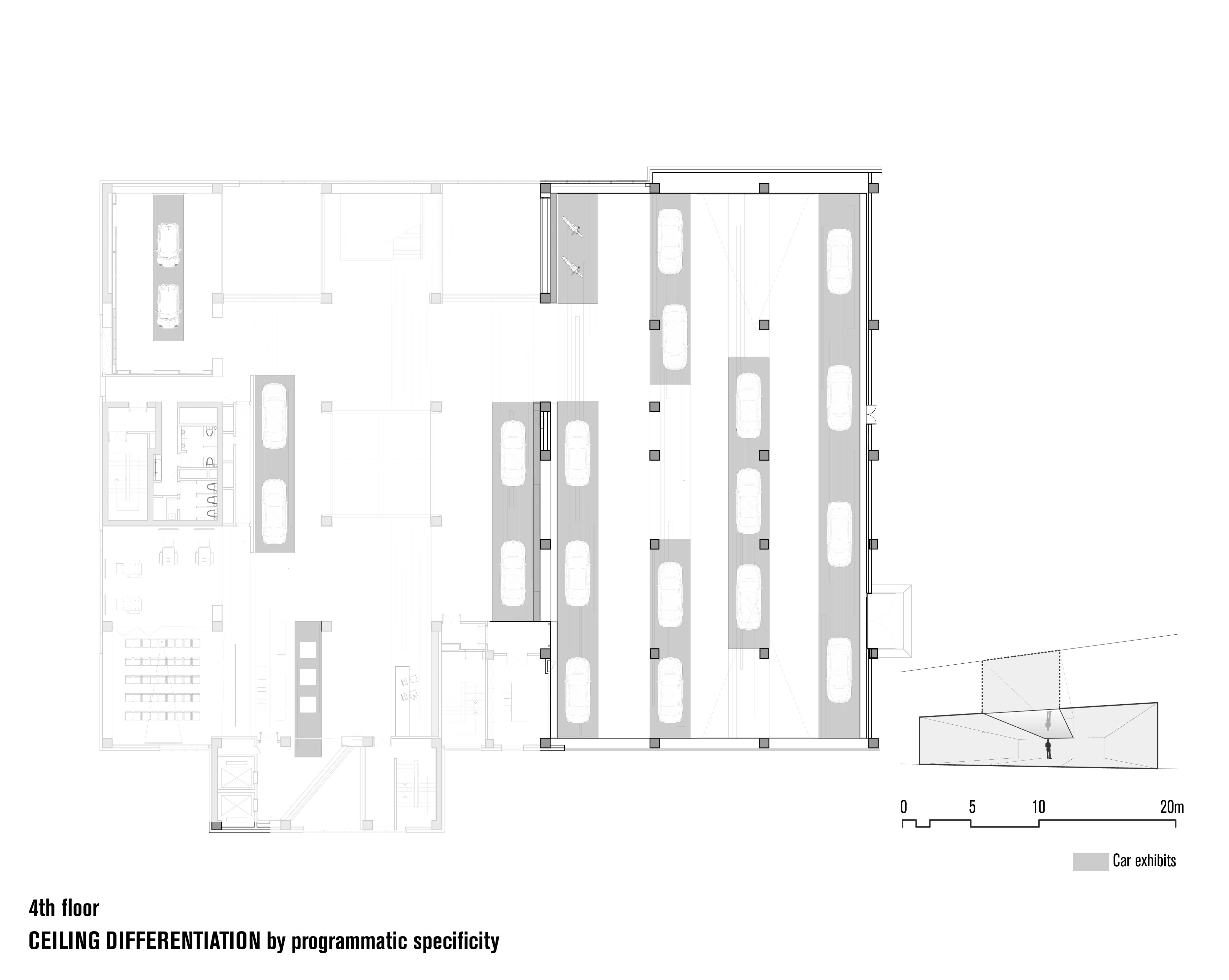
从展厅内部沿一段独立楼梯拾级而上,四楼展区更加密集地排布了更多车辆,是老爷车的主要展示区。这处空间最特别的是,在博物馆实行预约制参观的前提下,我们得以完全舍弃围绕在这些珍贵展品四周的护栏,令访客有机会通过各种互动体验,近距离、全方位地感受经典名车的魅力。
我们在此空间内布置了数个相互平行的长条展台,向观众清晰地展示着车辆的历史沿革。展台由乳白喷漆玻璃构成,四周以银色不锈钢包边,同时其表面内嵌了绵延不绝的不锈钢长条及长条灯带,视觉上延续着车辆疾驰的速度感。为使相对局促的四层空间显得更加开阔敞亮,我们将天花板以不锈钢处理成镜面,并兼顾照明,将为每件展品专门设置的射灯内嵌其中,与抬高的展台相互映衬。访客徜徉其间,在空间布局、线条、镜面和灯光的作用下,会产生仿佛随这些经典名车在时空隧道穿梭疾驰的震撼视觉效果。
展区的最后还布置了电影院、游戏室和小物品展示区,使得游览体验更为完满。参观进行至此,访客将由自然光带领到电梯,完成此次宝马老爷车的“穿越之旅”。
▲分析图
▲平面图
项目信息——
地点:北京
客户:中国正通汽车服务控股有限公司
设计面积:3600 平方米
合伙人:蓝冰可(Binke Lenhardt),董灏
设计团队:Maria Francesca Origa, 陈希格,李振宇
合作方:华晟宝马中国设计团队
拍摄:杨超英
客服
消息
收藏
下载
最近

































