查看完整案例


收藏

下载
以艺术教育为主题的儿童“育乐”空间是我们此次的设计题目。我们打造的是一处小而美的“育乐综合体”——结合了教育和娱乐的双重属性。在这里,为孩子提供艺术素质培养的同时,还提供安全、高品质的游乐社交环境。
At BOOBOOStar Center, we provide the best environment for children to cultivate their love for the arts. An environment that is safe for children to explore their creativity without fear of criticism and judgment.
本项目集合了启蒙教育、亲子游乐、母婴产品零售、轻餐饮等板块。功能的多样性,人群活动的复杂性,杂糅其中。从经营的角度看,每一个板块都有自己的商业逻辑,如何整合产品链条,找到复杂中的秩序才是真正的难点。
This project comprises formative education, parent-child activities, the sale of maternity products while also providing light refreshments. There is a diversity of functions and activities at BOOBOOStar Center. From the management perspective, each business unit has its own management prerogative. They can make centralized decisions with regards to product chain management and make targeted decisions about complex procedures.
零售区。黑色内凹形式的放射状吊顶,整合了灯具、消防喷淋、空调出风口;柜台、货架由我们设计,统一在拱形和圆形的形式语言之下。
Retail area. A black concave, radial ceiling integrates the lamps, fire sprinklers and air conditioning vents. The counters and shelves are designed by us and are consistent in their arch and circular shapes.
餐厅。星空、植物、小木屋的元素,营造出在“森林中就餐”的场景体验。
When combined, the elements of the starry night wallpaper, potted plants and structures resembling cabins in the woods simulate the experience of dining in the forest.
我们在零售区与儿童活动大厅之间设计了一条“时空隧道”,让穿越其间的顾客完成场景切换,带给他们降落外星的戏剧性感受。通道内连接了衣帽间和儿童换装间,在功能上呼应“转换”的目的,完成场景切换。
We have designed a “time and space tunnel” situated between the retail area and the children’s activity hall so that customers who walk through the tunnel can switch between scenes and experience the feeling of landing on a planet. The tunnel connects the cloakroom and children’s dressing room to bring the functionality of “change” as well as to complete the scene switching process.
放射状的吊顶形式,整合了零售、餐厅和儿童活动大厅。零售区域的黑色放射状吊顶,向进门的顾客暗示了空间的向心性;餐厅和儿童活动大厅顶部,粉紫色渐变的 “生命之树”,则是传递给顾客印象最深的形式语言。
The radial ceiling seamlessly integrates the retail area, the restaurant and the children’s activity hall together. The black radial ceiling in the retail area communicates the concentricity of the space; on the other hand, the gradually changing pink-purple hues of the “Tree of Life” situated between the restaurant and children’s activity area leaves the most lasting impression upon the customer.
“小木屋”的造型穿插进海洋球池。家长可以透过窗户,一边就餐一边关照孩子的活动。
The shape of the “cabin” overlooks the pool of ocean balls, making it easy for parents to observe their children while enjoying their meals.
塑造与日常环境差异化的场所,增强顾客的体验感,是我们在设计过程中不断打磨的目标。同时,为了赋予这个场所鲜活的个性,我设计了卡通小女孩露露(LULU),赋予她特有的角色性格,与孩子们建立微妙的情感联系。
It is our central goal to design a unique and distinguishable space to enhance customer experience. At the same time, we came up with a novel cartoon character named Lulu, with a remarkable character in order to better establish and forge an emotional bond with the children.
▲黄盒子教室 The yellow-box classroom
▲白盒子教室 The white-box classroom
一处“安静”的育乐空间
A “tranquil” edutainment space
孩子们在这里蹦跳、打闹,怎么会安静呢?
How can children be quiet when they are always jumping and fighting?
“安静”并不是物理属性的音量大小,而是心理感受的“安静”调性。
“Quietness” is not a physical state, but rather, an emotional state whereby the individual feels at peace.
我们的课程、活动、玩具,都是围绕着“让孩子在游戏过程中促进思维开发”这一理念设置。因此,这里的喧闹不是由声光电的刺激产生,而是由孩子们的活动、互动产生。虽然这里是儿童商业空间,但并不是纯粹玩耍的游乐园,我们认为“安静”是空间应该传递给受众的心理属性,做教育的态度也应该是这样。
Our classes, activities and toys are centered around the concept of “introspective development through the process of playing”. Therefore, the noise levels generated here are not because of their stimulative responses to sound and light, but because of their interactions with one another. Although this is a space for children in a commercial setting, it is related to education and is not just about entertaining children. We think that “tranquility” is the key idea here and this should be carried into the methods of education.
▲功能与行为 Function and behavior
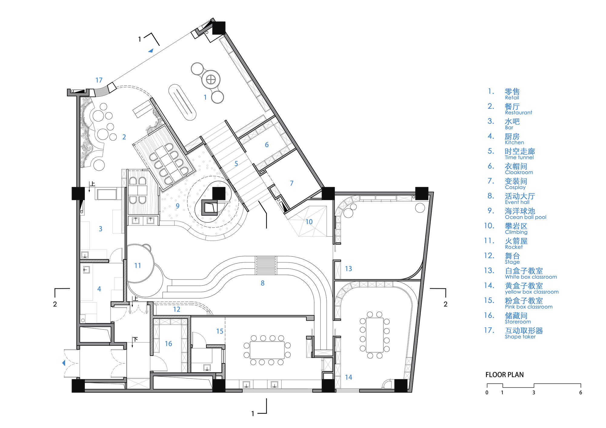
▲平面图 Floor plan
▲剖面图1-1 Section 1-1
▲剖面图2-2 Section 2-2
项目信息——
项目名称:BOOBOOStar重庆龙湖金沙天街店
业主:重庆逸贝诗文化传媒工作室
设计单位:上海泛阁建筑设计有限公司
项目完成年份:2020年12月
建筑面积:385㎡
项目地址:重庆市沙坪坝区龙湖金沙天街A馆3层
主创建筑师:马建昆
设计团队:倪峥、杨健、徐天炀
施工方:李贵林、徐雷、秦匠堂装饰工程有限公司
合作方:张秦、胡家豪、成也装饰
摄影师:王子轩
特别感谢:杨捷 先生英文翻译 / Zoe Soo 女士英文校对
客服
消息
收藏
下载
最近






















