查看完整案例


收藏

下载
该项目是位于中国天津市海信购物广场内的一处商铺改造。我们希望它不仅是个发廊,它也要给人期待以外的体验。
The project is a shop renovation located in HISENSE shopping mall in Tianjin, China. We hope it is not only a hair salon, but also gives an experience beyond expectation.
好的理发体验除了技术上的交流,人应该处于很放松的状态,尤其是洗发的时候,几乎是半睡半醒的,我们希望我们的设计结果就是这样的状态,就像一个三棱镜,似幻非幻,却又清晰明确,严谨且有趣。
Except for technical communication, a good hairdressing experience should be in a relaxed state, especially when shampooing, almost half asleep and half awake. We hope that our design results are in such a state, like a prism, illusory, but clear, precise and interesting.
入口门面是店铺给人的第一印象,我们希望它能呈现一种“好奇感”,由内向外散发的气质,而不是光门口有个漂亮的橱窗,里面没啥意思。
The shop front is the first impression that a shop gives to people. We hope it can present a sense of curiosity, the temperament is emitted from inside to outside, rather than a beautiful window but boring inside.
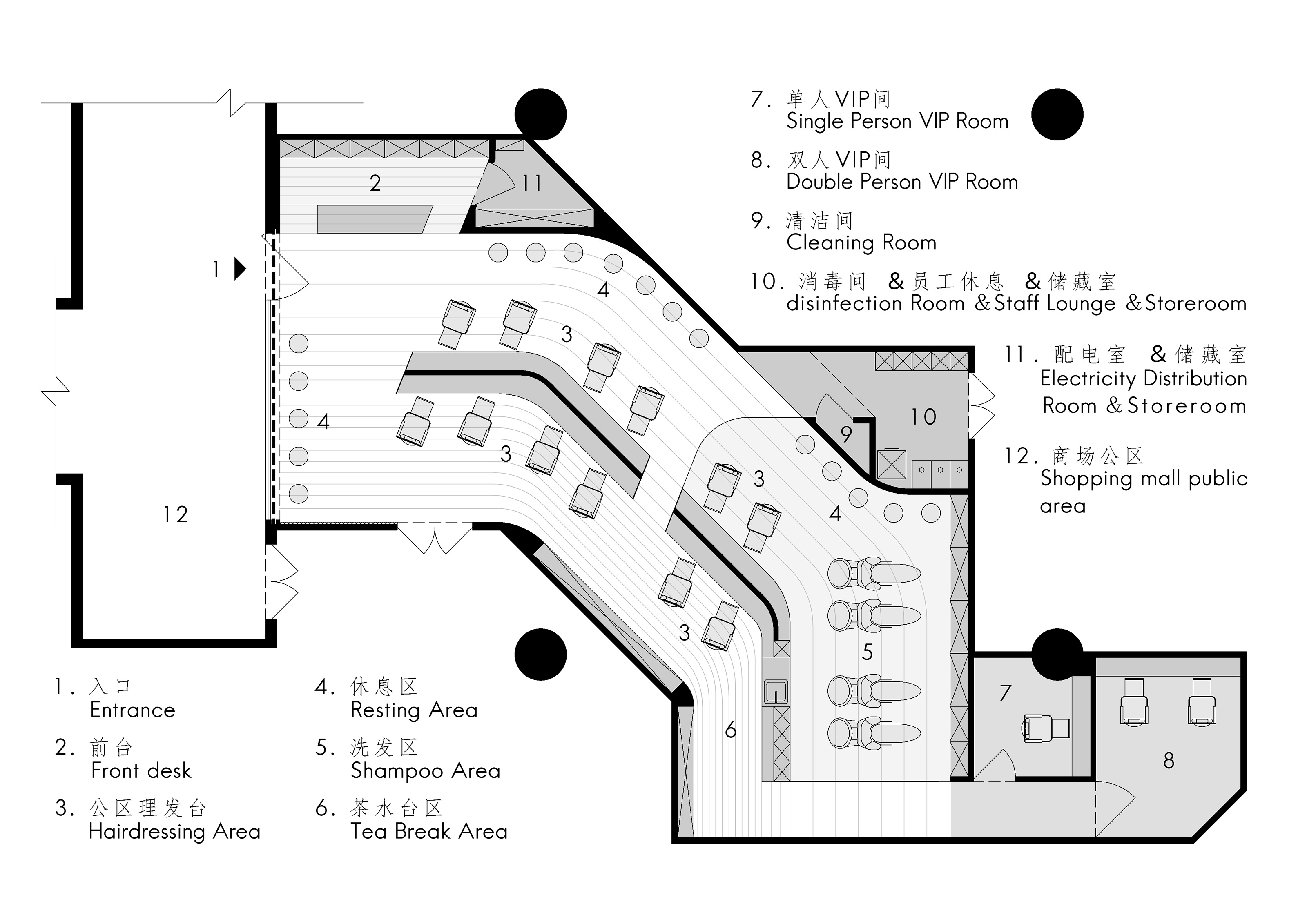
商铺平面形状有些凌乱,七扭八歪,但人更喜欢使用有方正感的空间,所以我们首先要保证理发的操作区,人的体验感是方正、流畅、舒服的,整个操作空间的光线和背景是干净明亮的,在这个基础之上不知在哪面镜子里竟能看见自己的侧脸或背影,感觉自己在一个不要太复杂的万花筒里,这就是我们希望找到的感觉。
The shape of the shop plan is irregular, but people prefer to use square room. Therefore, we must first ensure the operation area of hairdressing, the sense of experience is upright, smooth and comfortable. The light and background of the whole operating space are clean and bright. On this basis, you can see your side face or back figure somewhere inadvertently, or feeling like you‘re in a kaleidoscope, that’s the feeling we want to find.
天花的处理占用了我们较大的设计精力,除了满足让它符合消防规范、安排好功能性的风口检修口等刚性需求以外,我们希望它呈现出极致、梦幻的效果。它是明亮均匀的、趋势感强的、由内向外的、自由的、洁白的、顺畅的,它要像一条小溪、一片云、一场梦,甚至是一头秀发、一首歌,我们希望它使人凝视便走神,心境能静下来。
We made a lot efforts in the treatment of ceiling. In addition to meeting the rigid requirements of keeping it in line with fire protection regulations and arranging functional vent overhauls, we hope that it will show an extreme and fantastic effect. It is bright and uniform, strong sense of trend, from inside to outside, free, white and smooth. It should be like a stream, a cloud, a dream, a song, even beautiful hair. We hope it will calm the mind.
VIP间的感受应该更特别一点,更温馨一点,像个化妆间,像个后台,感觉这一刻的精致妆容在出门后就应该迎来一个巨大盛典。
The feeling of VIP room should be more special, warmer, like a dressing room, like a backstage, with the delicate makeup at this moment, as if a grand ceremony chould be joined after going out the door.
项目信息——
项目名称:MQ STUDIO 发型工作室
类别:商场店铺改造
项目地址:中国天津,海信广场
设计时间:2019年7月~8月
施工时间:2019年8月~9月
建筑面积:160平米
设计团队:鳞见设计工作室
主创设计师:赵洋
设计团队:马思彤、任辉、范金依
摄影版权:鳞见设计工作室
客户:MQ STUDIO 团队
主材料:水磨石、不锈钢、黑色玻璃、软膜天花、造型铝板、水银镜
Project information——
Project Name: MQ STUDIO Hair Salon
Category: Shop renovation in shopping mall
Project address: HISENSE shopping mall, Tianjin, China
Design time: July to August 2019
Construction time: August to September 2019
Building area: 160㎡
Design company: LINJIAN Design Studio
Creative Designer: Zhao Yang
Design team: Ma Sitong, Ren Hui, Fan Jinyi
Photographic Copyright: LINJIAN Design Studio
Client: MQ STUDIO Team
Main materials: terrazzo, stainless steel, black glass, soft film ceiling, plastic aluminum plate, mercury mirror
客服
消息
收藏
下载
最近



















