查看完整案例


收藏

下载
纯粹美学 Pure aesthetics
抛弃所有复杂的理念
自然纯朴
才能走进内心与灵魂的深处
让心归然
Abandon all complex ideas
Natural simplicity
To enter the depths of the heart and soul
Let the heart return to nature
▲建筑外观 Architectural appearance
白色建筑,虚实相间的砖墙,温润的树脂招牌散发着轻柔的光线,呈现美学新境界
White buildings, brick walls with virtual and real phases, and warm resin signboards exude soft light, presenting a new realm of aesthetics.
四季更迭,自然光给予空间特性,自然光给予建筑生命,因为建筑是由光的环境照射而产生生命。基于此,除非给予它生命,否则没有一个空间是真实的。光与影的融汇交织,是大自然给予的美好馈赠,赋予空间纯粹美学。
As the seasons change, natural light gives spatial characteristics, and natural light gives architectural life, because buildings are irradiated by the light environment. Based on this, no space is real unless it is given life. The blending and interweaving of light and shadow is a beautiful gift given by nature and endows space with pure aesthetics.
▲流光溯影 Light and shadow
夯土的质朴,演绎着气质非凡的东方美学,彻底摒弃装饰与华丽,呈现高度真实单纯的自然之美。
The simplicity of rammed earth deduces the oriental aesthetics with extraordinary temperament, completely abandons decoration and gorgeous, and presents a highly real and simple natural beauty.
▲夯土墙 Rammed earth wall
听,流水潺潺、树叶沙沙;看,斑斓的阳光留下美丽的光影。感受微风拂过面颊的自然气息,置身其中远离了城市的喧嚣。在这里工作每天面对一样的场景,却又享受到不一样的美好;这也是 LubanEra·Design 团队的创作灵感来源之一。
Listen to the gurgling water and rustling leaves;Look, the beautiful sunshine leaves beautiful light and shadow.Feel the natural breath of the breeze on your cheeks,Stay away from the noise of the city.Work here, face the same scene every day, but enjoy different beauty; This is also one of the creative inspiration sources of lubanera design team.
▲灵感之水 Water of inspiration
一砂一世界,一水一枯荣,枯山水反应了禅宗美学枯与寂的意境,工作之余体悟禅理,赏禅寂之静,寻本真之内在。
One sand, one world, one water, one withered and prosperous. The withered landscape reflects the artistic conception of withered and silent Zen aesthetics. After work, we can understand Zen theory, enjoy the silence of Zen, and find the essence.
▲禅寂之静 Zen silence
夜色寂静,月色朦胧,氛围灯光缓解了黑夜的孤寂。
The night is silent, the moonlight is hazy, and the lights alleviate the loneliness of the night.
▲夜幕降临 When night falls
以匠人之心,琢万物之美
用匠心精神,追求艺术的极致
匠心独运,筑时空之影
LubanEra 创始人 Bobo 认为细节构成了一种“世界观”和“深度”,空间的”正确性”是通过在设计中考虑这些细节来决定的。
With the heart of a craftsman, carve the beauty of all things. Pursue the perfection of art with the spirit of ingenuity. Ingenuity builds the shadow of time and space. Bobo, founder of lubanera, believes that details constitute a “world view” and “depth”, and the “correctness” of space is determined by considering these details in the design.
▲轴侧动图 axis dynamic graph
▲轴侧分解图 Shaft side exploded view
综合了会议、分享、模型制作、建筑材料展示多功能空间。
It integrates the multi-functional space of meeting, sharing, model making and building material display.
▲样板间 prototype room
光本是无形的,在现有的建筑内,将光影引入空间,随着时间的推移,春、夏、秋、冬中光的不同表现、不同偏移,植物的光影会在墙面与地面上流动变换。光和这个空间进行着无声的交流,行走在其间,无形的存于自然中。一步一境,四时风光各不同,艺术与自然的界限再次被打破。
Light is invisible. In the existing buildings, light and shadow are introduced into the space. With the passage of time, the light and shadow of plants will flow and change on the wall and ground due to different manifestations and offsets of light in spring, summer, autumn and winter. Light has a silent communication with this space, walking in it, invisible in nature. Step by step, the scenery is different in four seasons, and the boundary between art and nature is broken again.
▲自然无间 Natural space
每一刻的光影大片皆独有韵味,每一眼的遇见都生不同的心境。光生万物,是自然景观的成全,借一半光生发灵感,借一半影闲适心境。
Every moment of light and shadow blockbuster has a unique charm, and every encounter produces a different state of mind. Light produces everything, which is the perfection of the natural landscape. Half of the light generates inspiration and half of the light affects the leisure state of mind.
▲容纳万境 Accommodate many environments
裸露的混凝土柱体,赋予空间朴拙的美。
The exposed concrete column endows the space with simple beauty.
▲清贫的时尚 Clean fashion
色系温润柔和自然的舒适空间,搭配天然朴质的原木让室内外能够自然而协调的交织在一起。
The color system is a warm, soft and natural comfortable space, matched with natural and simple logs, so that the indoor and outdoor can be naturally and harmoniously intertwined.
▲本自纯/源由净 This is from pure /Originally pure
本质上,茶道是一种对“残缺”的崇拜是在我们都明白不可能完美的生命中为了成就某种可能的完美,所进行的温柔试探——冈仓天心《茶之书》
In essence, the tea ceremony is a kind of worship of “deformity”, a gentle test to achieve some possible perfection in a life that we all know can not be perfect–by Kakuzo Okakura The Book of Tea.
茶室的简约与脱俗,使它成为一个远离尘嚣的世外桃源。
喝茶,大约是繁琐无趣的日常轮回里,最轻易就能“出离”的一种生命体验。这出离心,一半来自茶汤的慰籍,另一半,则源于空间营造的氛围。
The simplicity and vulgarity of the teahouse make it a paradise away from the hustle and bustle. Drinking tea is about the easiest life experience to relax in the tedious and boring daily cycle. Half of this relaxation comes from the comfort of tea and soup, and the other half comes from the atmosphere created by space.
▲茶道 Tea ceremony
设计是拒绝任何规则的,从材质选择到追求空间本质所在,平衡实用与美学之间的关系。
Design rejects any rules, from material selection to the pursuit of the essence of space, and balances the relationship between practicality and aesthetics.
▲材质细节 Material details
一边度假一边上班是什么神仙体验?
这里有工作,亦有生活。
What is the fairy experience of vacation and work?
There is work and life here.
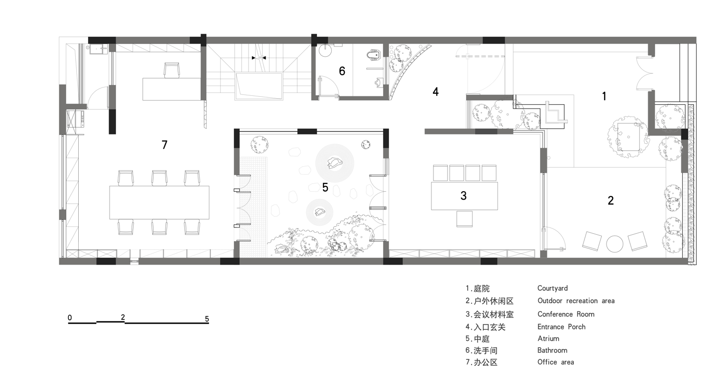
▲一层平面图 Ground floor plan
▲二层平面图 second floor plan
▲立面图 Elevation
项目信息——
项目名称:LubanEra·Design office
项目地址:中国·广东·深圳
项目类型:办公空间
项目面积:350㎡
完工时间:2021.6
设计公司:LubanEra·Design 鲁班时代建筑装饰设计
创意总监:陈洪波
主创设计:邱文娣
设计团队:麦勤彩、杨明月
空间摄影:Bobo
设计主材:进口树脂、麻石地砖、夯土、微水泥、橡木实木、进口桦木多层板、板、进口编织地毯、水泥构件
Project Information——
Entry name:LubanEra·Design office
Project address:Shenzhen, Guangdong, China
Project type:office space
Project area:350㎡
Completion time:2021.6
Design company:Lubanera · design Luban era architectural decoration design
Creative director:Bobo
Creative design:Qiu Wendi
Design team:Mai qincai, Yang Mingyue
Space photography:Bobo
Design main material:Imported resin, granite floor tile, rammed earth, micro cement, oak solid wood, imported birch multilayer board, board, imported woven carpet and cement components.
Tel:+86 15013798101
客服
消息
收藏
下载
最近




























































