查看完整案例


收藏

下载
办公空间占用了每天1/3甚至以上的时间,
于常规企业形象打造和工作效率提升之上,
是否也可以成为美学理念展演的生活新场所?
暨2018年4月,维斯林为达明墙纸Tat Ming Wallpaper打造的中国内地第一家新零售概念店——达明·纸间画廊开幕,维斯林再次受邀为其设计位于广州、成都和新加坡的三处办公室,系统化地为其搭建中国内地及海外市场的展示与交流平台。
位于广州耀中广场的达明办公室项目已圆满完成。作为一个服务于专业室内设计师、酒店、办公及住宅等各类型客户的经典墙纸品牌,廖奕权将新的思维理念植入这一空间设计,在打造企业高品质和艺术化的形象之外,更赋予其新的场所能量。投入使用后的空间将成为企业办公、对外形象与产品展示、设计师及各类客户的交流俱乐部。
NO1.“办公剧场”多幕盒子
将多义命题转化为与品牌的创意联结
空间自有其要讲述的故事,设计首先是对其原始诉求的命题拆解:
1.与品牌及其产品产生多样且持续性的关联;
2.结构比例,空间基本格局的规整与变化;
3.分区,办公功能与其他场所功能的分与合;
4.社交场域,开放与私密、静态与流动性的平衡。
▲通过有效分割,空间规划为包容多种功能的剧场盒子。
基于空间的多命题诉求,设计师引入“剧场”这一创作概念,将舞台式的空间置入办公场所。同时融合大量品牌元素进行设计,如品牌主题色—紫色及各类产品,提炼出品牌富有活力和变化的创意形象。
▲植入“看台”打破了空间的平行格局,也形成更加新颖有趣的视角。
也借由“剧场”概念,原本开放式的场地被拆分设计为不同功能形态的盒子,包括公共交流中心、共享办公区、办公区及独立办公室、休闲区、材料展示区、储物间、茶水间及多义混合空间等。
▲公共交流中心,既是共享办公区,也是品牌展示中心,及开展企业内部会议、外部交流沙龙的活动中心。
▲区域内配置可移动家具,方便随时进行可容纳几十人的小型活动及分享沙龙。
▲办公区使用简洁的标准化产品,强化工作的专业感和高效氛围,盒子式设计在强化私密性的同时进一步传递出协同合作的精神。
▲休闲及材料展示区,将休闲与材料展示的功能密切结合起来。
▲休闲展示区毗邻专业办公区,有效平衡轻松与高效的工作氛围。
NO2.交流与展演
将剧目演绎为产品的舞台表演性
如何让人产生与空间交流对话的欲望?设计一方面以高活动性及多元化的区域塑造出多层空间形态,增强人与空间互动的欲望,而多变化的盒子窗口也成了有趣的取景框,把来访者的注意力聚焦在品牌产品展示和不同功能分区的剧目上。
▲小型会议室,引入港式“闸门”设计元素,如舞台幕布,创造有趣的空间对话感,亦在功能上有效平衡了私密与开放性。
“看台”将品牌主题墙置于视觉焦点,同时加入各类装置,提升“戏剧性”,也将舞台的表演性与产品展示性联系起来,强化了人与空间对话感。
▲使用品牌本身的产品做设计,空间也就成了一个巨大的展示舞台,品牌与室内空间高度融合为一体。
空间中设置多处展览装置,如井然有序的展示架、展示柜、荡板等,品牌墙纸及地板配合柔和温暖的照明效果,营造出一个和谐舒服的环境,也实现了产品展示的最大化。
▲材料陈列展示
细节丰富的设计强化空间体验感与品质感。
整体设计,强调不同功能区独立、开放及混合多样使用的平衡,由此衍生出一个集办公、产品展览及互动交流的多义空间,以一种新型的空间互动方式来激发办公场所新价值。
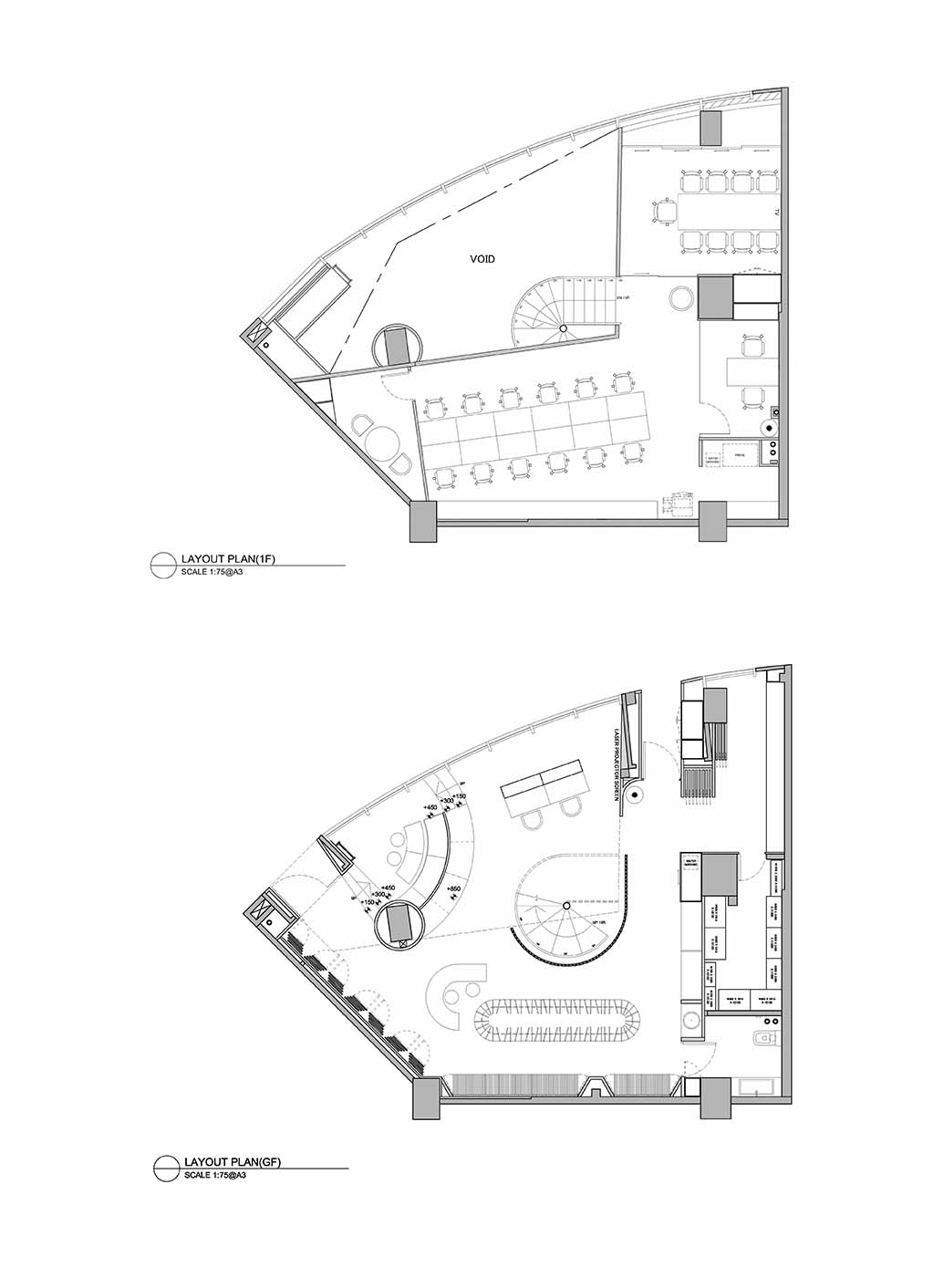
▲平面布置图,左侧留白处,维斯林正在为达明墙纸打造一个专业样板展厅,将沿用“达明·纸间画廊”的设计,预计今年下半年开放
▲达明墙纸·新加坡办公室—项目正在进行中—平面布置图
项目信息——
项目名称:广州达明墙纸办公室
项目类别:办公空间
设计机构:香港维斯林室内建筑设计(P+P)
设计主创:廖奕权(Wesley Liu)
服务内容:室内空间/灯光/软装及陈设
主要材料:木材、香槟金磨砂不锈钢、云石、墙纸、扪布
项目地址:广州市天河区耀中广场
服务周期:2018年8月-2018年11月
空间摄影:廖奕权(Wesley Liu)
客服
消息
收藏
下载
最近





























