查看完整案例


收藏

下载
众建筑以“健康”为题设计了乐平基金会总部的新办公室。
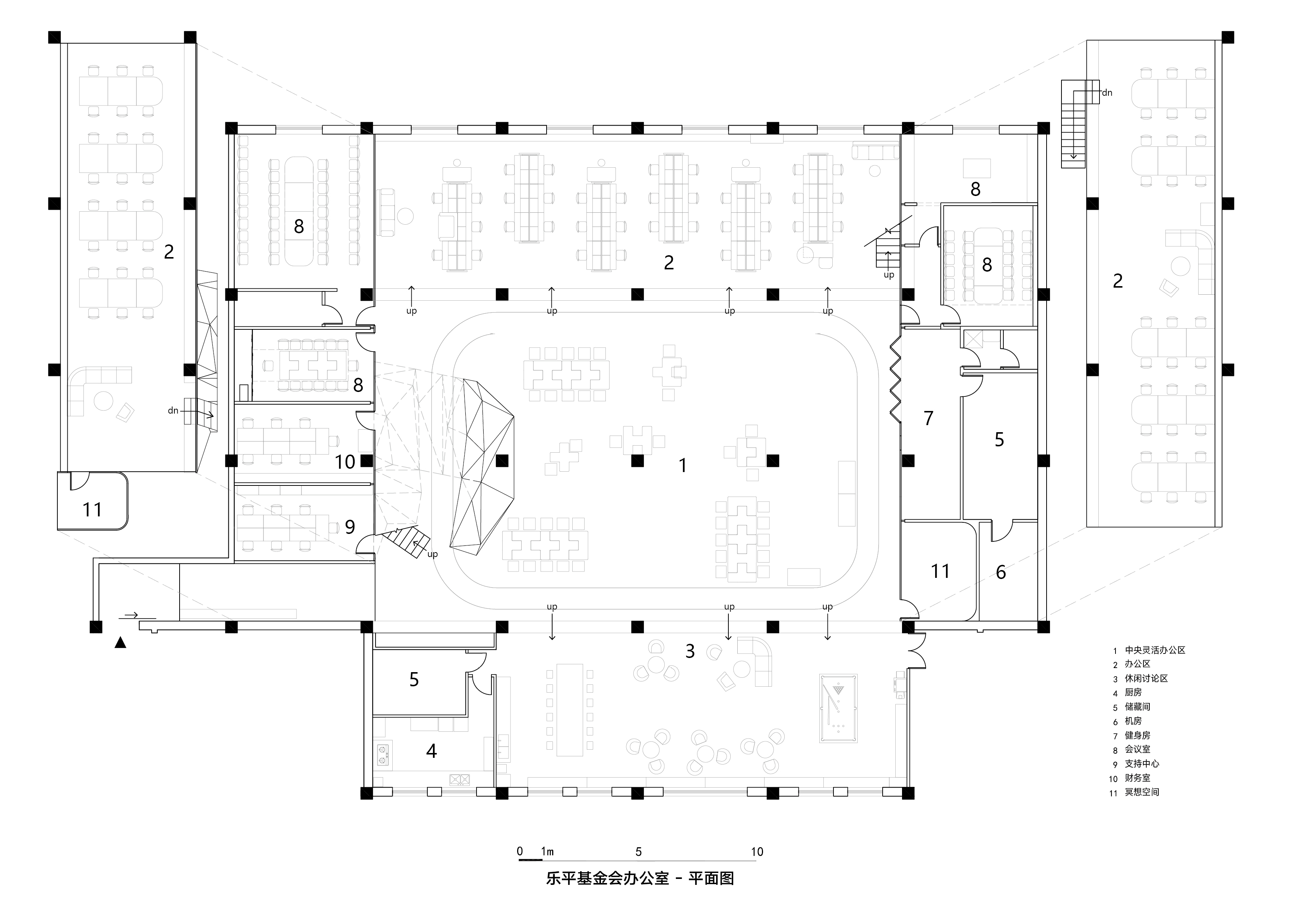
乐平基金会是一家以社会创新著称的非营利机构。在他们1100㎡的办公空间中,我们提出的基础理解是适度的身体活动对大脑有益:剧烈运动通常会影响工作,但适量的活动则反而有益。在工作的同时进行一定程度的轻微运动,健康的效果堪比短暂的剧烈运动。因此设计提供了大量边工作边活动的机会,丰富办公模式,也增加休息的途径。
这种活动办公的方式增加了工作中跨领域交流和互动的机会。在这个办公空间内有5家公司,乐平基金会与其投资的四个子公司,它们分别从事影响力投资,低收入者就业培训,农业研究,学前教育和小额信贷。活动办公的方式促发了它们之间更多的交流。
在办公室从事园艺活动是一种人们关心环境,主动改善空气质量的积极行为。对于北京这个全球污染最严重的城市来说,空气质量是非常重要的问题,因此我们把空气过滤与检测系统都置入到“红环”内,实时的空气数据会在跑道上的屏幕中显示,工作人员能够随时监控并调整室内空气的质量。
“红环”和其他水培管内的蔬菜与香草,可直接采食或作为现场午餐材料供应。这样的活动每天都发生在“红环”旁的开放式厨房,此区域与咖啡/休息区完全相连,并向整个办公室开放。
与“红环”相交的“小山”是另一处混合休闲与工作的场所,坐落在办公空间的另一端,倾斜的表面适应各种姿势,中间的小路通往夹层。办公室内还配有专门的活动空间,包括一个单独的健身房,冥想空间和会议室。
室内的颜色旨在提醒人们时刻保持活动,变换工作的姿势。覆盖墙身和立柱的蓝色以60厘米为间隔渐变,每个颜色对应不同的姿势和活动,如躺、坐、行走和攀爬。
众产品设计的办公类家具产品也提供了更多活动工作的可能。
乐平在社会创新领域的工作需要大量不同团队,部门和公司之间的互动和协作,“众工位“家具系统在端头配套设置了迷你厨房和休闲插件,便于形成自发的非正式对话的小型社交空间。“众工位”的存储空间设置在工位上方,释放桌子的下部空间,最大限度地增加可以进行自发讨论的空间。
“凹凸桌”这个模块化的家具可单独使用,也可组合成各种不同状态。因为它,使得“红环”内的空间可作为临时大型活动空间,也可成为孵化社会企业的灵活空间。“众行顶”可在空间内灵活移动与展开,结合“凹凸桌”,随时构建出独立的会议空间。
项目信息——
客户:乐平公益基金会
位置:北京
完工日期:2017年12月
主要人员:何哲、沈海恩(James Shen)、臧峰
项目团队:蒋昊、沙靖海、孔鸣、崔刚健、相未星、林明锴、许羲、敬臻臻、陈紫薇
项目规模:1100㎡
摄影师:众建筑、金伟琦
客服
消息
收藏
下载
最近

























