查看完整案例


收藏

下载
所谓办公空间,是指对布局、格局、空间的物理和心理分割成适合公司、工作室中集体办公的空间。办公空间应该不止包括一个又一个相同的模块,每个模块仅仅包含一个电脑桌、一台电脑、一把椅子。这种千篇一律的空间模式只会造成工作人员视觉及心理的双重疲劳,导致工作效率下降。一个优秀办公空间设计可以使工作人员在其中感到舒适、方便、卫生、安全、高效,这样的工作环境可以最大限度地提高员工的工作效率,这就需要设计师考虑多方面的问题,涉及科学、技术、人文、艺术等诸多因素。
▼
IGG 游戏公司总部
『福建福州』
IGG 是一家手机游戏公司,名字来源于“I got games”。由于公司比较擅长的是中世纪风格的游戏类型,我们决定以中世纪古堡为主题贯穿始终,同时加入魔幻元素,让员工每时每刻都能沉浸其中,激发灵感。
在设计初期,设计工作室还和 IGG 就谈到了一个共同的概念,那就是柏林墙。柏林墙作为自由的象征,是人类一直以来的追求,时刻提醒 IGG 不要忘记自己的追求,也就是不忘初心制造快乐娱乐玩家的企业精神。为此业主在外国订购了两座拆除的柏林墙,把它们竖立在办公楼的入口正前方,并且请画师在柏林墙上绘制了目前 IGG 最热门的两款游戏《城堡争霸》、《王国纪元》。
▼
大悦城无界空间
『北京朝阳』
大悦城无界空间是专为创业者打造的新型联合办公空间,该项目位于北京市朝阳区大悦城北侧一个由粮仓改建而成的创意文化园内。
外立面的处理上,整体建筑保留原先仓库的红砖墙。根据室内功能与平台标高,开窗被设计成不同大小与高度,形成错落起伏的秩序感,从而将室内的行为与活动映射到建筑立面之上。
原有空间为砖砌单层桁架结构厂房,净高6米7,脊线高9米2,单层面积1000平米。业主希望能够在厂房里容纳独立办公、开放办公、活动大厅、咖啡馆、大讲堂、放映厅、健身房、展厅等功能。
▼
优步Uber香港办公室
『香港铜锣湾』
办公室的主要特点是贯通全层并形成不同大小的会议室、共用和私人工作空间的深蓝色建筑vessel,其设计是受到了城市的海岸地形以及弯曲起伏的山峦所启发。
不同部分的vessel划分了各类型的工作空间, 工作间皆采用了雾化渐变玻璃或窗帘隔断, 以确保员工能拥有自己的私隐和私人空间。办公室内的工作区采取了开放式的设计,各工作区均设有共享支援及协作空间,可重新组合以适应公司不断变化的需求。
▼
中德华建办公室
『郑州』
办公室设计摒弃了传统办公室的严肃紧张的气息,而是传达一种东方自然的感受。中国人说无规矩不成方圆,可又说上善若水。规矩不可无,但规矩也可以像水一般的柔顺,高境界的善行就像水的品性一样,泽被万物而不争名利。办公室不仅仅只是工作的地方,它还应承载对人生的理解和期望。
在功能分区上,设计师将整个空间分成了三份。独立的总经理办公室,连通着的工作区与会议区,开放式的办公空间可以最大限度的利用自然光线,与外界环境形成流畅的互动和交流,最终达成空间整体的默契和统一。
整个空间一改办公室严肃,乏味的形象,做成了一个自然流露,极具人文气息的办公空间。
▼
大样工作室
『上海静安区』
上海静安区石库门1305号的大样工作室办公空间被设计为充满创意的多功能空间。在这里,建筑设计、室内设计还有平面设计的多团队共处一室。
设计灵感来自于“一杯水”的理念,当一杯水在我们面前,真真切切,大家都以为它真实存在,如果把一杯水倒掉,“一杯水”马上不存在了,只有“玻璃杯”存在。可见,所谓的“一杯水”其实是由“玻璃杯+水”组合而成的。进一步细究,“玻璃杯”也不存在,玻璃杯是由玻璃构成的,而玻璃是由海沙,石英砂岩粉,纯碱,白云石等,经过高温烧制而成,所以并没有一个不变的叫做“玻璃”的客体存在。
多功能空间,时装秀,艺术展,鸡尾酒会甚至专业讲座举办也不在话下。300平米的空间发挥出了无限大的能效。
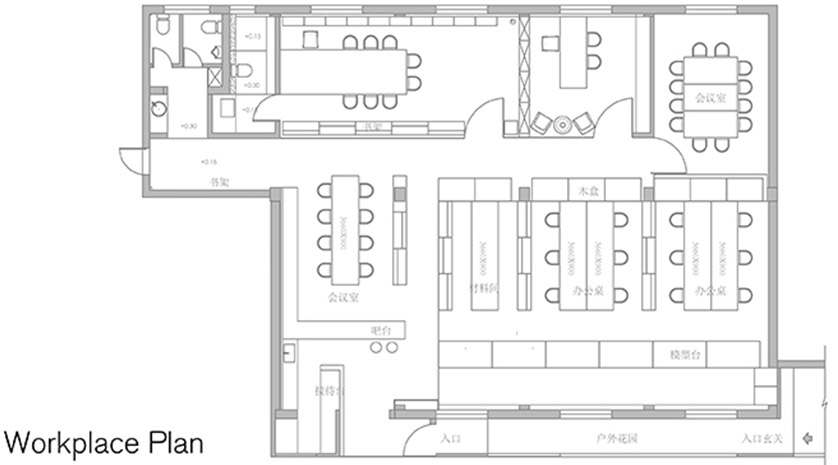
▼工作
如同一杯水,工作时的状态,“杯中”便看到所谓的办公桌,文件柜等等,但无论是办公桌还是文件柜,设计师设计一个精算好的空间模数,自由组合,满足空间中作为办公空间未来5年甚至10年后的使用需求,由最初两人时的使用空间变化直至可以满足30人以上同时办公的可能性。
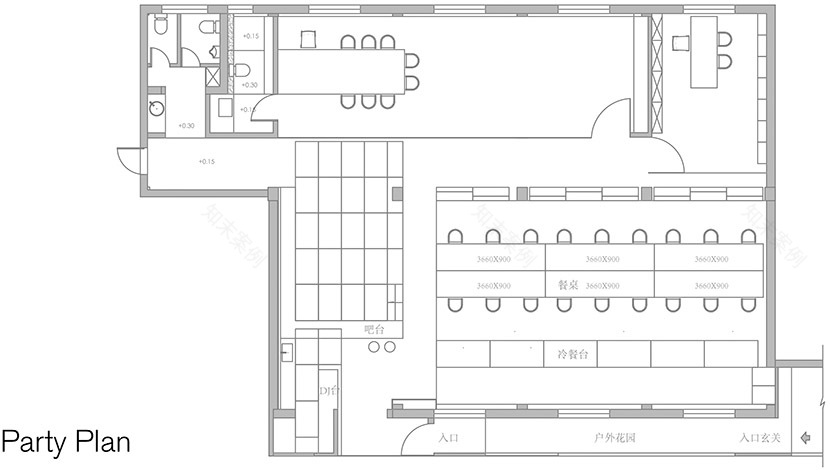
▼聚会
聚会是设计师们在一起经常举办的,每到周末,空间变化成为另一番景象,当做办公空间中使用的前台接待台变为酷炫的DJ台,摆满各种酒水的长吧台,7米长的投影演绎各种迷幻图像
▼走秀
设计师设计的用于储藏的模数木盒可瞬间搭出走秀T台,周末约三五十好友们一起举办一场服装设计师朋友自己的小型设计成果展示秀,自娱自乐。
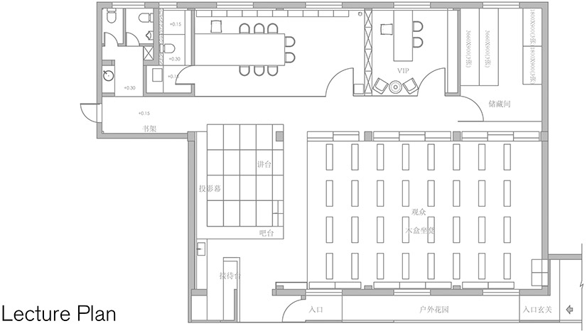
▼演讲
两种模数的白色木架由书架变为演讲所需的坐凳,而高15公分和30公分两种规格橡木盒堆叠成为高45公分之讲台,满足50-100人左右的小型演讲报告会,也是所谓的设计师们切磋的平台,也是设计师自我陶醉,满足虚荣心的试验场。
▼图书馆
所有的书架叠起,空间中变身成为一个小型图书馆,当然这种功能在现在只有306平米的空间中还很奢侈,但是设计师可以创造空间,设计师置身于自己绞尽脑汁创造出称之为图书馆的空间中,或许是过一把没有机会做一个图书馆的设计之瘾,而也或许是设计师在满足自己虚荣心的又一个意淫行为而已。
客服
消息
收藏
下载
最近
































