查看完整案例


收藏

下载
大自然带来的信息是安静平和的,当把这个想法和土地使用的方式一起构想,建筑设计的理念因应而生。而艺术空间带来的无穷变化与激情,正是我们设计诉求的目标。我们希望创造一个艺术与海洋相遇的梦幻世界。寻求大自然、艺术和建筑物息息相关的奥妙。探索,是这个项目的基本原则!——来自侨福集团主席黄建华先生与设计团队的对话
巽寮湾与怡亨当代艺术中心
01 项目概况 Project Survey
巽寮湾是粤东数百公里中海水最洁净的海湾之一,海滩上软细洁白的海沙含量高达 99%,有“天赐白沙堤”的美誉。侨福怡亨当代艺术中心 · 巽寮湾项目位于巽寮湾东岸海岸线南端,地理位置得天独厚。项目用地约 2.03 公顷,北面朝向巽寮湾水域,东临 Pullman 和 Ibis 酒店,南接金海湾大道,背靠群山。项目总建筑面积约 77,500 平方米,是一座包含 350 套居住空间的高级滨海住宅,低层配套高端商业、餐饮与运动空间。
巽寮湾与怡亨当代艺术中心场地
02 设计理念 Design Concept
建筑以“置身蓝色”为概念,沉浸海天间的艺术场所,探索自然、艺术与建筑体验,与场所共生。
置身蓝色·海天之城
项目主体建筑坐落于场地中心靠北侧展开,从金海湾大道经过富有特色的雕塑庭园,大堂设置在主体塔楼的七层,为整个项目提供一览无余的海景;低层餐饮、健身与商业,结合南侧雕塑广场和北侧长达 100 的沿海无边泳池,创造一个充满艺术氛围和活力的开放公共空间。
总图 丹下都市建筑设计公司提供
沿海面效果图 丹下都市建筑设计公司提供
巽寮湾北岸的怡亨当代艺术中心
怡亨当代艺术中心鸟瞰
怡亨当代艺术中心南立面
怡亨当代艺术中心由两座极富表现力的塔楼组合,采用几何体量拆分、重组搭接的手法,响应了规划对建筑体量及海滨、山体景观协调的丰富空间序列的要求,最大限度发挥得天独厚的环境优势;
体块生成 丹下都市建筑设计公司提供
怡亨当代艺术中心背海面
架空、叠加、轻微的扭转,双塔环抱展开的动态的形式组成与海天交融的城市空间,布局充分保证所有居住空间单元直面大海,抽走的“积木”空中花园与当代艺术品结合,创造在不同高度置身空中的开放体验,使居住者徜徉于空中画廊的艺术氛围中,回应自然与人文的交互。塔楼下方的城市空间,通过大片悬挑,延续了视线,保证了背海侧花园游客与城市旅人能够穿过建筑看到海边的景象,仿佛向游客们昭示目的地已经到达,将群山、城市、建筑与大海连接起来,打造活跃的社交中心。
怡亨当代艺术中心悬挑居住空间与空中花园。立面设计以金属玻璃幕墙、遮阳格栅、玻璃砖等现代材料运用,横向水平线条、悬挑的转角盒子、空中露台相结合,建立休闲度假的浓厚氛围,打造一个与众不同、富有艺术气息、引领当代文化的全新居住社区。
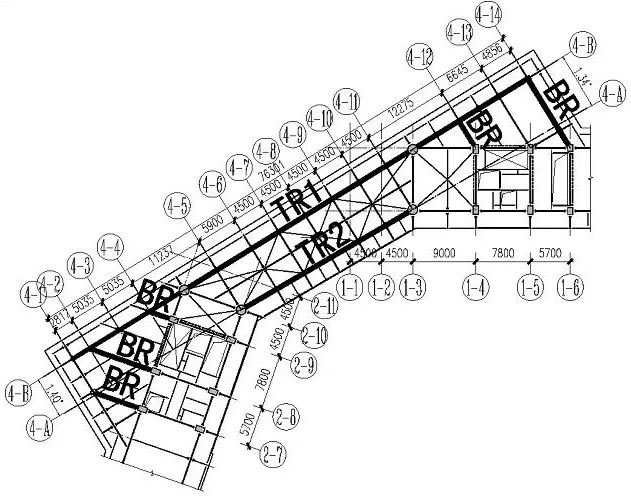
怡亨当代艺术中心塔楼居住空间。建筑独特的造型双塔连接、平面形状不规则、大悬挑等带来复杂的结构形式,项目采用钢管混凝土框架-支撑结构体系,确保结构具有足够的延性和承载能力。通过对上、下两连廊区域及两塔楼两侧局部悬挑区域进行合理的结构布置、确定性能目标,针对超限情况采用相应的计算分析方法及措施,并进行局部关键构件、节点的补充验算,保证结构具有足够的安全性能。
上连廊平面布置图
典型端部悬挑结构
(a)节点构造
(b)钢管柱内肋板
怡亨当代艺术中心以动态构图、艺术自然的理念,理性与雕塑体量的表演性和象征性,打破了住宅项目的传统印象,展示了地标建筑与环境的融合,成为巽寮湾东岸南端令人瞩目的标志性节点。
空中大堂室内效果
03 项目图纸 Drawings
首层方案平面图
居住空间四层方案平面图
居住空间七层方案平面图
居住空间十层方案平面图
建设主体 Client:北京侨福置业有限公司
设计单位 Design:
丹下都市建筑设计公司 TANGE ASSOCIATES
北京市建筑设计研究院有限公司 BIAD
项目地点 Location:广东省惠州市惠东县巽寮湾
建筑类型 Type:高端住宅
竣工时间 Time:2021
设计团队 Team:
项目经理:杜松
设计总负责人:梁燕妮
建筑设计:杜松、梁燕妮、任蕾、谭川、王笑竹、张伟、王淼、赵晨、范迪龙
结构设计:盛平、徐福江、赵博尧、冯岩、张沫洵、李硕
暖通专业:段钧、张志强、魏广艳
给排水专业:周小虹、李昕
电气专业:刘倩、张争、郝晨思、孙晟浩
撰稿:王笑竹
摄影:张虔希
客服
消息
收藏
下载
最近


























