查看完整案例


收藏

下载

翻译
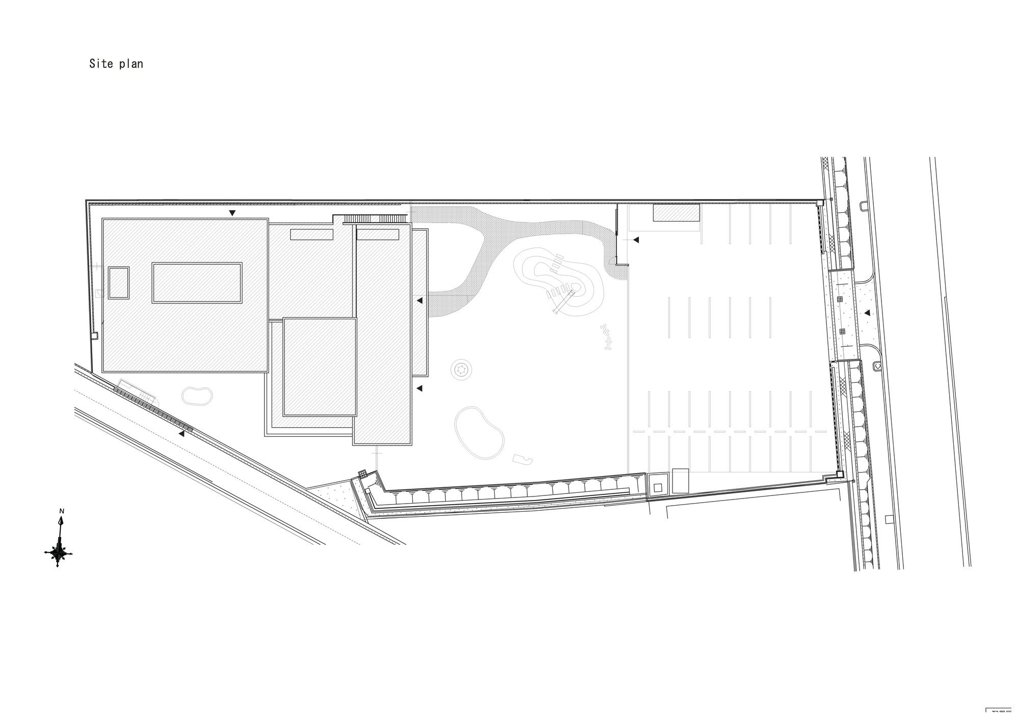
NFB Nursery was designed by Youji no Shiro + HIBINOSEKKEI, Nara province where the site located has 8 world heritage architectures. So this city has a lot of history. On the other side, the site is located at the center of the industrial residence in Yamatokoriyama city. Surrounding is a special sight with simple and no color factories. This project is to reform an old kindergarten at that site.
photography by © Ryuji Inoue / Studio Bauhaus
Youji no Shiro + HIBINOSEKKEI were trying to make a positive kindergarten in such a negative environment.
And, by explaining the “Factory” where can create stuff and product things, we made the “Dream and creativity making factory” as our concept.
On the surface, by considering the urban landscape, we made the designed that had hard texture feeling like a factory. At the same time, through the courtyard to set up a lot of greens, to create a soft atmosphere. In order to cultivate the kids’ curiosity. And about the indoor, the places where usually be hidden were deliberately exposed, to create an atmosphere like the factory. At the same time, through the ventilator of the piping made of transparent, and put the propeller inside, so that children can learn how the wind flow. By exposing the pipe of washbasin, let the kids know how the flow of water working inside the drain-pipe.
photography by © Ryuji Inoue / Studio Bauhaus
Through the design of trampling generating plant, let the children learn how electricity is flowing. Like these, many discover places has been designed. Kindergarten is a place for education and growth, not a place with noble color and toys, as a kindergarten, let the children through their own thinking to create like what we respect is one of the results of our design.
photography by © Ryuji Inoue / Studio Bauhaus
Project Info:
Architects: HIBINOSEKKEI, Youji no Shiro
Location: Nara, Nara Prefecture, Japan
Area: 871.0 m2
Photographs: Studio Bauhaus, Ryuji Inoue
Manufacturers: Runon, Bozo
Site Area: 3238 m2
Surface Area: 1193 m2
Project Name: NFB Nursery
photography by © Ryuji Inoue / Studio Bauhaus
photography by © Ryuji Inoue / Studio Bauhaus
photography by © Ryuji Inoue / Studio Bauhaus
photography by © Ryuji Inoue / Studio Bauhaus
photography by © Ryuji Inoue / Studio Bauhaus
photography by © Ryuji Inoue / Studio Bauhaus
photography by © Ryuji Inoue / Studio Bauhaus
photography by © Ryuji Inoue / Studio Bauhausphotography by © Ryuji Inoue / Studio Bauhaus
photography by © Ryuji Inoue / Studio Bauhaus
photography by © Ryuji Inoue / Studio Bauhaus
photography by © Ryuji Inoue / Studio Bauhaus
photography by © Ryuji Inoue / Studio Bauhaus
photography by © Ryuji Inoue / Studio Bauhaus
photography by © Ryuji Inoue / Studio Bauhaus
photography by © Ryuji Inoue / Studio Bauhaus
photography by © Ryuji Inoue / Studio Bauhaus
photography by © Ryuji Inoue / Studio Bauhaus
photography by © Ryuji Inoue / Studio Bauhaus
photography by © Ryuji Inoue / Studio Bauhaus
photography by © Ryuji Inoue / Studio Bauhaus
photography by © Ryuji Inoue / Studio Bauhaus
photography by © Ryuji Inoue / Studio Bauhaus
photography by © Ryuji Inoue / Studio Bauhaus
photography by © Ryuji Inoue / Studio Bauhaus
photography by © Ryuji Inoue / Studio Bauhaus
photography by © Ryuji Inoue / Studio Bauhaus
photography by © Ryuji Inoue / Studio Bauhaus
photography by © Ryuji Inoue / Studio Bauhaus
photography by © Ryuji Inoue / Studio Bauhaus
photography by © Ryuji Inoue / Studio Bauhaus
photography by © Ryuji Inoue / Studio Bauhaus
photography by © Ryuji Inoue / Studio Bauhaus
Site Plan
Plan 1
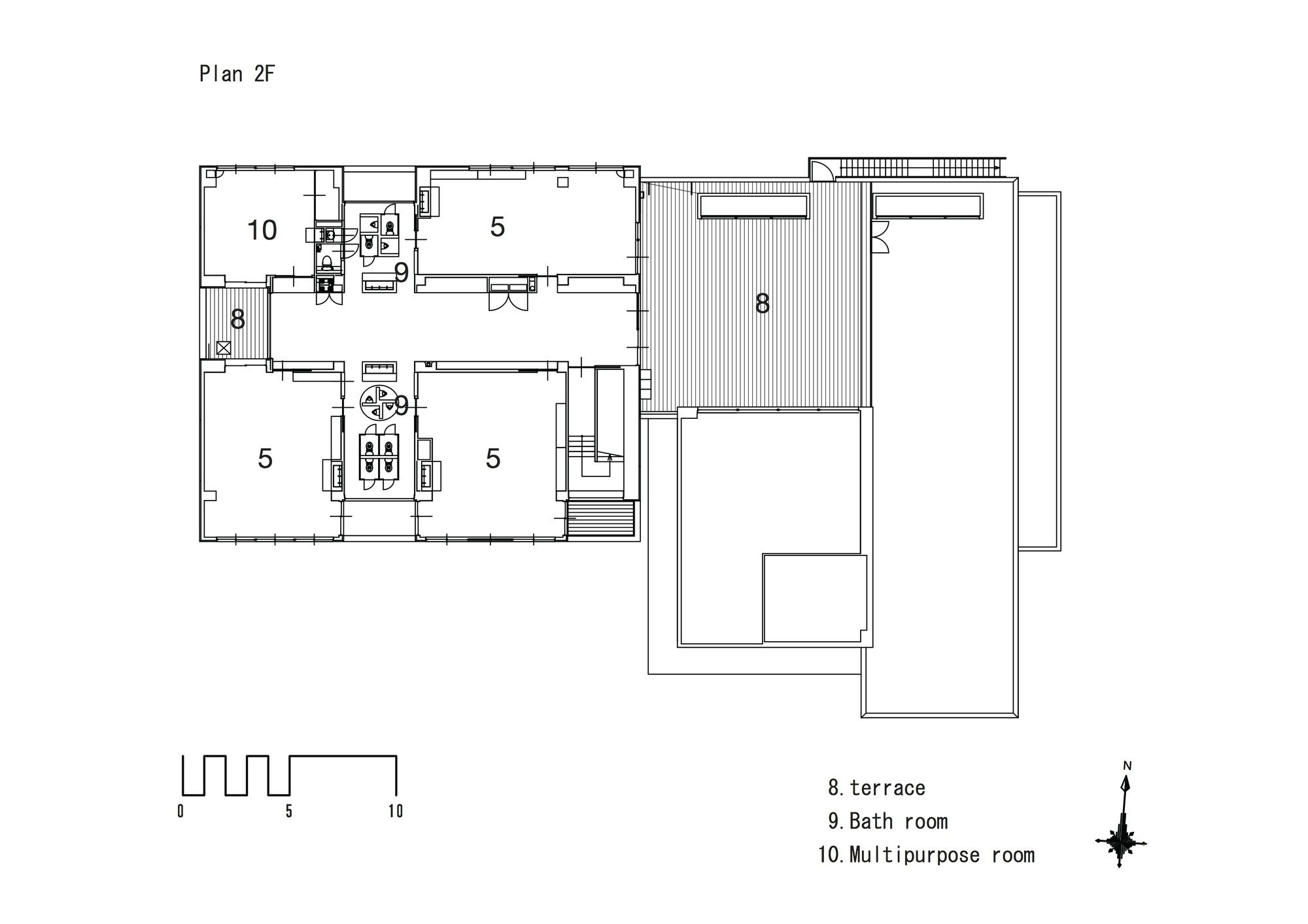
Plan 2
Elevations
Sections
客服
消息
收藏
下载
最近







































