查看完整案例


收藏

下载
众舍设计受邀为最美期待(武汉)科技有限公司打造一个合作共享的办公空间,该项目位于武汉市,东湖新技术开发区,k11写字楼内,层高约4m。本项目旨在是激发灵感并改善工作环境,提倡随性自由,没有束缚感的办公空间。管理者与员工共同工作,上层与下属阶级模糊化,工作合作交流更加方便。
众舍设计为该空间打造了具有现代感的开放式设计方案,顶面与立面的木构造进行了几何化的切割,交叠,重组,看似随机但是依然有序,同时为空间带来一丝的不确定性。且在其中加入了软膜材质的灯光面,可以说是点睛之处,前台的家具设计上与顶面立面的木构造相呼应。明亮的色彩和木纹加以巧妙运用,使得整个空间简洁温暖而有活力。
彩色的立柱与几何的地毯和简洁的家具相互搭配,显得十分的和谐。顶面的木构造贯穿了整个天花板,将工作区域和中间的公共区域连接起来。
▲中央区域
▲标识与色彩
在平面布局上有意增强各个空间之间的联系,实现空间中的各种交流,通过不同的颜色进行细致的分区。墙面和地毯上的标识与色彩带来了强烈的视觉冲击,在一种流动的空间形式中划分出不同的区域。
▲平面图
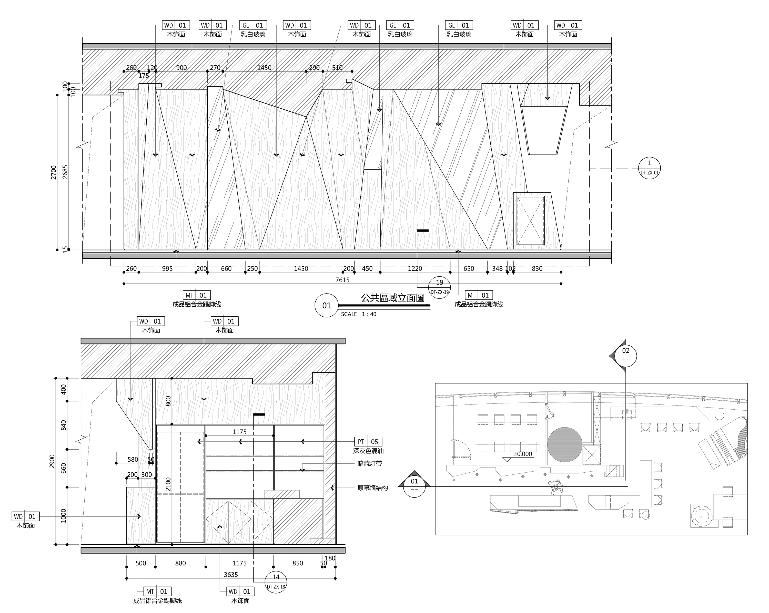
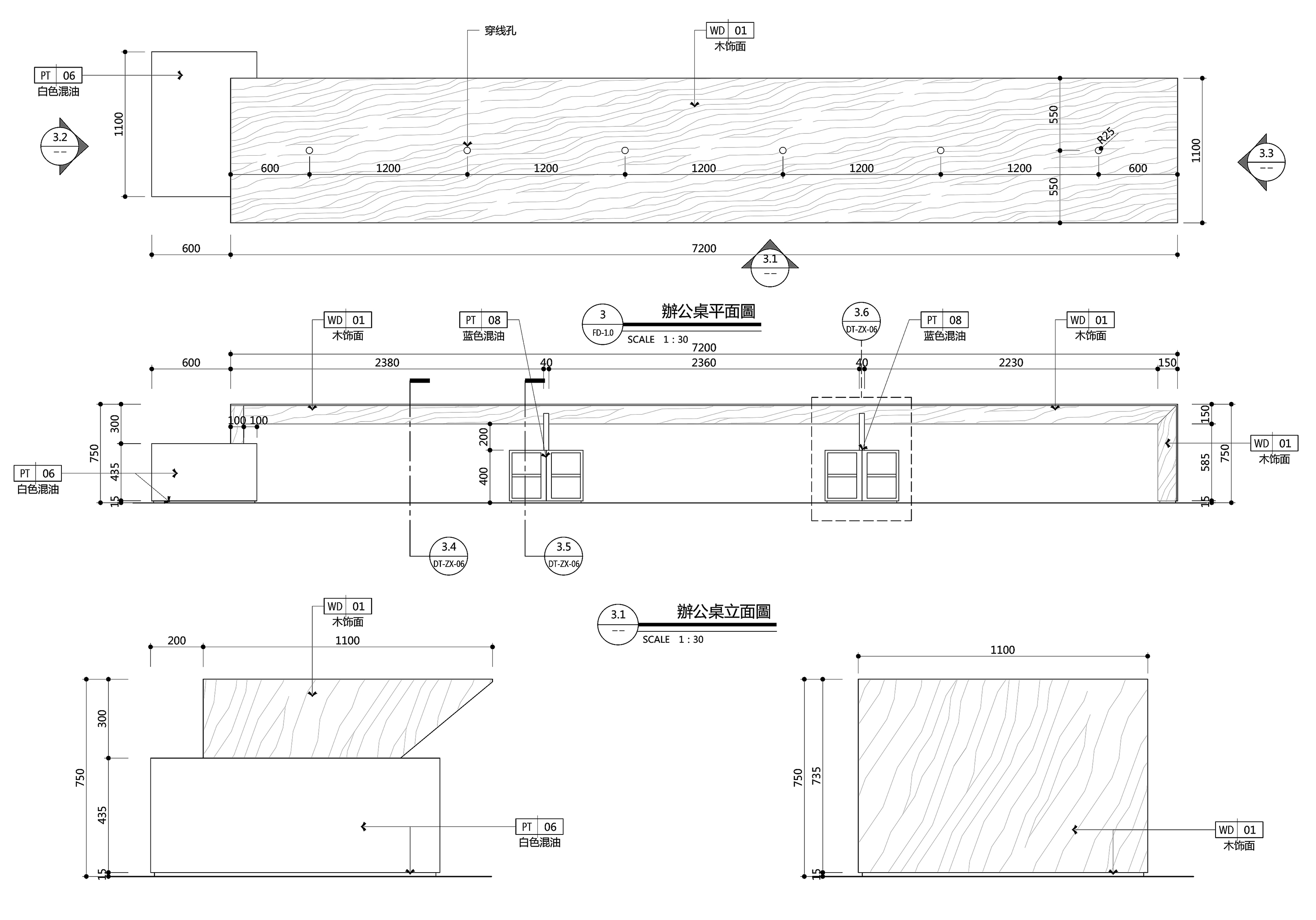
▲立面图
▲剖面图
▲分析图
▲模型
▲三维平面图
项目信息——
项目名称:最美期待科技办公室
项目地点:武汉市,东湖新技术开发区,k11写字楼
完工时间:2018年8月
设计公司:众舍空间设计
主要设计师:王辉,戴奇伟
项目面积:500㎡
主要材料:木纹(BODAQ)、块毯(魔毯王国)、钢化玻璃、钢板、亚克力、HAY家具
摄影师:汪海波
客服
消息
收藏
下载
最近























