查看完整案例


收藏

下载
品牌形象的打造与升级成为越来越多制造业企业提升软实力的方式之一,走过十年的奥轩服饰期望用崭新而有品位的形象传达他们的精益品质。
无声的语言
企业总部形象是企业品牌最直观的展示,无需言语就能在无形中向参访的人传达企业的品味和文化。
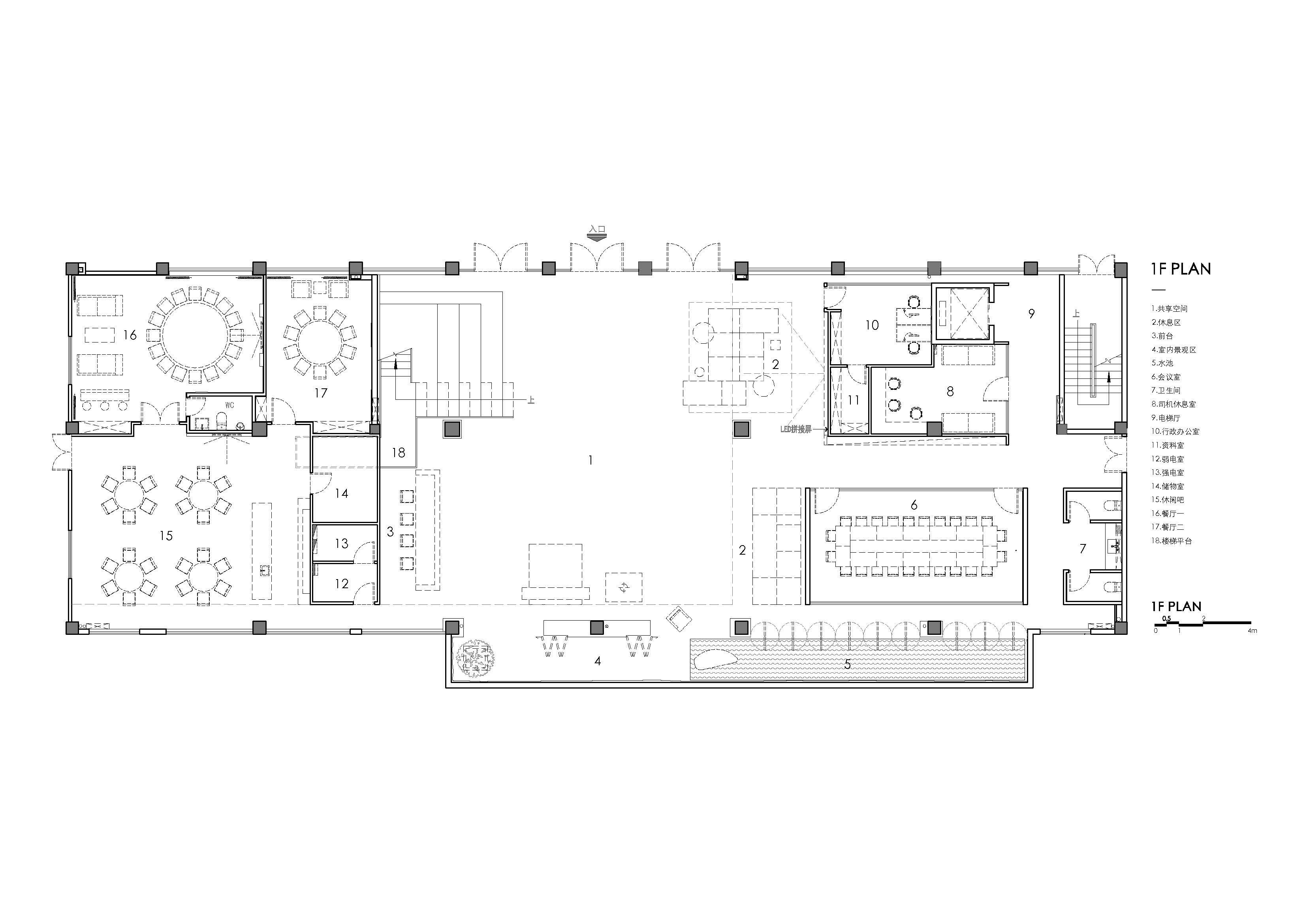
奥轩服饰从原旧办公总部搬到国家生态工业示范园区内的工业园。该项目是奥轩企业总部的公共空间,一楼的架空层及环绕架空层的坪地, 这里被赋予“共享”的理念,承载走秀、发布、展览等公共功能,旨在打造成集环保、自然、艺术与人文关怀的场所。也是奥轩对外品牌展示的一个重要窗口。
自然的对话
设计师对原有的建筑进行了改造,将与外界交界的南北墙体打通,变成通透、对流的架空共享空间,非室内,亦非室外,把风、光、景的自然元素置入空间。
自然对流的风向设计,放弃了人工温度设备,只有穿堂而过的自然风,体验四季的变化。
▲平面立体图
▲对流图
空间设计满足多功能与针对不同人群的需求,从T台秀、产品发布、展示展览、外访会议交流等针对客户的起到展示品牌的作用。建筑空间里的电子屏幕和阶梯,摇身一变就是小型观影室。让更多的工人参与公共空间的活动,并融入其中,体现了企业的人文关怀。合理的空间动线布局让空间真正实现共享。
▲灯光图
空间的天花板并无任何一盏灯,取消昼日照明,而是利用地面光束的漫反射来实现照明。或许只有在夜幕降临时,才会被人讶异这设计,可以如此感受到一天的自然气息变化。
架空层的前坪后庭都进行了规划,前坪的花木、座椅,后庭的水景与植物墙,都与建筑空间融为一体。水、木、花的自然背景,既打破室内外的界限又体现了环保的理念。
美学的觉醒
结合企业产品的特性。设计师以黑白灰为空间的主色调,强化企业的独特性,同时通过构建艺术感和建筑感,诠释属于奥轩的企业美学。
所有功能房间以单体建筑的形式呈现,错落有致、大小不一。这些盒体,给空间带来了更多的建筑体量感。
▲结构图
将原有建筑结构几何图案,在形态上伸展变化,楼梯与天桥一贯而成,黑色拉丝不锈钢隔板的运用,把每一个简单几何案变为有雕塑感的作品,空间连接功能的实用性与艺术性的融合,让视角空间有了灵动。
▲效果图
▲总规划图
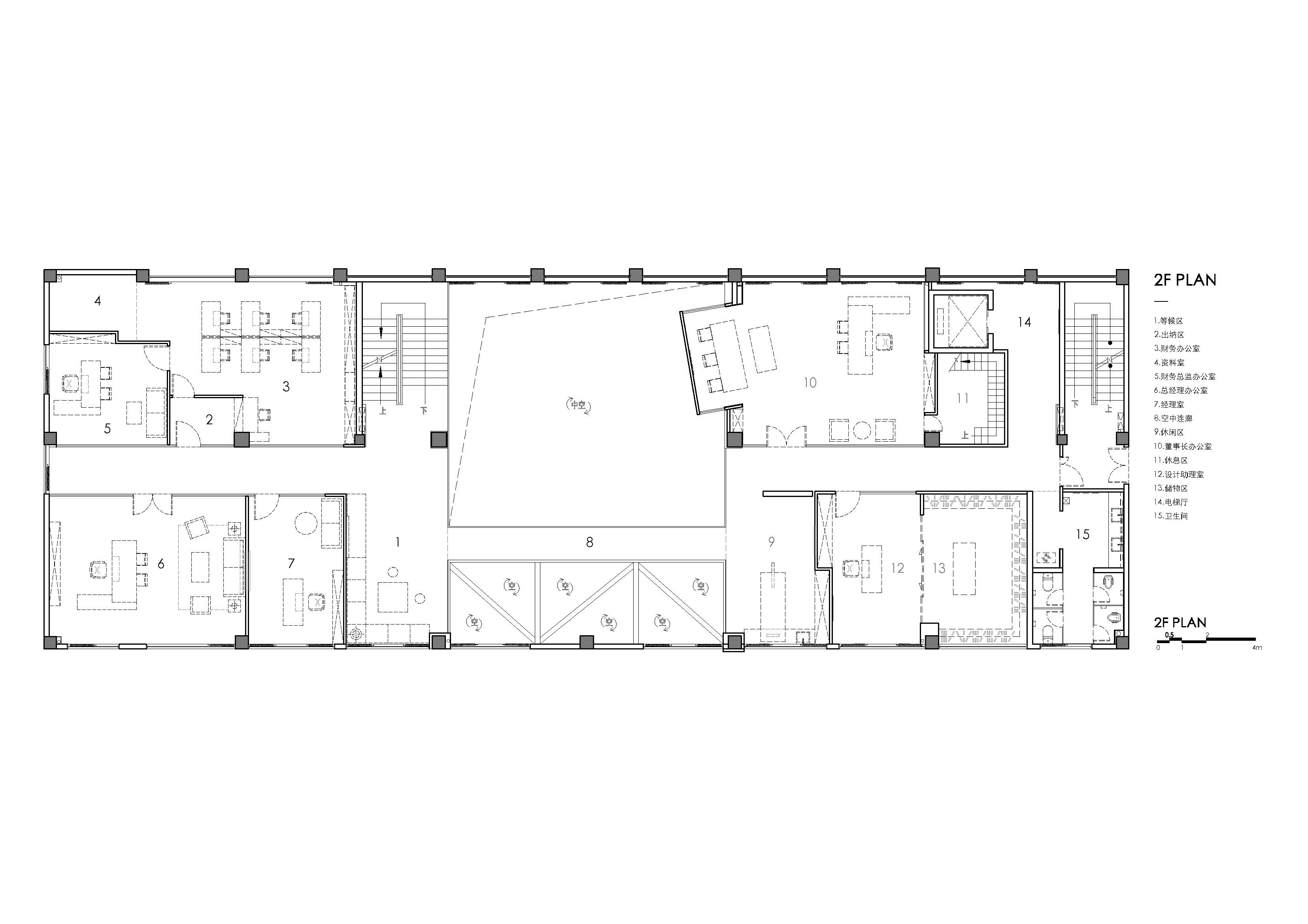
▲平面图
▲轴测图
▲立面图
项目信息——
项目名称:AX-共享
项目面积:2000㎡
项目地点:中国佛山
设计单位:瑞坤国际—正方良行设计公司
主创设计:徐庆良
设计团队:黄缵全
施工图深化团队:CHL施工图深化
设计时间:2016年8月
开放时间:2018年1月
主要材料:TOA太涂水泥基艺术涂料、费罗娜陶瓷、灰色大理石、铝蜂窝复合不锈钢板
摄影师:吴永长
客服
消息
收藏
下载
最近

































