查看完整案例


收藏

下载
△东莞 CBD 示范性停车楼© GWPArchitects
2019 年,由 GWP 设计的东莞 CBD 示范性停车楼通过全球招标从国内外竞标作品中脱颖而出,经历方案推敲和深化设计于 2020 年定案,在疫情期间高效建设,2021 年竣工并投入使用。
△东莞 CBD 示范性停车楼© GWPArchitects
项目基地规划面积 4844 平方米,总建筑面积 20575 平方米,为访客提供四百多个泊车位、四千多平方米的商业设施,是东莞市城市形象更新、有效舒缓交通压力的第一个试点停车楼,同时将其与城市、环境彼此联系起来为这座快速现代化的都市添些安静与写意。
△东莞 CBD 示范性停车楼© GWPArchitects
东莞 CBD 示范性停车楼在业主、设计、建设等多方的高效配合下,已获得美国 GoldNugget Awards 金块奖、东莞市优秀勘察设计、中国香港 A&D Awards、美国 MUSE Design Awards 等国内外知名建筑奖项约二十个,并收到合作伙伴的表扬信与高度认可,这也使我们更加坚定目标与信心:在城市发展的新阶段,创作出回应城市功能的多变需求的高品质建筑——强调空间的多重性与复合性。
——东莞 CBD 示范性停车楼不仅有效缓解了“停车难”的问题,更体现出设计师对建筑功能、美学与在地性的深入思考:将当下商业模式与城市环境融合,使建筑为城市公共生活的人群提供开放、亲切而赋有参与感的场所,这是我们的设计目标和追求所在。
——GWP 团队
△东莞 CBD 示范性停车楼模型© GWPArchitects
01 项目区位 LocationBackground
△东莞 CBD 示范性停车楼© GWPArchitects
项目位于莞城区石竹路与体育路交界处,属于东莞市一心两轴的重点核心城区,通往东莞市政府的直线距离约 200 米,且周边城市功能及路网成熟,具有很大的城市可视视角。
△区位分析图© GWPArchitects
△区位分析图© GWPArchitects
项目面临着多重挑战,一方面是广受关注的城市区位多样化的建设需求,另一方面则是该地区长期以来泊车位不足,造成停车占用了本来就紧张的道路资源等多重交通隐患的问题,动静交通都承受着巨大的压力。
△东莞 CBD 示范性停车楼© GWPArchitects
设计难点
Design Difficulties
△东莞 CBD 示范性停车楼© GWPArchitects
面对项目的功能性和公共性,设计师谨慎且积极地介入这一场地。
常见的停车楼往往以实体或是裸露的机械形式出现,更像是城市中被动的构筑物,甚至给人以刻板的印象。而设计师希望做出些许尝试,让它能够与城市交流,赋予其建筑物的精神属性:
·流动——体现源自在地的思考,确保行车流线安全合理。
·体验——在有限空间内提高建筑使用率及空间价值。
02 无限流动的建筑语言 InfiniteFlow
△东莞 CBD 示范性停车楼© GWPArchitects
本案概念灵感结合了东莞水乡独特的蜿蜒水脉以及项目地所在“一心两轴”的核心位置,设计师提出以延伸的两条城市主干道汇为流水灵动般的丝带缠绕,并利用车流动线作为牵引力形成盘旋上升的建筑体态。
△设计概念© GWPArchitects
△东莞 CBD 示范性停车楼
© GWPArchitects
在视觉上,外立面的曲线形态直接反应了设计理念的真实逻辑。立面语言将周边无序停车的现状重新梳理、扭转,并构建空间及城市雕塑。环绕的“丝带”贯穿建筑的每一个角落——曲水流思的设计方式如同河流的漩涡,交融于河流的水波,又各具空间特色。
△东莞 CBD 示范性停车楼© GWPArchitects
停车楼作为该区域的交通设施,从内到外地创造出与周边城市环境相融合的建筑语言——成为新型社区空间和人际关系的新场所。
03材料的构造
Material And Construction
△东莞 CBD 示范性停车楼© GWPArchitects
在这个流动曲线的建筑中,建筑表皮无疑是个大挑战,设计师通过分段模块化设计以实现建筑整体且有机的表皮:采用铝板为主体材质,呈现出流动曲线独特的肌理。
△东莞 CBD 示范性停车楼© GWPArchitects
设计师认为选择铝板材质一方面可满足建筑表皮的流动曲线结构,保持连续弧面的纯净感,铝板构造的连接方式将板块水平缝隙精密衔接,既满足了幕墙的安全性需求,又能使立面光滑。另一方面可以随着时间的荏苒,自然的变化呈现建筑的柔美与蜿蜒起伏流动的效果。
△东莞 CBD 示范性停车楼© GWPArchitects
入夜,整个建筑随着灯光缓缓地明暗呼吸,以及目视可见的车辆穿梭于建筑中,人们能真切地感受到建筑独有的“生命感”。
△东莞 CBD 示范性停车楼
© GWPArchitects
04流线赋予高效体验
Curves Empowers Efficient Experiences
△东莞 CBD 示范性停车楼© GWPArchitects
高效的结构和动态流线是停车楼的设计核心。在平面动线上采用人车分流,一方面针对车辆类型设置了独立的交通流线,以保证面对停车场内突发事件的灵活应对。同时利用斜板停车结构,使之比普通的平板停车结构利用率提高了 30%,可以增加 25%的有效泊车位,从而更加高效地解决周边市中心地区一位难求的停车拥堵问题。
△东莞 CBD 示范性停车楼© GWPArchitects
另一方面基于使用者的驾驶心理,设计师在建筑的西南段采用了极富表现力且节省空间的螺旋坡道结构,形成一条独立于驶入流线的驶离捷径,将车辆高效快速地从一层引入六层,大大提高了停车的效率,迎合了使用者快速通行的需求。
△东莞 CBD 示范性停车楼© GWPArchitects
实现最佳的交通流线还需要充足的转弯空间,因此为了使停车率和建筑面积最大化,设计师将建筑转角制定了一套流动的规划策略:将平面向垂直方向“柔和过渡”,以增强建筑的流动性。
05优化空间界面
Optimize The Space Interface
△东莞 CBD 示范性停车楼© GWPArchitects
区别于传统停车楼带给人们拥挤、通风差的停车体验,设计师在建筑内部置入中庭空间打破场所的封闭感,既丰富了停车时的视觉体验又促进场地的空气流通,利用“无限流动”的结构将车辆行驶带来的汽车尾气经由自然呼吸的中庭空间输出到室外,使氧气通过立面上丝带环绕的缝隙补充进来,从而形成了空气的良性循环。
此外,中庭作为人们提供建筑方位感的空间中心,同时起到转换空间氛围、提供记忆坐标的作用。
△中庭空气循环分析© GWPArchitects
为更加积极地回应城市诉求,设计师希望在本项目中额外设置一系列商业的公共设施。因此设计师将负一层、首层和二层打造为底部开放空间作为城市公共空间的有机组成部分和市民公共活动的主要场所,使其因功能和空间上的多重利用而衍生出更多的价值。并且,设计团队在首层设置南北贯通的步行架空走廊,连通中央广场与南侧的城市公园使其成为城市慢行系统中的一处有趣节点。
△东莞 CBD 示范性停车楼
© GWPArchitects
△东莞 CBD 示范性停车楼
© GWPArchitects
06结语
Conclusion
△东莞 CBD 示范性停车楼© GWPArchitects
东莞停车楼将交通建筑以功能性为导则提出,通过无限流动的建筑语言、多样化使用体验、优化空间界面为设计出发点,规划设计出不仅是交通建筑,也是人群和商业活动的空间汇聚点,更是为停车楼提供了由车转向人群的解题思路。
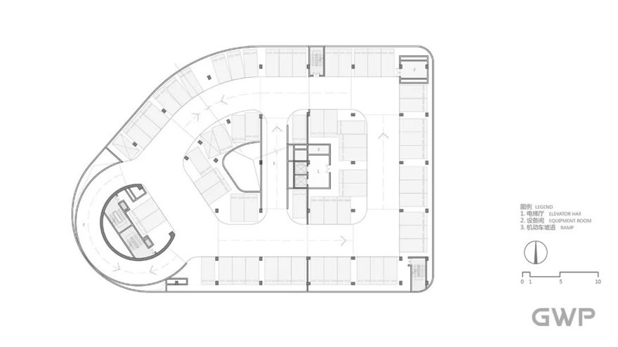
△东莞 CBD 示范性停车楼首层总平面© GWPArchitects
△东莞 CBD 示范性停车楼负一层平面© GWPArchitects
△东莞 CBD 示范性停车楼二层平面© GWPArchitects
△东莞 CBD 示范性停车楼四层平面© GWPArchitects
△东莞 CBD 示范性停车楼立面© GWPArchitects
△东莞 CBD 示范性停车楼剖面© GWPArchitects
△东莞 CBD 示范性停车楼剖面© GWPArchitects
项目名称:东莞 CBD 示范性停车楼
设计团队:GWP 建筑事务所
项目地址:中国·东莞
用地面积:4844 平方米
建筑面积:20575 平方米
设计范围:建筑设计、景观设计
分类:交通建筑、地标停车楼、公共空间、公共职能建筑
主建筑材料:混泥土、铝板、玻璃
摄影:虫二影像
客服
消息
收藏
下载
最近



































