查看完整案例


收藏

下载
©赵强
海达停车楼将一个单体建筑以系列化、可复制的导则提出,以单纯的简化使用体验、优化用户界面为设计出发点,梳理出一整套具有延续性的营造逻辑与技术手段,将停车楼的设计重点由车转到人,提出一个可以实现连锁化经营的停车楼的解决方案。
感谢浙江大学建筑设计研究院有限公司
随着城市汽车保有量的快速增长,各大城市相继出台车辆限行政策,自驾出行往往不能以简单的距离来估算时间;找车位,等车位,甚至违章停车,都给城市带来了大量无意义的碎片化的交通流量,从而影响城市的动态交通,形成恶性循环;对于停车人员来说,以往停车楼带给大家的都是阴暗、狭小、拥挤、通风差的空间画面和单调乏味的停车体验。
▲停车楼俯视赵强
2017 年初,钱投集团计划在杭州市区范围内新建一系列停车楼来优化城市的静态交通,并组织了一次国际范围的方案征集竞赛。作为仅有的两家受邀的境内设计单位,我们从杭州的互联网文化中汲取了应用软件的开发思路,试图将一个单体建筑的设计衍生成为一组系列式的停车楼产品。
▲停车楼紧邻东南侧行政商务区赵强
▲俯视图 赵强
项目用地位于杭州经济技术开发区,用地呈狭长的三角形,用地周围分布有区域商业中心,开发区行政服务中心,酒店、公寓等多种业态,周边交路网早已经成熟,人、车流密集;城市的动静交通都承受着巨大的压力。
▲东侧俯视三角形基地
赵强
作为本土设计单位,我们更了解这座城市的“运转”特点,通过简化使用体验,优化操作界面的互联网思维,提高市民的参与度,梳理末端碎片化的交通,凭借连接城市末端交通网络的“微枢纽”的网点式停车楼产品获得了本次竞赛的优胜。而建成后的海达停车楼,便是一份生动、具象地介绍整个“停车楼计划”的产品说明书。
▲斜板停车流线研究
浙江大学建筑设计研究院有限公司
▲北侧沿河建筑外观
赵强
▲南侧沿路建筑外观
赵强
简化使用体验
停车楼的核心无疑是流线的组织。有别于传统自由式检索车位,本案试图对车位的检索方式加以“规定”。单向双车道驶入,停车区域采用水平楼板++ 斜板停车的组合,消解了层的概念,预停车辆始终行驶在停车区,使用者不再需要选择路线,根据检索流线遇到的第一个空车位便是最近的车位。单向双车道也保证了停车车辆不会影响后方的行进车辆。
▲嵌套在架空层内圆形坡道赵强
区别于驶入车辆检索式的行进,驶离车辆的目的性明确,他们也会更焦急一些。所以,我们认为将驶入和驶离的车辆放在同一流线是低效且不符合用户心理的。而三维展开的停车楼恰恰也提供了创造捷径的可能性:一个专用的螺旋坡道位于停车区一端,并串联起各个标高的水平段,形成一条独立于驶入流线的驶离捷径,迎合了使用者快速离开的需求。
在坡道上行驶也可以感受到光影和四季变化。
赵强
优化用户界面
简单、完整如交通标识的形体往往更容易被人记住,停车楼需要一定的识别度让使用者从周围纷杂的城市背景中认出来。
▲让基地获得重生的停车楼
赵强建筑造型摒弃了冗余的建筑语汇,以漂浮的建筑形体,开放而有韵律的建筑表皮,结合流线形的灯光布置与生态绿植的引入,既体现了汽车工业式的美感,具备必需的辨识度;又区别于传统停车楼冰冷、封闭的形象。
简洁飘逸的停车楼夜景赵强
▲东西两端坡道带来了独特的停车体验
赵强
▲内透灯光让穿孔铝板表皮如朦胧面纱 赵强
▲夜景局部
赵强
中庭空间的引入可以打破人身处于盒子空间中的封闭感,尤其对于停车楼这种空间较为单调的建筑,中庭作为人们提供建筑方位感的空间中心,同时起到转换空间氛围、提供记忆坐标以及给人带来安定放松感受的可回归场所的作用。
▲开敞的三角形中庭
章鱼见筑
▲连接中庭的步行楼梯
赵强
停车楼场地内实现人车分流,底部开放性空间作为城市公共空间的延续部分,布置了为周边居民或使用者提供社会服务及便民功能的空间类型。
▲东侧底层商业主入口 赵强
结合北侧商业入口设置的底层架空空间,赵强在首层和地下一层局部设置架空空间、下沉庭院、景观小品或者活动设施来提高空间的活力和引入商业人流,在创造良好景观效果和商业价值的同时为人们提供一处休闲、交往的开放场所,拉近城市与人之间的关系,从而增加建筑的亲切感。
▲西侧结合下沉广场设置的地下商业入口
©章鱼见筑
预留接入端口
自驾并不是通勤的唯一方式。停车楼底层架空,地面设置公共自行车与共享单车网点,使停车楼能够拓展 1-2 公里的较为便捷的通勤半径;结合设置电动汽车租赁站点,使停车楼的角色由起止点向中转站过渡。特别是当这样的停车楼以网点的形式布局时,更多的人会愿意使用停车楼。
▲坡道与架空空间
赵强
夜景,汽车坡道和中庭的步行楼梯赵强梳理开发逻辑。
总体布局上,针对不规则用地,部分区域停车效率偏低,可以用 18 米宽的折板为标尺,环绕场地一周,将占地要求最小的螺旋坡道放在较局促的一侧,从而得到停车效率最高的建筑轮廓。
功能逻辑上,底层为商业,二层为水平楼板的“潮汐式停车”,三层及以上为折板++螺旋坡道的停车区。“潮汐式停车”的意义在于,高峰时期,可以提供更多的停车位。晚间及节假日则有条件设置一些临时商业或社区活动,也可以为一些车展、集会提供场所。
▲停车楼与底层商业复合模式研究浙江大学建筑设计研究院有限公司
▲二层潮汐区域平面
浙江大学建筑设计研究院有限公司
▲潮汐停车区域
赵强建筑主体采用装配式 PC 预制混凝土,表皮采用预制构件,快速装配,成本较低。通过同一构件不同拼接的方式营造出富有变化的立面效果,穿孔板可避免在停车楼内部形成炫光提高行驶的安全性。每块单元板上除了考虑装饰性、通风与采光外,还预留有泛光灯槽,实现建筑表皮像素化,可满足多种模式泛光效果,广告,大型活动背景板等多场景的要求。
▲表皮肌理局部
赵强海达停车楼将一个单体建筑以系列化、可复制的导则提出,以单纯的简化使用体验、优化用户界面为设计出发点,梳理出一整套具有延续性的营造逻辑与技术手段,将停车楼的设计重点由车转到人,提出一个可以实现连锁化经营的停车楼的解决方案。
▲穿孔铝板单元构件尺寸研究
浙江大学建筑设计研究院有限公司
▲单元构件折边夹角研究
浙江大学建筑设计研究院有限公司
▲单元构件穿孔图案研究
浙江大学建筑设计研究院有限公司
项目图纸
▲总平面图
浙江大学建筑设计研究院有限公司
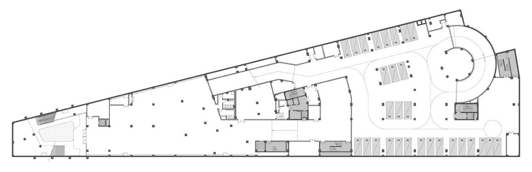
▲一层平面图
浙江大学建筑设计研究院有限公司
▲二层平面图
浙江大学建筑设计研究院有限公司
▲三、四层平面图
浙江大学建筑设计研究院有限公司
▲五层平面图浙江大学建筑设计研究院有限公司
▲立面图
浙江大学建筑设计研究院有限公司
▲剖面图
浙江大学建筑设计研究院有限公司
项目名称:杭州钱投海达停车楼
设计单位:浙江大学建筑设计研究院有限公司
设计时间:2017 年
完成时间:2020 年 7 月
总建筑面积:28860 平方米
摄影版权:赵强、章鱼见筑
客户:杭州文停项目管理有限公司
材料品牌:击孔铝板、仿清水外墙涂料、玻璃
主创建筑师:范须壮
建筑设计团队:范须壮、朱恺
结构设计:程柯
机电设计:方火明、孙登峰、邵春廷、袁晓男
幕墙设计:杭飞
照明设计:陆丹雨
景观设计:姚浩军
业主单位:杭州文停项目管理有限公司
EPC 工程总承包:浙江省一建建设集团有限公司
小号小号
客服
消息
收藏
下载
最近






































