查看完整案例


收藏

下载

翻译
Habitarte
The Habitarte Residential Condominium occupies an entire block surrounded by quiet tree-lined streets in the heart of the Brooklyn neighborhood. Placing four buildings around a large private square measuring 1,000 square meters guarantees that none of the buildings obstructs the view of the other.
photography by © Ana Mello
Two other buildings are located at the edge of the lot, set back 10 meters from New York Street, thus creating yet another semi-public square. The visual language of the buildings is defined by straight lines and “boxes” that frame the apartments at different heights.
photography by © Ana Mello
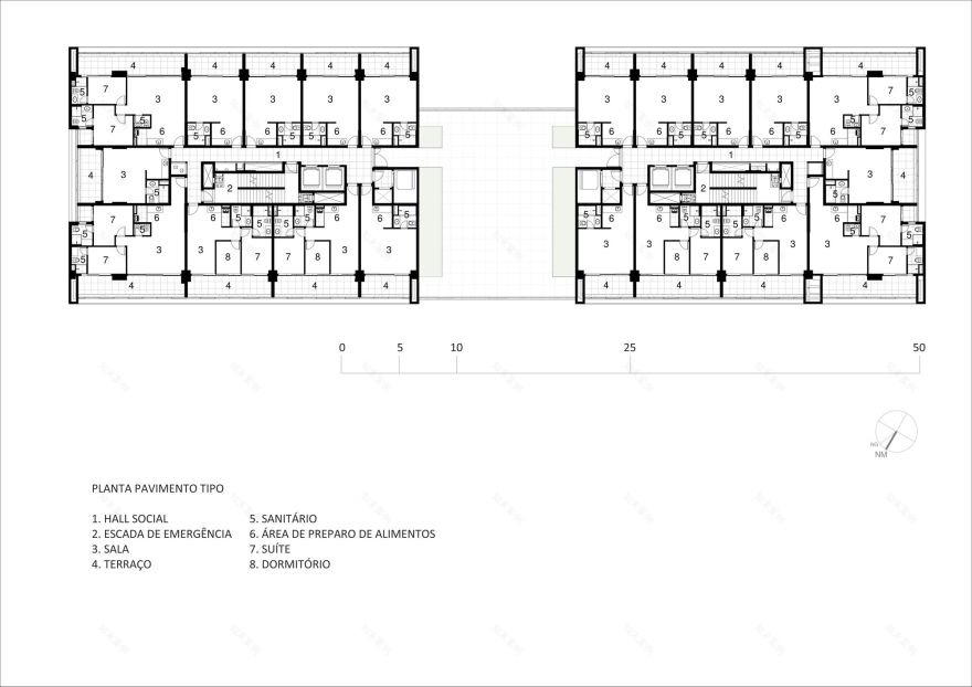
The floor plans of the three buildings with 31 stories were designed in the shape of a “windmill” with a central service core surrounded by the apartments that go on rotating and fitting into one another in such a way that they all have an unobstructed view. In the other three buildings, a rectangular floor plan was designed with apartments on both sides, one with a view of the street and the other with a view of the internal square. The inclusion of a supermarket incorporated into the buildings’ entrance hall next to New York Street and the semi-public square contributes to a greater vitality in the neighborhood.
In the middle of the buildings, there is a sculpture of the Brothers Campana-Studio Campana. An urban artwork open to the public.
photography by © Ana Mello
Project Info
Architects: aflalo/gasperini arquitetos
Location: Sao Paulo, Brazil
Author Architects: Felipe Aflalo Herman, Roberto Aflalo Filho ,Grazzieli Gomes Rocha, José Luiz Lemos
Coordinator: Fabiano Sinibaldi
Client: Stan, Yuny
Team: Daniela Mungai, Julio Basttistin Neto, Itala Gringolin Bonatelli, Ana Carolina Pinheiro, André Buelau, Joana Espinha, Eduardo Mizuka, Raquel Rodorigo, Bruno Bergamo, Marcelo Marcelo Nagai, Marcello Daniel Zahr, Ana Beatriz Barros, Reginaldo Okusako, Juliana Baldocchi, Joon Park, Marina Malagolini, Gabriel Braga, André Navarro, Reinaldo Sigueta, Bruno Vargas, Alan Holanda, Kenzo Abiko, Lígia Meirelles
Construction Company: Construcompany
Air Conditioning: Contractors Engenheiros Associados
Automation: Fast Life Automação Residencial
Frames and Facade: Arqmate Projetos e Esquadrias
Interior Design – Conception: João Armentano
Artistic Installation: Irmãos Campana
Eletric, Hydraulic and Fire Protection Intallations: SKK Engenharia
Concrete Structure: Knijnik Engenharia
Metal Structure: Alaxis
Foundation: Infraestrutura Engenharia
Lighting: Mingrone Iluminação
Landscape Design: Luiz Carlos Orsini
Acoustic: Harmonia Davi Akkerman + Holtz
Area: 37835.0 m2
Year: 2017
Type: Residential
Photographs: Ana Mello
Manufacturers: Alaxis, Ibratim, Glassec
photography by © Ana Mello
photography by © Ana Mello
photography by © Ana Mello
photography by © Ana Mello
photography by © Ana Mello
photography by © Ana Mello
photography by © Ana Mello
photography by © Ana Mello
photography by © Ana Mello
photography by © Ana Mello
photography by © Ana Mello
photography by © Ana Mello
photography by © Ana Mello
Ground Floor Plan
Floor Plan Example
Leisure Floor Plan
Longitudinal Section
客服
消息
收藏
下载
最近



















