查看完整案例


收藏

下载

翻译
Atriumtower Hiphouse Zwolle
The Hiphouse project in Zwolle presented Atelier Kempe Thill with a welcome opportunity to fundamentally question the assignment ‘social housing’. Largely due to the client’s ambition and the active support of urban planners, a prototypical project could be realized without exceeding a typical Dutch standard budget for comparable projects. A radical minimization of architectural means and a visible assertion of the processes and technologies of the building process helped to realize a maximum of living quality.Glass Tower Centralized Typology: An Alternative to the Deck-Access Typology
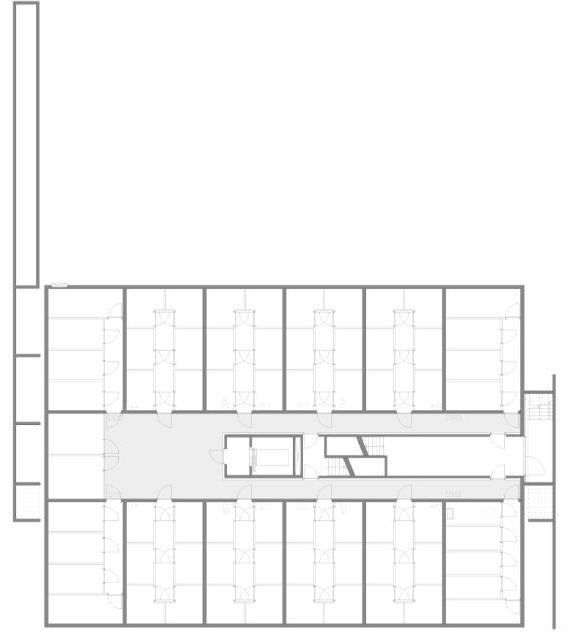
The deck-access typology is the most common form of multi-story social housing in the Netherlands because a large number of apartments can be connected to a limited number of stairwells. Despite the social stigma this typology has come to represent, it remains an almost inevitable solution. Due to its extreme cost-efficiency, it is still being employed today in large numbers. The very compact building typology realized through the central circulation in Zwolle offers an economic and competitive alternative.
Photography by © Architektur-Fotografie Ulrich Schwarz
The building block, measuring 23m x 32m and providing 8 units per floor, has a very limited facade surface in relation to its floor area; this favorably affects building costs and enables the high-quality detailing of the facade. The housing units are organized around a central core containing a double stair and an elevator. The plan layout allocates the larger apartments to the spatially interesting corners, thus creating apartments with double orientation. The smaller studio apartments either face east or west, guaranteeing optimum sunlight for all apartments. To compensate for its volumetric compactness, the building’s surface is consistently glazed. Anodized aluminum profiles hold the high-quality solar-protection glazing to form the facade. Depending on the viewer’s position the building appears to be covered by a transparent skin or a reflective surface; furthermore, sliding doors provide generously dimensioned facade openings.
Photography by © Architektur-Fotografie Ulrich Schwarz
Circulation as Collective Space: The Atrium
The arrangement of apartments along the volume’s perimeter creates the opportunity to insert a central atrium at no additional cost. A 5.4m high entrance hall gives access to this space, which measures a vertical 26m and is illuminated by a skylight. At the core of the building, the atrium lends an unexpected spatial generosity, which stands in surprising contrast to the external appearance.Panorama and Light: The Emancipation of Social Housing
Upon entering the apartments it becomes evident that even in social housing real luxury should be indispensable. The units are very well lit, with minimal circulation areas and large living spaces with freestanding kitchen blocks. Loft spaces are not an exclusive form of living reserved for a well-to-do elite but are also realizable in the context of social housing. An emancipation of the lower income classes will last but not least have to be achieved through an increase in the quality of individual housing.
Photography by © Architektur-Fotografie Ulrich Schwarz
Project Info
Architects : Atelier Kempe Thill
Location : Rotterdam, Netherlands
Year : 2009
Type : Residential
Photographs : Architektur-Fotografie Ulrich Schwarz
Photography by © Architektur-Fotografie Ulrich Schwarz
Photography by © Architektur-Fotografie Ulrich Schwarz
Photography by © Architektur-Fotografie Ulrich Schwarz
Photography by © Architektur-Fotografie Ulrich Schwarz
Photography by © Architektur-Fotografie Ulrich Schwarz
Photography by © Architektur-Fotografie Ulrich Schwarz
Photography by © Architektur-Fotografie Ulrich Schwarz
Photography by © Architektur-Fotografie Ulrich Schwarz
Photography by © Architektur-Fotografie Ulrich Schwarz
Photography by © Architektur-Fotografie Ulrich Schwarz
Photography by © Architektur-Fotografie Ulrich Schwarz
2nd floor plan
basement floor plan
elevation 01
elevation 02
ground floor plan
section 01
section 02
客服
消息
收藏
下载
最近




















