查看完整案例


收藏

下载
项目地点丨北京市
建筑类型丨科研办公
用地面积丨14,660 ㎡
建筑面积丨20,500㎡
设计时间丨2014-2016
竣工日期丨2019
设计单位丨清华大学建筑设计研究院
合作单位丨北京博思堂建筑设计事务所
方案负责人丨李卫
项目负责人丨姚虹
建筑设计丨蔡郑强 张怀萍 梁增贤
结构设计丨李青翔 王彩玲 沈敏霞
给排水专业丨徐京晖 赵惠天
暖通专业丨王一维 周溯
强电专业丨刘素娜 刘力红 武毅
弱电专业丨刘素娜 刘力红 武毅
摄影师丨金伟琦
01 项目背景 Project Background
“清华简”是清华大学于 2008 年 7 月收藏的一批战国中期楚墓出土的国家级文物,共约有 2500 枚(包括少数残断简),总字数近 6 万字,以经、史类经典为主。由于其在秦之前就被埋入地下,未受到“焚书坑儒”的冲击,所以能够最大限度地呈现先秦古籍的原貌。
▲清华简
清华大学专门成立出土文献研究与保护中心,以李学勤先生为首,组织十余位专家、教授、博士生、博士后的研究团队进行释读、整理。为解决研究场所的局限问题,改善文物保存条件,新建出土文献研究与保护中心大楼,进行珍贵出土文献的研究、保护与文化瑰宝的展示传承,并提供人文研究交流场所。
为解决现有研究场所的局限问题,改善文物保存条件,清华大学拟建设出土文献研究与保护中心大楼,进行珍贵出土文献的研究、保护与文化瑰宝的展示传承,并提供人文研究交流场所。
▲专家释读、整理清华简
项目的建设内容包括简牍博物馆和人文综合楼两大功能区域,将为珍贵的出土文献提供一处专业的保存、研究和教学展示场所,极大地支持了文物保护研究工作。人文综合楼的建设为人文学院提供学术研究与交流场所。本着集约用地的原则,清华大学提出该项目将简牍博物馆和人文综合楼合并,统一设计统一建设。
02项目概况
Project Profile
出土文献研究与保护中心大楼位于清华大学早期建筑保护区东侧文物保护四类建设控制地带,建筑限高为 18m。利用人文社科图书馆南侧的原教材中心拆旧建新,用地中部平坦,整个地块东高西低,西侧道路比内庭院低 3.5m。
▲用地周边关系分析
地块中心距离北院旧址 1340m,距老图书馆 988m,距新图书馆 1702m,距大礼堂 1325m,距清华学堂 1073m,距工字厅 1830m。
▲项目与重要建筑的距离
项目由简牍博物馆和人文综合楼两大部门组成,地上 5 层,地下 3 层,标准层层高 3.5 米,以科研、教学办公为主要功能,并配置文物库房、实验修复室、科普陈列展示厅等综合设施。
03 设计理念 DesignConcept
为尊重现状建筑与地形,本案设计为东西长向微折的矩形,西部端头向南转 8°。外立面选用模数化的竖向浅米黄色石板,辅以仿木纹金属板和玻璃幕墙,在追求反映项目功能特色的现代建筑风格的同时,从颜色和质感上体现了校园建筑的文化气质。建筑内设中庭和内天井,将自然光引入内区,同时丰富了建筑内部的空间层次。首层轮廓的缩进和过街楼的设置,为校园师生提供了更多的共享空间,让身处院内的人不觉得过于挤迫。
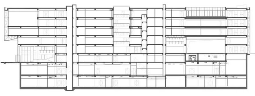
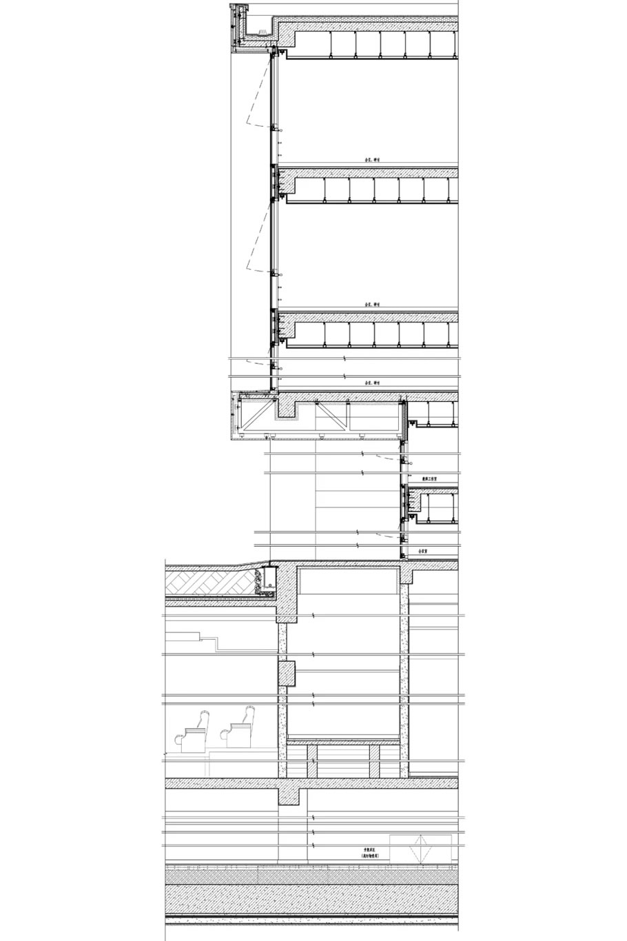
04 项目图纸 Drawings
▲总平面图
▲一层平面图
▲三层平面图
▲南立面图
▲ 侧立面图
▲剖面图
▲墙身大样
客服
消息
收藏
下载
最近

























