查看完整案例


收藏

下载
丹阳被誉为中国眼镜之都,镜架产量1亿多副,约占全国的三分之一;镜片产量4亿多副,约占全国的75%、世界的40%左右。作为诞生于此的网红品牌,青山良镜超越了传统的运营理念,将眼镜、设计与时尚生活结合起来,赋予眼镜更多的人文含义。
改造前现状图
该项目位于丹阳市车站路与中山路交叉路口,北临丹阳城站,西临丹阳国际眼镜城,面对城市转盘路,拥有极佳的昭示界面和步行可达的优越位置。
原有建筑为工商银行旧址,我们的设计策略是打开原有建筑边界,使内部环境与城市空间产生互动与对话,使室内成为城市公共空间的延伸。眼镜店不再是售卖的场所,内部结合景窗和前台设置了咖啡吧,赋予了空间交流与体验的生活功能,以及人们观赏城市的另一个角度。
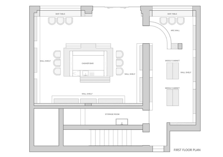
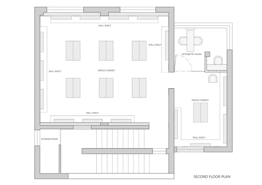
我们用尽量少的材料来还原空间本身的面貌,并使空间之间产生暗示和联系。内部空间陈设打破常规眼镜店的刻板布局,将休闲吧台与展示功能融合一体。在一层核心区域布置的中央吧台兼具收银与服务功能。而在两侧的落地窗设置吧台,为顾客提供了更加舒适的休闲区域。一楼走廊的弧墙展架,将人们引入下一个空间。二层空间的功能包括验光配镜室以及休息等候区,相对一层的产品更具有针对性,为顾客提供更多的选择与服务。
整个两层由发光的玻璃体包裹,光与极简的形体塑造了极富识别性的城市地标,纯净的“光之盒”作为眼镜之都的新名片给城市带来新的活力和生机。
项目图纸:
首层平面图
二层平面图
项目信息:
地址:江苏省丹阳市
主持设计师:南旭
设计团队:谭钟瀚、王晓敏
摄影:钱敏
面积:200平方米
项目年份:2019年
建筑材料:玻璃、铝板、木饰面、防火板、地砖
客服
消息
收藏
下载
最近
























