查看完整案例


收藏

下载
案例简介
Case description
设计说明:项目为街边一楼的美容美发综合店。本案设计概念自后疫情时代的机会与挑战思考。以“中国红”为元素引线,通过描述现实与精神的潜在关联,试图展现艺术及趣味非凡的当下华流精神思考,匹配未来的商业模型!由于疫情当下,整体预算投入偏低,设计空间时以中国红来突出。空间的兴趣也不仅仅是室内,用抽象的语言去体现,平面布局讲究对称性,左边烫染区,右手边收银台位置。剪发大厅以中间柱子为中轴线分开两边剪发。打造回字型动线的宽敞剪发大厅+开放式楼梯。用建筑的思维去做空间,为了最大化利用空间,在一楼搭建钢结构位置满足空间使用。链接空间的开放式红色楼梯就是空间的雕塑,也是我们常说的网红楼梯!以上下楼梯把空间区域整体划分!空间以纯粹的中国红+白色,方、圆符号结合,干净利落的线条,没有多余的装饰,简单纯粹的空间语言却承载着世间万物。空间在创造完美,也就是创造最美的效益。
项目信息
项目名称:初熙美容美发综合店
项目地址:广东省东莞市寮步镇香市路82号
项目类型:美容美发综合店
项目面积:600㎡
设计时间 : 2022.04
施工完成:2022.06
风格:中国红+现代简约
主要材料 : 钢化白玻、微水泥瓷砖、艺术涂料、不锈钢烤漆
设计师:宁亮亮
“如果奇迹有颜色,那一定是中国红!”
塞萨尔•佩利曾说:“我将建筑视为城市的一部分,在设计中,我试图使它们成为负责任和有贡献的存在。”
中国红,热情,充满活力
寓意破旧迎新、憧憬美好
初熙美容沙龙位于东莞香市路,以美发、美容、养生为主要经营项目。初熙的团队是一群年轻的90后,他们思维活跃,乐于尝试新鲜事物,并热衷于追求个性审美与潮流时尚。正因如此,整个空间的设计表达中充斥着:大胆热烈、不受拘束,向大众呈现出开放多元、活力向上的品牌印象。空间选用热烈奔放、充满活力的”中国红”作为背景基调,契合当下”中国风”的流行趋势,局部定制达成独特性,融入潮流元素推动空间表达。项目呈现中,通过描述现实与精神的潜在关联,展现出艺术及趣味非凡的当下华流精神思考,并与未来的商业模型相匹配,充分满足品牌的发展需求。
1
红色楼梯
艺术雕塑
颠覆传统美业品牌门店的设计,将一层大厅塑造成既专业又极具美学的场域。运用建筑的思维分析空间,挑空设计的一层空间,拥有通透开阔的视野。流畅的回字型动线,释放出更多活动空间。
以对称性布局手法,将明确的功能体量植入在场地内部,划分出等候区、收银区、剪发区、烫染区等,每个分区变得可读,让初次进入的使用者也不至于不知所措。利用镜面玻璃,既能从视觉上拉升空间,同时也能反映出空间的松弛变化。线与面相互配合,直观表达出空间的逻辑与理性。
静立于大厅中央的红色美学楼梯,贯通上下层空间,结合红色红色长椭圆吊灯,恰到好处的与空间主色相呼应。设计师提取出城市元素,以“Hello 东莞 ”视觉标识装饰于楼梯上,并植入潮流IP积木熊,打造为门店打卡区。
▲“Hello 东莞 ”发光字让人眼前一亮
▲3.6米长椭圆形定制吊灯与空间相呼应
2
空间延展
矛盾效应
空间情绪拾级而上,起承转折中连接着一层与三层。布设在二层的头疗服务区,以暗色调为基底,视野随着光线轨迹发生变化:从暗到明、流动到凝固;悄无声息中唤醒消费者的感官知觉。置身于其中,享受远离喧嚣的静谧时光!
空间中的每一件物件都经过了深思熟虑,如从天而降的水龙头,加上呼吸变色的小吊灯,无一不在凸显时尚与个性。物件在空间表达中最大程度释放出张力,艺术氛围徐徐展开,散发出独特的美感。
3
不忘初心
回归自然
三层的门店,每一层都有着各自的标签,随着楼层的变化更换场景,增加体验感。一楼是个性的充分释放,二层是空间的无限延伸,到了三层的美容区,采用质朴的材料与柔和的立面,传递自然充沛的能量,为消费者开启宁静的疗愈之旅。
美容区在满足必要功能的前提下,尽可能实现感官上的延续。放慢的节奏中,释放、解锁、面对,感知在自然与哲学之外,来自慢速仪式的力量。
▲店面外立面
收银台加水吧台用统一材质设计对称,右边收银台加水吧台接着就是客户休息区,这样在功能和视角上又是一种对称。剪发大厅以中间柱子为中轴线分开两边剪发。把整块玻璃内部放烫染区。让每一个路过的行人都会看到剪发镜台展示面。
虽然我们的一楼层高很高,空间相对也比较宽敞。只要在烫染区坐几位顾客就不会显得店面空荡荡。只要顾客烫染就是一番忙忙碌碌的场景!玻璃的展示面效果就很突出了。
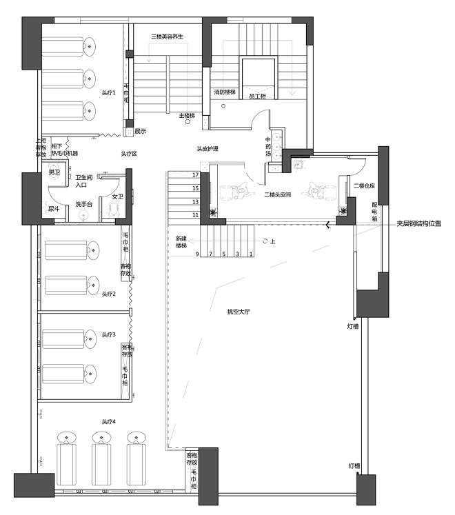
▲项目平面图
▲美发大厅效果图
▲楼梯效果图
▲美发大厅效果图
▲设计师、材料商与初熙团队合影
在此特别鸣谢:东莞力光广告•文龙和东莞寮步百特陶瓷•张伟丽的大力支持!
本案属于业主自装,没有请装修公司。自己买材料自己叫工人来施工,这样有效合理的控制整体造价。过程中设计师、材料商全力配合,完成最终落地效果!
项目信息
项目名称:东莞初熙美容美发综合店
项目地址:广东省东莞市寮步镇香市路82号
项目类型:美容美发综合店
项目面积:600㎡
设计时间 : 2022.04
施工完成:2022.06
风格:中国红+现代简约
主要材料 :钢化白玻、微水泥瓷砖、艺术涂料、不锈钢烤漆
材料商:力光广告、百特陶瓷
摄影:景行视觉
文案:大柒
效果图:韦刘涛
设计师:宁亮亮
宁工设计工作室以打造 “人文 创意 ”的设计为愿景,致力于让设计更有价值,让空间更有内涵。常年行走北上广深,商业空间设计十年以上,涵盖各地区人文理念,并在了解不同地域文化的同时,挖掘其自身的价值,呈现更加有深度的作品;或以注入新的灵魂,重塑定义,使之更为新颖,我们尊重传统,同时也颠覆传统。以客为先,以人为本,坚持设计就是生产力,努力提升空间的品质,推进社会文化的发展。
近两年所获奖项:
荣获2020 GoldenCrown金戴国际设计奖 C 环境空间类(专业组)金奖
荣获G+AWARDS全球设计精英大赛-中国(城市)TOP10
EuroShop中国零售设计奖全国TOP30
40 under 40 中国杰出青年设计奖
荣获第16届金外滩奖“最佳商业空间奖”类别-优秀奖
荣获2021第九届ID+G金创意国际空间设计大奖 :商业展示空间-银奖
2021潮设计空间TOP100
2021芒果奖中国商业优胜奖
2021立邦“未来之星”青年设计师大赛-商业组TOP30
2021“设计中国”入选中国100大评选团成员
CIDF第十七届华鼎奖:中国室内设计杰出青年设计师作品奖
第十届筑巢奖:商业空间-商铺 优秀奖,参赛作品在【人民日报-人民号】进行推广
客服
消息
收藏
下载
最近

































