查看完整案例


收藏

下载
天等路 400 号凌云里改造项目中,阿科米星与向声葵听觉空间设计工作室携手设计了一个声音空间,这是继 2014 年新天地临时读书空间,以及阿科米星现今工作室的声音空间实验之后,首次在永久空间里尝试声音设计对于空间体验的作用。同时这也是一个局部空间设计工作。
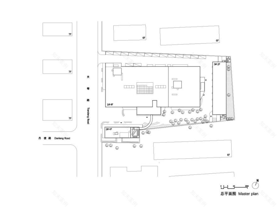
凌云里,原是一组由 3 栋被改造利用的小型工业厂房组成的园区。改造前这里有办公、课外教育、健身馆、游泳馆、小超市、快捷酒店等。3 栋楼宇,一大两小,大楼(即一号楼)4 层总建筑面积约 7000 平方米,为厂房类格局,柱网规则,空间整齐,首层接近 9 米高,其他层层高约 5 米。其余两栋为正常层高的配楼。
园区鸟瞰 ©陈平楠、张朦
凌云里总平面图
本次设计改造的目的,一方面是使它成为适用的办公空间,另一方面是作为城市更新的示范,为周围缺乏公共场所的社区提供有质量的社区文化商业服务空间,促进社区生活便利并提升社区活力。改造后的这组建筑,根据三栋楼不同的空间结构基础,分别设计为独栋、庭院办公、综合楼等不同类型的空间。整体处理简明,主楼内外通透,在首层形成了小尺度、有密度、可穿流的开放式商业与服务的业态聚落,以期在不大的地方创造友好、便利、具有容纳性的面向内部与外部社区居民的城市精细化空间。
从城市街道看向凌云里
一号楼西立面
广场入口处
新增连桥
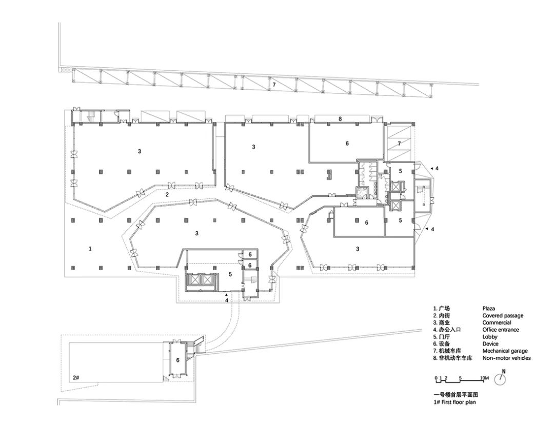
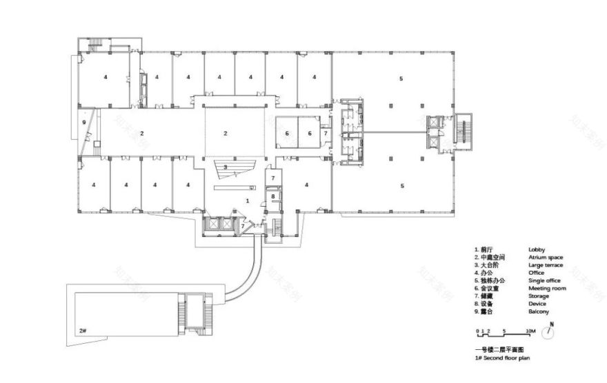
一号楼首层平面、二层平面
声音空间是在主楼中一个特别类型的空间基础上进行设计的。我们将二层公共交通空间的局部进行放大,形成了一处崭新的公共空间,它既为办公楼本身提供公共活动,同时还是一处具有独立交通系统的空间。我们希望打破办公空间中自我封闭的系统,引入与外部的能量交互,以形成未来的空间活力。因此,这个公共空间对外有专门的交通流线,由户外钢结构楼梯——曲线架空廊桥——大中庭空间这个序列完成。为了增强该空间的公共氛围,将其改造成三层通高,顶部拥有自然天光;另一方面为了适应不同需要,提供不同场景,形成专门与独立的氛围,中庭空间除了中央的通高空间外,还包括呈 L 型两翼的宽敞开放空间,以及通往三层的台阶式空间。在中央的通高空间后侧,藏有十数扇移动屏门,通过移动可形成不同的空间布局,有独立的如教堂般的纯净空间,有讲坛、展览、发布会活动空间等等,这些空间模式都能独立成区,与办公空间、交通空间柔性隔离开来。
轴测分析图
模型
不同状态下的中庭空间
中庭空间
中庭空间—大台阶
具有精神性的中庭空间
中庭空间-顶部天窗
中庭空间-多义空间的使用
中庭空间-使用模式
把声音和听觉引入整体设计是因为我们发现了其价值与潜能。声音具有再建一个空间场景的能力,相较于视觉,其成本更低,使用者在场景中的活动性更强。以空间场景为设计思路,我们为二层空间设计了三个不同的声音空间场景:分别是荒岛、丛林观察站、城市雨夜。人可以在空间中自由移动,会感受到声音和人是镶嵌在一起的。并没有所谓的最佳聆听位置,在各个声音场景中人在不同的位置听到的内容是不一样的。通过人的移动与所听到的声音的关系变化获得空间感。
我们希望人在这个系统中不是静态的、被动的,而是动态的、主动的,继而重新思考人、声音与空间的关系与可能性。
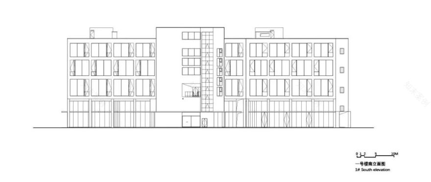
一号楼南立面图
一号楼
1-1 剖面图
一号楼 2-2 剖面图
天等路凌云里装饰工程
类型:建筑更新
地点:上海市徐汇区天等路 400 号
设计/建成:2019/5—2021/5
占地面积:5798 平方米
建筑面积:11,252 平方米
业主:品域中国
建筑师:阿科米星建筑设计事务所/庄慎、任皓、唐煜、朱捷
建筑团队:庄慎、朱捷、黎家泓、邱梅、王子潇、马子舒、游诗雨、叶阳、韩宜臻(实习)、郭根英(实习)
合作设计:向声葵听觉空间设计工作室/殷漪、庄慎、唐煜
结构机电:上海建筑设计研究院有限公司
景观设计:Agence TER
幕墙顾问:上海熙玛工程顾问有限公司
幕墙施工:上海玻机智能幕墙股份有限公司
室内施工:上海富强建筑装饰有限公司
总体施工:百世建设(集团)有限公司
标识设计:那行文化
摄影:田方方
相关案例回顾:新天地临时读书空间
客服
消息
收藏
下载
最近


























