查看完整案例


收藏

下载
塞尚并没有真正去画苹果,他画的是这些圆形上的空间的重量。
Cezanne did not really draw apples.
He drew the weight of the space on these circles.
巴勃罗·毕加索
/
Pablo Picasso
△展示区实景
1
—
概况
GENERAL
△鸟瞰图
△彩色总图
△展示区鸟瞰实景
西安的历史人文积淀极为深厚,历史上多个繁荣朝代在此建都,从而令西安见证了中国历史上开放、繁荣的顶峰时期,并且留下了巨量的遗存。
天朗·云熙择址西安“北跨”中轴的 c 位,落址于泾河之上。以审慎的步伐和理智语境,秉持严苛造物的执念,极物之美。
2—示范区
EXHIBITION AREA
布拉克和毕加索能够克服物体作为个体的单一性而将其转化为一个整体的视觉对象。如果我想同时向你展示背面和正面,内部和外部,我可以分割对象来实现。-Dr.Beth Harris and Dr.Steven Zucker
<葡萄牙人> 布拉克,1911
立体 叠合
CUBISM SUPERPOSITION
△空间生成
连续环绕的水平线建立了基本属于浅景深的空间,高度交织的倾斜网格前后交叠,贯通水平线建立了由浅入深的空间。
观察者必须通过慢慢感受,才能逐步查知空间的深度,进而使主题获得具体形态,并慢慢显现出来。
△展示区实景
△空间图解
平行透视的大挑板,所有元素似乎处于平行的空间中。内嵌多角度的斜面上下贯通高度交织,引导观测者的视点,表达多个视点下交错的多空间同时出现的时空关系,同时多视点的复合使得建筑确定的形体被多义地重新表达。
△展示区实景
维度
DIMENSIONALITY
立体主义绘画深层结构策略
△展示区实景
△
入口水景
△观景楼梯
△透过洞口看向天空
水平空间下,水平线,前后的斜面,线条叠合在一起。被打断,又存在视觉上的联系。形状大都有着确切的轮廓,但是它们组合在一起却形成了一个多层次的空间关系上的变幻莫测。
△观景楼梯
楼梯和路径将各个空间串联起来,空间交叠形成模棱两可的状态,进而促使人们产生不断游览的乐趣。
△室内实景
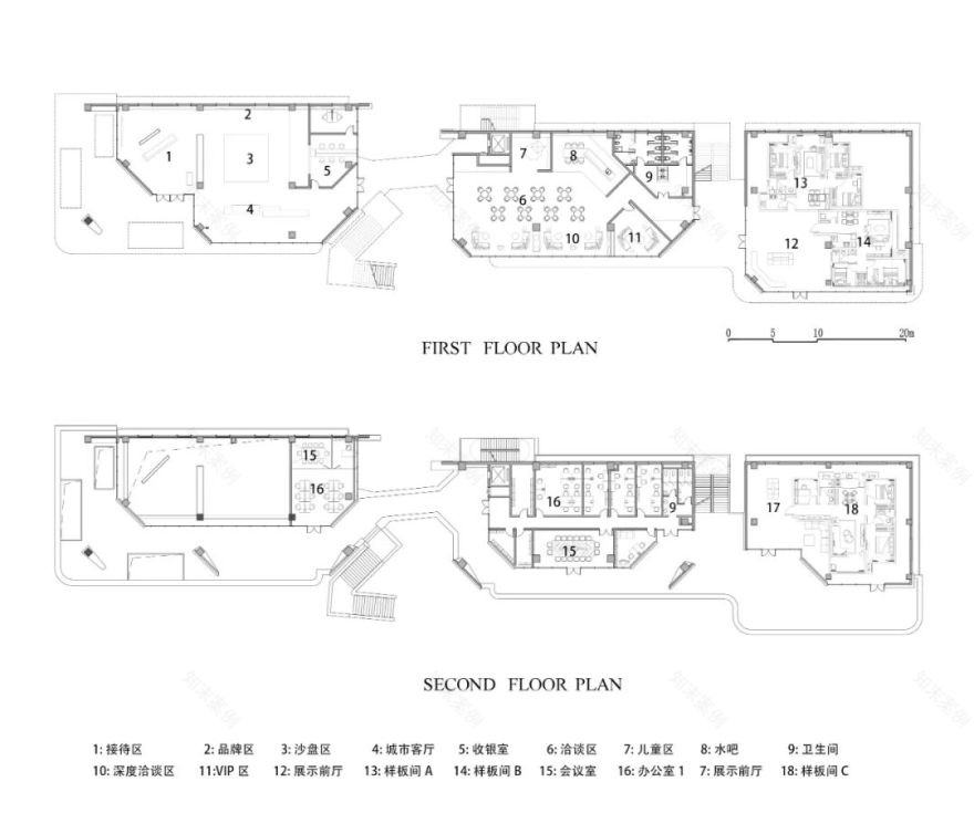
图纸
DRAWING
△
材料
△墙身大样
△斜面
3
—
大区
MAIN PART
△洋房效果图
△高层效果图
△入口大门效果图
工程档案
项目名称 | 天朗·云熙
项目地址 | 西安 陕西
项目面积 | 地上约 33 万方
竣工时间 | 2021.8
业主单位 | 天朗地产集团
业主管控团队 | 天朗地产集团-西安开发公司-设计部
建筑设计 | BENJAI 彬占 事业四部
室内设计 |BENJAI 彬占 事业三部
施工图设计 | 基准方中
幕墙设计 | 陕西康赢节能科技有限公司
景观设计 | HWA DESIGN GROUP
建筑摄影 | 路径建筑摄影
客服
消息
收藏
下载
最近



































