查看完整案例


收藏

下载
正的艺术家都更倾向于被线条、色彩以及它们之间的关系激发灵感,而不是画面描绘的物体本身。—Piet Cornelies Mondrian/蒙德里安 初现
现代东方精工+人文情怀景致
■
示范区实景图
格局
思考:如何在都市快节奏生活下,诠释东方文化和人文居所?
项目基地位于江苏省盐城市盐枕路北,厚德路东侧,基地地势平坦,竖向高差较小。周围配套完善,资源丰富。周边地块有多个建成住宅小区及商业配套,生活氛围浓厚。
地块东侧紧邻待建城市绿地,地理属性以及 2.2 的容积率让地块在空间维度上映刻了隐逸低调的属性。
充分利用基地东侧的城市绿地和景观河道。同时在小区内部通过重点节点打造,公共绿地,邻里中心的叠加,让整体社区有大隐于市的田园生活场景。
■鸟瞰图
■ 滨河效果图
■
景观总平面图
■
产品分区示意图
示范区
数是各类艺术最终的抽象表现。音乐通过乐符号表达旋律。建筑通过几何元素来表达其抽象概念,点、线、面等形状和谐的交织在一起,形成一种建筑的结构旋律。
■ 示范区效果图
■ 示范区实景图
发掘材料的本性。木纹温润,层层叠叠,清朗质朴之美;石材厚重原始,或横或竖的漂浮,反重力的建造之美;金属铝板细腻精致,细节的收边,工艺之美。
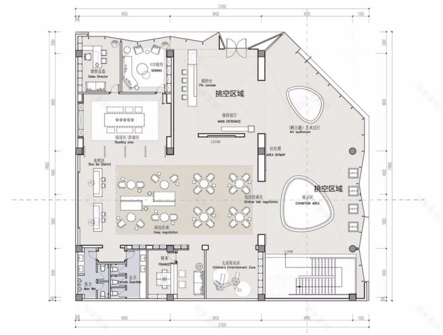
■ 示范区
首层平面图
大区
■联排报建效果图
■ 叠拼报建效果图
工程档案
项目名称 | 盐城弘扬观棠府
项目地址| 盐城市盐枕路北,厚德路东侧
业主单位| 江苏通港弘置业有限公司
甲方管控团队| 弘阳地产设计管理部
建筑设计 | BENJAI 彬占
项目面积 | 203998.8 平方米
竣工时间|2020.2
建筑设计| BENJAI 彬占
公司合伙人 |乔雪松 李想
合作单位:
施工图设计 | 盐城市建筑设计研究院有限公司
幕墙设计|上海一涵幕墙建筑装饰工程有限公司
景观设计| 深圳源创易景观设计股份有限公司
室内设计| 深圳尚石设计有限公司
建筑摄影| 邱日培
公司地址|上海市长宁区天山 SOHO T2-10F
客服
消息
收藏
下载
最近






















