查看完整案例


收藏

下载
设计与生活一样,是一场境遇,看似平淡,却绘声绘色。
—
案例信息
Case information
楼盘名称:碧桂园·泊云间
项目户型:叠墅
项目面积:280㎡
设计风格:现代轻奢
设计出品:诚筑馨家·南京
设计灵感
/
Design Inspiration
本案简约设计的肌理下,是有机、有序、发散的组织和拓展,对空间深刻的表达,不仅是装饰语言的罗陈,更是结构开合之间的力量,表现了多变的空间关系和丰富的生活视角。光影律动的美感,呈现出纯粹自然的气质,营造了洗尽铅华回归本质的设计境界,让人对平和的日常有了下意识的憧憬。
多功能区
/
Multifunctional Area
从楼上下来到客厅,途径的这一块区域可以作为一个多功能区,既是门厅,也是玄关,柜中放的书籍与玩偶又可以作为小朋友的娱乐区。与客厅隔而不断,恰到好处,高度合适又舒适,光线充足又满足,共同融为自由又随意的室内空间。客厅 / Living Room
房子的客厅在地下二层,这真是一个很奇妙的位置。客厅摒弃零碎的装饰,大面积的运用木质、大理石等材质,将高级感拉满!利用空间差,将电视背景墙的高度与负一层进紧密联系,大理石墙面与大幅壁画,硬朗之中不乏柔美,浪漫缓缓流动。
书房 / Study
负一层的主题就是“沉浸”。加长书桌加上落地书柜,营造沉浸式的读书一角。书房选用了木纹地板,显得轻松温馨又不拘谨。书房里敞开的窗户,迎来的是清爽的微风和天然的光线。旁边的摆放的钢琴,文艺与知识的融合与碰撞,好一副岁月静好。
餐厅
/
Restaurant
整个一楼的主题是“团聚”。不论是朋友间的聚会,亦或是即停的聚餐,无不是一种面对面的欢愉。
送走了外部的喧嚣,就餐时刻的佳肴摆放在餐桌上,圆形台面足够宽敞,极简设计显得小众又高级,在金属架的吊灯的映照下,把一日三餐的氛围烘托得刚刚好。
厨房
/
Kitchen
生活的质量还得看厨房的格调。里侧是中厨区,外侧是西厨区,泾渭分明又一气呵成,让整个就餐区显得更加干净。功能划分明确,整体素雅、高级、有质感。
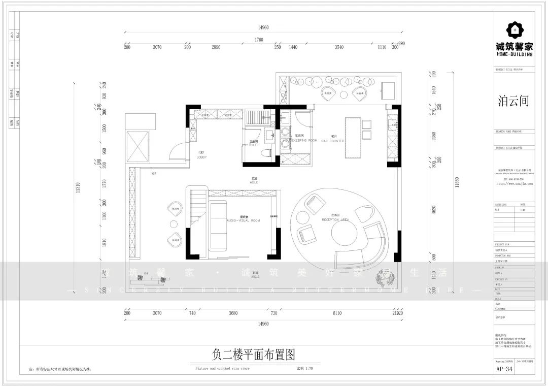
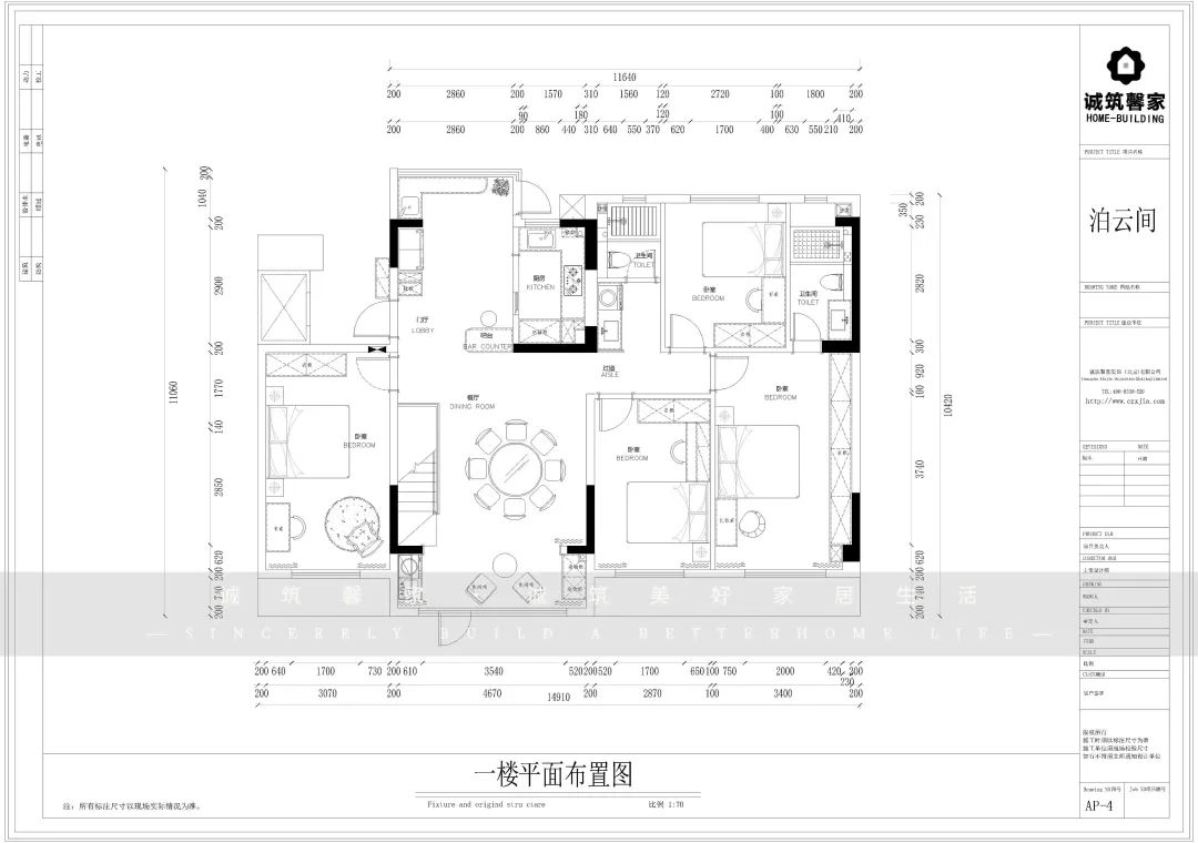
平面图
Floor Plan
【负二楼平面布置图】
【负一楼平面布置图】
【一楼平面布置图】
主创设计师
Chief Designer
END
重设计,注品质!
为您诚筑美好馨家!
客服
消息
收藏
下载
最近

















