查看完整案例


收藏

下载
艺术和浪漫从不缺席,
简约和优雅始终弥漫在其间,
这就是家的内涵意义。
案例信息
CASE INFORMATION
━
楼盘名称:龙聚山庄
项目户型:独栋别墅
项目面积:490㎡
设计风格:现代简约
设计出品:诚筑馨家·北京
//
设计灵感
DESIGN INSPIRATION
本案是一个独栋别墅,
男女主人和他们的孩子一起生活。
简单、静谧,充满一点温馨的浪漫气息
便是业主想要的空间氛围。
客厅 の 茶室
Living Room の Tea Room
客厅与餐厅相连,使得空间整体化,让两个空间有联动性。
空间整体极尽克制,纯粹细腻的素白色系铺满整个空间,以高级灰地砖全铺,营造出满满的现代气质。开阔的视觉体验,午后的阳光透过窗帘,定格每一秒的温馨浪漫,延绵出雅致。
餐厅
Restaurant
餐厅的规划整体定位端庄大体,同时又有温馨的感觉,在空间上与客厅的气质保持一致。
简单的色调,明净的自然光,辅以洗练的线条和细腻的陈设,这是极简而不失格调的生活美学,不管是自己使用还是招待客人,都能给人一种归属感。
厨房
The kitchen
厨房区域分别有:吧台、西厨、中厨,形成了一个功能强大的餐厨区域,实用性和艺术性满满。
橱柜采用烤漆板材,十分耐看,吊柜用一部分跳色,与橱柜颜色结合产生对比,增加了视觉效果。
卧室
Master Bedroom
卧室采用明暗对比较为强烈的墙板做装饰,增加空间的层次感,设计以简约淡然为主题,最大限度提升居者使用的舒适度,超大落地窗带来丰富的吧透光面积,自然的光与景亦成为室内的一部分。
衣帽间
Cloakroom
衣帽间存在的最根本的意义就是收纳衣物,现代又有点轻奢的感觉,划分好了挂衣区、叠放区、鞋包区等不同区域,让衣帽间繁而不乱,井井有条。
儿童区
Children's Zone
儿童区给予大空间灵活可移动性,根据孩子的年龄变化作出不同改变,承担起书房及娱乐室两大功能,可以满足不同年龄段的生活需求,见证弥足珍贵的童年时光。
休息室
New Arrival
开阔的地下空间整体打通,根据客户的喜好来构建地下空间的功能区,满足会客、健身、娱乐等多重需求,别墅生活的丰富性自此全面展开。
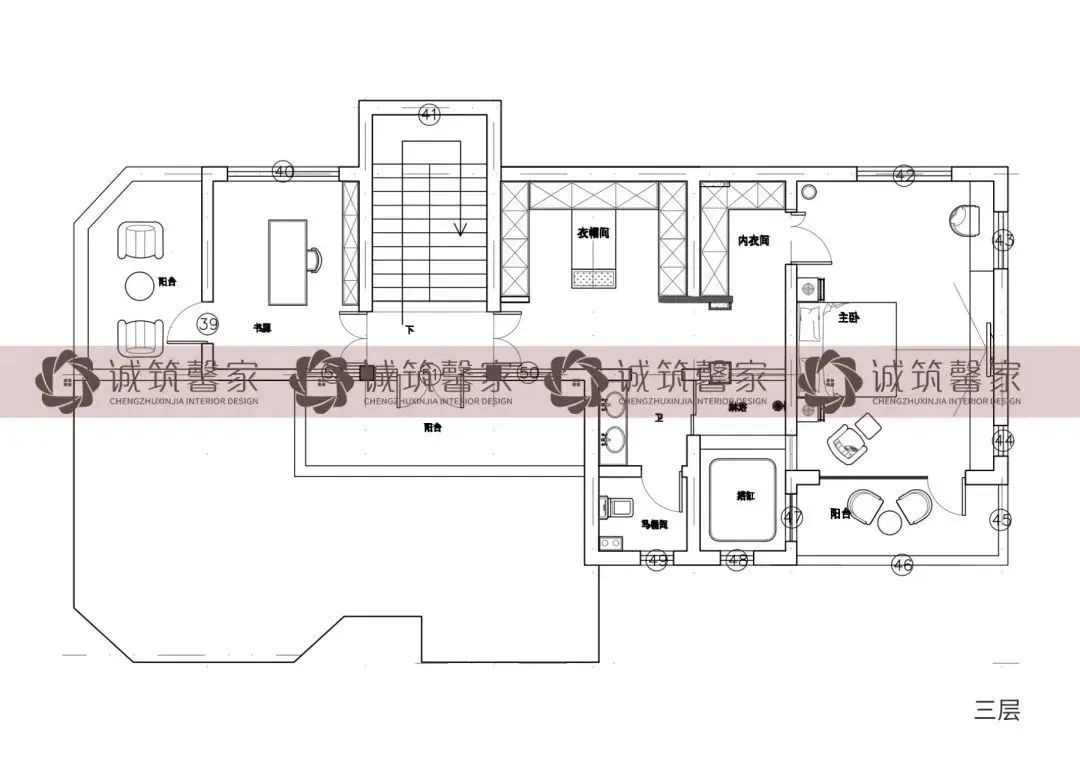
| 本案平面图 |
Floor plan of the case
| 本案设计师 |
Floor plan of the case
【张葳】
客服
消息
收藏
下载
最近























