查看完整案例


收藏

下载
A good living space can give people a state of natural harmony and relaxation. No matter what style of space, it should be set up based on the owner’s life experience and living preferences. A private house is a "selfish" private customization.
好的居住空间是可以给人以自然和谐放松的状态,无论什样风格的空间都要基于屋主的生活阅历和居住喜好而设定使用场景的搭建,私宅就是“自私”化的私人定制。
011
|
Until
Project location / Beijing China
Category / Private residence
Area / 115㎡
Design team / Yili space design studio
Design time / 2021
Photograph / 方
Post production of pictuers / DD
岛台是厨房空间的延伸体,小酌时可以和客厅空间形成互动关系。
The island is an extension of the kitchen space, which can form an interactive relationship with the living room space when drinking.
每件家具我们都希望和空间形成互动,产生应该有的某种关联。
Every piece of furniture we hope to interact with the space and have a certain connection.
书架材质的选择上我们选择了不锈钢,希望它给空间带多维度的质感体验。
We chose stainless steel for the selection of bookshelf materials, hoping it will bring multi-dimensional texture experience to the space.
满足功能需求不一定要循规蹈矩,物体也不一定必须应该是什么样子和形状。
It is not necessary to follow the rules to meet the functional requirements, and the object does not have to be what it should look like and shape.
我们希望室外的光线可以肆无忌惮地撒入室内空间,让卧室空间充斥着室外景色的映射。
We hope that the outdoor light can be recklessly scattered into the indoor space, so that the bedroom space is filled with the mapping of outdoor scenery.
一个愉悦的空间、一种简单的生活、一方独享的天地,都在这里寻求最合适的表达。
∎
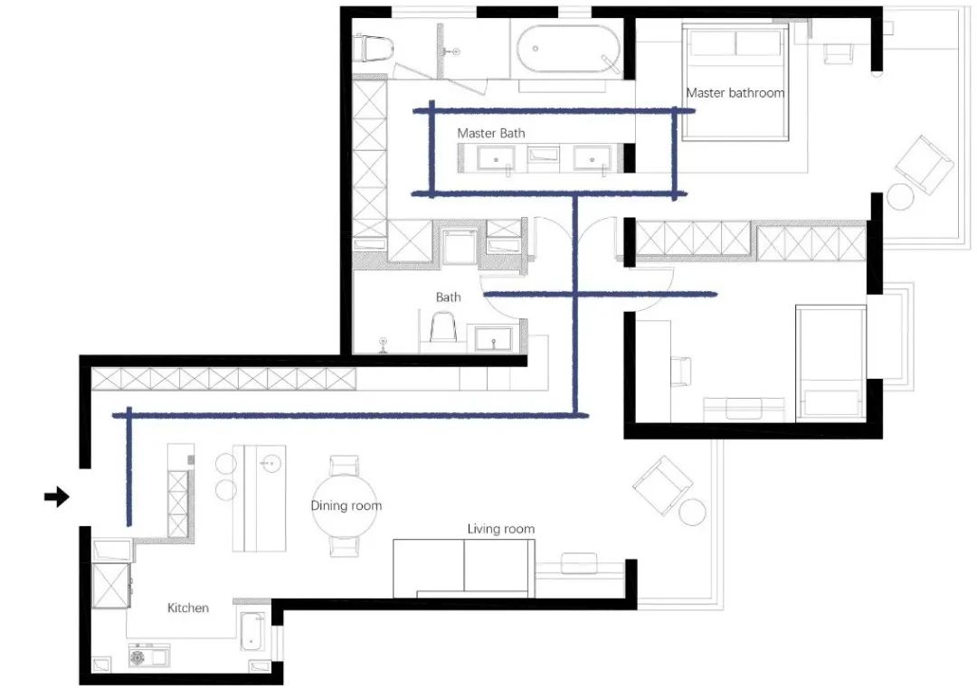
Layout planning
向左滑动查看原始户型
CREATE EVERYTHING FOR YOU 商业合作平台约稿简历投递 THANKS ░ 以里空间设计事务所
客服
消息
收藏
下载
最近

































