查看完整案例


收藏

下载
"
光
影琉璃间,却停落过我的身影。风雨兼程里,却有我驻足的小巧驿站,再微小的尘埃都可以流传千古。只有自己的心灵和直觉才知道你自己的真实想法,其他一切都是次要的”
Because the beauty is projected on such a simple and simple environment, the magic light can only appear in reality, and the so-called eternity can only be pursued in spiritual world.
02
| D
UST
Project location / Beijing China
Category
/
Private residence
Area
/
80㎡
Design team
/
Yili space design studio
Design time
/
2020
Photograph
/
方
Post production of pictuers
/
DD
厨房为每个人意义都是不同的,也许是身体回血,也许是思绪放空.
The kitchen has a different meaning for everyone, maybe it's the body returning blood, maybe it's the mind emptying.
当阳光可以洒满整个客厅时,可以放一首音乐,办公或是小歇.
When the sun can spread all over the living room, you can play a music, office or break.
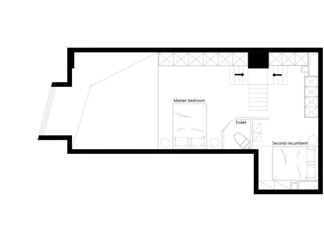
利用双向楼梯的形式把卧室和小储物区分离开,让空间多一些结构层次感.
Use the form of two-way stairs to separate the bedroom and small storage, so that the space has more sense of hierarchy.
"一个愉悦的空间、一种简单的生活、一方独享的天地,都在这里寻求最合适的表达"
A pleasant space, a
simple
life and a unique world are all seeking the most appropriate expression here.
∎
Layout planning
向左滑动查看户型
C R E A T E
E V E R Y T H I N G F O R
Y
O U
商业合作 平台约稿 简历投递
THANKS
░
以里空间设计事务所
客服
消息
收藏
下载
最近





















