查看完整案例


收藏

下载
一个来自LONDON的新锐设计师品牌,一个寓意“时代精神”的空间哲学术语,是该品牌概念店致力寻求的灵感源泉,用设计反馈当下,或者说用艺术语言表达出那些被称为纯粹的东西……
▲入口处
▲收银台
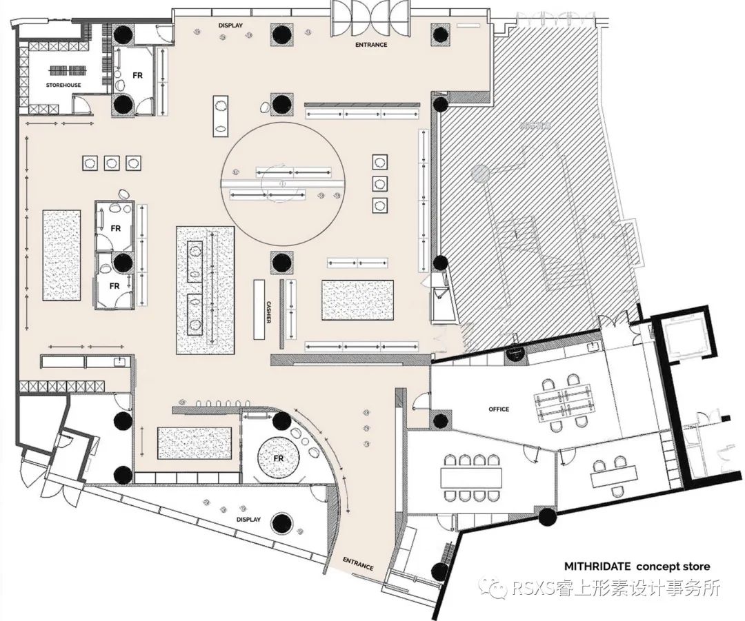
在这个600平方的空间里划分出销售空间与隐藏办公空间,空间分割巧妙却也简单纯粹,诺大的销售空间利用平面吊板分隔出迂回有趣的浏览动线,整体充满大气的几何线条感,冷调的大理石漆与进口树脂材料细节很好的呼应该高级定制品牌的独立先锋精神。
▲展示区
▲空间细节
▲平面图
项目信息——
项目名称:MITHRIDATE HAUTE COUTURE CONCEPT STORE
设计公司:睿上形素室内设计有限公司
项目地址:深圳
主设计师:JAYSON KU
项目面积:600㎡
摄影:JAYSON KU
Project information——
Project Name:MITHRIDATE HAUTE COUTURE CONCEPT STORE
Design Firm:RSXS design
Location:SHENZHEN, CHINA
Lead Designer:JAYSON KU
Area:600㎡
Photographer:JAYSON KU
更多请关注 | RSXS睿上形素设计事务所
+86 18620355706
jason424502
客服
消息
收藏
下载
最近



















