查看完整案例


收藏

下载
Nov. 2021
©GONG DESIGN
PHOTO/杜云峰
DESIGN/宫设设计工作室
现代且自然的空间环境
全新参与式的度假体验
不在未来
已至眼前
01Origin/来源
皇家集团于近期推出其旗下第三家婚礼会馆全新品牌:南京「皇家葳汀」· 意式轻奢婚礼会馆(江湾店)。
「皇家葳汀」效果图
今年春季,宫设承接了这座意式轻奢婚礼会馆的设计工作。宫设从全案角度出发,提供整套专业设计服务:
· 品牌策略(品牌定位,产品定位,区域市场差异性分析);
· 设计规划(建筑及景观规划,以及外立面、工装、婚礼设计);
· 项目执行可行性把控(提供整套施工图,进行施工监理)。
设计改造的总面积达 1.2 万 m²。
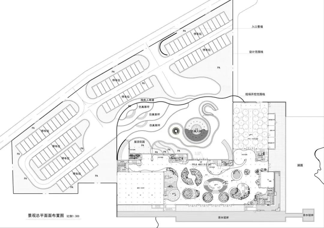
景观总平面布置图
历时 5 个月后,「皇家葳汀」江湾店如今已经顺利落成,将「城市中央的度假式宴会」理念发挥得淋漓尽致,让来宾拥有参与式的度假体验。
Brand/品牌
「皇家树」作为品牌符号,象征着品牌印象将如一颗树般,经历孕育,生长,最终硕果累累,诠释着品牌的企业愿景「助力幸福传承,做有情怀的宴会」,潜移默化地将品牌印象根植于消费者的心中。
效果图/实景图
03Design/设计
「外」。「皇家葳汀」会馆建筑采用复合空间设计。全曲面的白色建筑外立面,柔和,颇具灵动美。外立面的设计,通过错层结构将原本建筑进行遮挡,整合整体的调性,造形如翻开的书页,给庞大的建筑结构增添灵动。
效果图
实景图
「树」。矗立于会馆门口的大树,正是取义于「皇家树」的品牌符号。以此为切入点,宫设将这颗高达 12 米,直径 18 米,形如榕树的大树,设计于整个案场中央,贴近自然而又超脱优雅的形象引力十足,宾客可通过任意角度打卡,通过品牌符号的强化,实现品牌形象的融合纳入。
效果图
实景图「内」。室内的工装将室内花园渗透到会所的使用功能中,找到都市生活方式与自然环境之间的平衡。公共区域利用错层空间,将中央大堂设计为下沉空间;通过几个大型的「罩子」,将场地内的柱子包裹,并且划分作为功能区;而几个打卡点在现有的层高中,通过软膜灯箱模拟天光,模拟挑空空间,将空间无限扩大。
效果图
实景图
效果图
实景图
效果图
实景图
04Detail/细节
每一处曲线都是一种「用途」,也是一种「改变」。从内到外,由外及内,各种细节无一不是被设计的,在极致美学苛刻标准与交织的化学反应中,营造视觉舒适感。The devil is in the details.
实景图
项目名称:南京「皇家葳汀」· 意式轻奢婚礼会馆(江湾店)
项目地址:江苏省南京市建邺区江堤路
设计机构:宫设设计工作室
设计面积:1.2 万㎡
设计内容:景观设计、外立面设计、室内工装设计、宴会厅设计
项目周期:2021.4-10
项目摄影:杜云峰
往期精选 collection
宫设 DESIGN 新作 | 湖锦酒楼 · 国宴店湖锦艺术中心全面升级改造完成
宫设 DESIGN 新作 | 雕琢“卡蒂尔”,走进爱与梦想的殿堂
宫设 DESIGN 案例 | 2019-2021 婚礼商业空间设计集锦
客服
消息
收藏
下载
最近










































































