查看完整案例


收藏

下载
融创·吉雅达
东戴河,坐拥北中国稀贵的海岸线,广阔的森林氧吧,这里水清沙细,约26公里的原生海岸线,勾勒出一幅向海而居的美好。
图片源自网络
追溯
秦汉
文化之根,
东戴河
是中国最早的皇家海洋。2000年前,这里是帝王御用看海的地方,地处中国福文化发源地,靠山面海,风水俱佳。
图片源自网络
因为始终坚持“江河湖海、城市中心、稀缺资源”的择址原则,融创地产首筑东戴河,向着北中国稀贵的海岸线,执笔续写极富美好的度假之地——融创·吉雅达。
远离城市的喧嚣,只为诗意般的栖居在这片海岸之滨。
云-如云般轻柔飘下
海-如海般宁静开敞
树-如树荫遇见光影
呼应东戴河原生态优质
环境
,以雅心、自在、归心为主轴,打造现代滨海低调奢华的度假生活居所。
外部空间形态,平直的建筑形体和场地周边街道有平行关系,带来空间上的延伸,寓意着打破边界与自然相依。
步入室内,仿佛踏入云海之间,光影流转。
冰块雕塑感的接待台,静静的“漂浮”在入口处,白色光滑的地面映射出倒影,泛起涟漪。
壁柱面材质特意选用珊瑚米黄,营造如海中珊瑚石类的淡雅肌理,以9扇墙体营造序列感,赋予光线进入呈现特殊角度的光影。
每朵云都镶着一条银边
Every cloud
has a silver lining
翘首而望便是端景户外景观中的云块雕塑,安静的漂浮在台座上,与沙盘区上方飘下的一朵云,形成了空间上的呼应,灵感上的交融。
效果图
行云流水般的线条勾勒出的云的轮廓。包裹着中央的云朵,举重若轻的画面颠覆着感官。云朵下方便是沙盘区,犹如一座发光的浮岛,漂浮在海平面上,那就是人们心中向往的城市之光。
洽谈区的整体色调以白、蓝为主,营造轻松、愉悦的交谈时刻。吧台区的水墨画背景墙再次点睛了怡然自得的韵味,彰显不凡的品味。
洽谈区端点的旋转楼梯成为视觉的焦点,引人跃往二层的VIP区。
通透宽敞的开放式空间,一侧的落地玻璃可眺望远处的美好海景,温暖的木质墙面搭配地光晕染使整个空间洋溢着归心的温暖。
慢慢踱
步中,欣赏墙面上的艺术画作,由繁入简,寻回简单纯粹的愉悦感。绿色松柏景致之下,享受片刻的宁静。
窗外的那片云海即是满足滨海而居的所有幻想。
让每个欢乐与惬意的瞬间都被暖心记录在此刻。
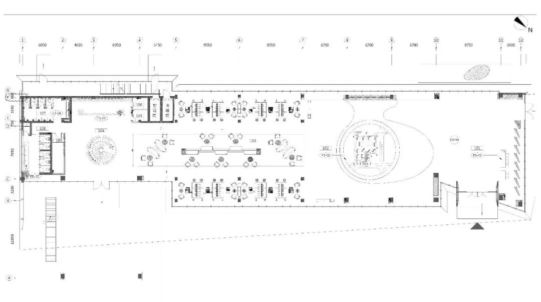
1F平
面图
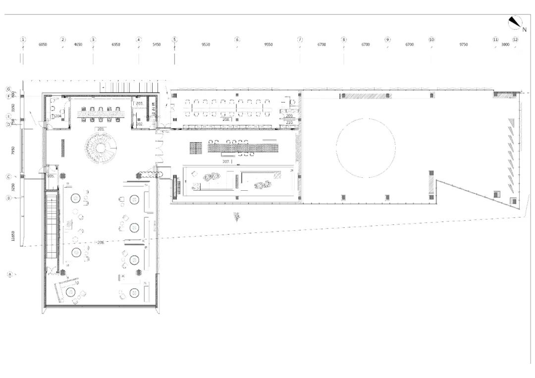
2F平
面图
项目名称 |
融创吉雅达售楼处
项目地点 |
辽宁
项目面积 |
2117㎡
甲方单位 |
融创集团
硬装设计 |
(台北)森之国际设计事业有限公司
软装陈列 |
上海景远室内设计有限公司
完工时间 |
2020年7月
项目摄影 |
郑焰
客服
消息
收藏
下载
最近


























