查看完整案例


收藏

下载
居住空间的状态,是体现人们生活痕迹与日常美学最直接的空间样貌,艺术源于生活,生活也是艺术的一部分,万物由「点」起源,点的移动轨迹形成「线」,定点与动态轨迹的并存让空间拥有安定的「静」与时间的「动」,二者和谐配置达到空间的平衡。
01.温度
在现代住宅里,朴质、温润是居所最为重要的趋势,是感受家的温度首要印象,朴实的白橡木在适当的光线调合之下呈现有质感的暖木温度,驱逐现代感普遍的冷感,让踏进家的第一步就能感受到温暖。 02.「点」的连结
家庭活动共享空间,客厅与书房以开放式的连结增加家人间的相处,也让空间更流通宽敞,单一聚点容纳更大的使用,在小坪数住宅里展现最大的空间体感及生活上的弹性。
住宅的细节展现生活质感,客厅端景是开放阅读空间的底墙,舍弃沉重的书柜,将端景墙作为一个展示画面,陈列的硬件由规则排列的点架构,金属杆件增加延续性,软装球体高低点缀于书籍中,使之与陈列架有共鸣,构成一幅跳动的画面。 03.「线」的律动
线条赋予空间生命,客厅软装运用幻影蓝的深邃与精装空间的宁静搭配,地毯线条转化水波涟漪,如脚下踏着一滩沁凉的湖水,波纹的律动及幻影蓝的组合让空间更生动。
04.用「泛光」晕染空间
主卧延续整个住家的白橡木温度,并以湖水绿及暖白色点缀空间,带出自然的氛围、放松的质感,衣柜作为更衣及睡眠的空间区隔,冰柱玻璃让光线若隐若现,弱化量体、降低柜体的压迫感,窗边榻延续整个开窗面,在窗景的框套中将视觉极大延展。 每间卧室都以泛光打造更放松的温度感,衬托墙面壁纸的质感、打亮暖木的触感,改变一个小方盒房间的封闭感。
-长辈房
-小孩房
-阳台 美好的居住让空间更纯粹,让空间散发温度,让人喜欢回家。
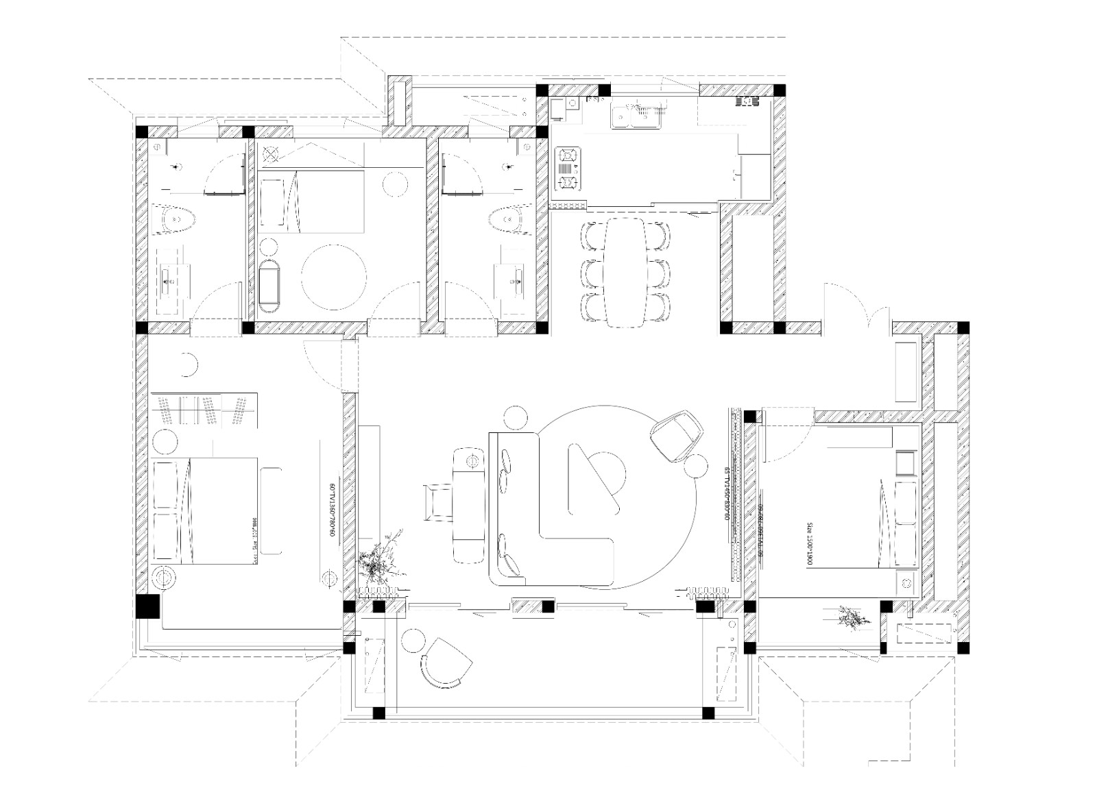
- 平面規劃 项目名称:中原融创文旅城样板间 项目地点:郑州 项目面积:130M² 甲方单位:河南融首新越文旅开发有限公司 硬装设计:森之国际设计事业有限公司 软装设计:上海景远室内设计有限公司 完工时间:2020/07 项目摄影:王律
客服
消息
收藏
下载
最近





















