查看完整案例


收藏

下载
The Renovation of a Three-story Terraced House, Shanghai
The Renovation of a Three-story Terraced House
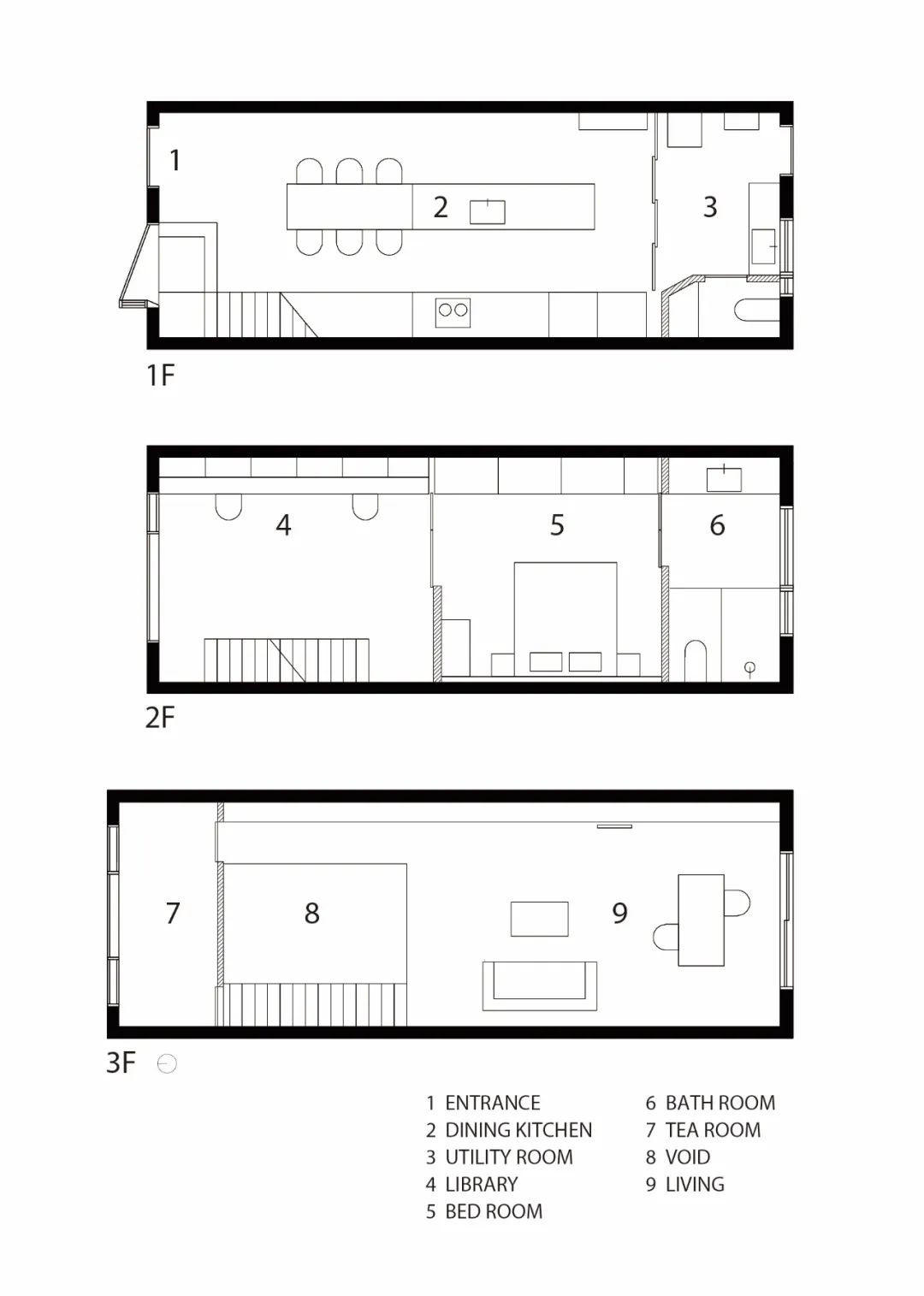
The renovation of a three-story terraced house which was built in 1920. The house is located in a historical compound in Shanghai’s Hongkou District, where many Japanese people lived during the foreign concessions era. Actually, a Japanese newspaper of those days was found under the floor while renovations were under way.
When we visited there for the first time, the inside of the room was dim because of the partitions and the building adjacent to the south side of the house. However, we were impressed by the light and shade contrast created by the light which shined into the room from the skylight just above the staircase.
The impression influenced our new design a lot to create another skylight and the void, through which the light is brought into the lower floors thoroughly. Moreover, the staircase and the void are arranged in the same line to let us have an experience going up towards the skylight. Stucco is used for the wall from the first floor to the third floor beside the staircase, which causes the shade to reflect on the wall when people go up or down. The bright wall works as a reflector to bring the light to every corner of the room.
While reinforcing the structure and some other parts, the existing beam and the floorings are retained as much as possible. In order to match with their texture we arranged the large book case and the cabinet on the opposite side of the stucco, which causes the whole room to have light and shade contrast and highlights the changing light every moment.
这是一项三层长屋(1920年建成)的改造项目。建筑位于上海虹口历史悠久的里弄。在租界时代,许多日本人曾在这里生活。实际改造时,在地板底下还找到了当时的日本报纸。
第一次拜访这栋建筑的时候,我们发现室内空间是用墙壁隔开的,南侧还有建筑物邻接,非常昏暗。但是楼梯间正上方有天窗,锐利的光线照射进阴暗的室内,这个明暗对比令人印象深刻。
本次设计方案的灵感来自当初的第一印象。为了把阳光充分而均匀地送到楼下,设置了新的天窗和通高,又通过把新的台阶与天窗布置在同一列,创造出向着光明攀登的体验。在楼梯一侧的墙壁上,从1层到3层都做了手工抹灰处理,使之随着视线的上下移动缓慢反光。这个明亮的室内墙壁就像一张反射板,起到扩散光的作用。
在进行结构加固和部分维修的同时,会尽可能地保留现有的梁和地板。为了配合其质感,在抹灰墙的另一侧设置了大书架和书柜。这样,室内会产生整体的明暗对比,从而凸显出每刻都在变化的光影。
project : tos house
time : 2019.04-2019.10
adress: Hongkou district, Shanghai
area: 130 sqm
Photographer: Alessandro Wang
项目: 上海3层老房子改造
时间:2019.04-2019.10
地址:上海虹口区
面积:130平方米
摄影:Alessandro Wang
客服
消息
收藏
下载
最近




















