查看完整案例


收藏

下载
该项目北侧为泾河大道,西侧为正阳大道。基地西北角 150 米处为新建成的静安荟奥莱公园(商业),西侧 650 米为崇文塔,北侧 700 米为崇文中学和崇文佳苑小区。基于基地的情况,设计采用体块穿插的形式,根据不同的功能需求,将功能重新排布并将不同体块进行穿插。在满足功能要求的同时,做到形体足够具有昭示性,能够更好地吸引人流,成为区块内的新标杆。
01 项目位置
▲ 区位分析
因该项目位于正阳大道东侧,十字交叉口的关键性节点位置,所以我们希望区别于传统售楼处建筑,创造一个充满活力的城市公共空间,成为代表泾阳未来发展的地标式建筑,倡导一种新的生活理念。
02 概念设计
▲ 概念体块生成
▲ 建筑鸟瞰
实景
▲ 建筑立面夜景昭示性:通过不同体块之间的穿插从而构建另一种建筑形体,使其具有昭示性。主入口采用风帆造型,寓意一帆风顺。
▲ 建筑入口
夜景
▲ 建筑主入口
实景
03景观设计
室外景观通过使用同样的线性设计语言,并结合几何形体的景观构筑物,使整个建筑与周边环境协调的融为一体。并且通过运用不同的几何图形来分隔景观,从而营造适宜的景观步道,增加用户的体验感,运用水景和景观构筑物将建筑与自然相融合为使用者带来自然感。
▲ 建筑航拍俯视图
▲ 建筑景观夜 景
▲ 建筑景观夜景
04 室内设计
整体的室内设计采用建筑、室内一体化的设计手法。建筑内部形态各异的几何体,其材料与颜色透过玻璃幕墙成为建筑外立面展示的一部分。室内运用大量具有金属质感的材料,铝板、镜面不锈钢等营造时尚又具有未来感的氛围。大体量的几何体穿插使得空间更加具有雕塑感和趣味性,激发置身其中人群的好奇心与探索欲。
▲影音室
▲影音室
+
休息区
▲ 水吧
▲室内楼梯造型
▲ 下沉
洽谈区
▲ 室内入口
▲ 室内一层儿童区
▲二层休息区
04灯光设计
整体的灯光设计采用大量染色灯,并结合建筑本身特点,通过各种对金属光线的反射,打造出一个梦幻的场景。
▲ 室外灯光效果
▲ 室内灯光效果
本项目旨在能够为当地民众更多的公共活动空间,提升公共生活品质,引领人们对未来美好生活的向往,为社区做出积极的贡献。
项目图纸
▲ 总平面图
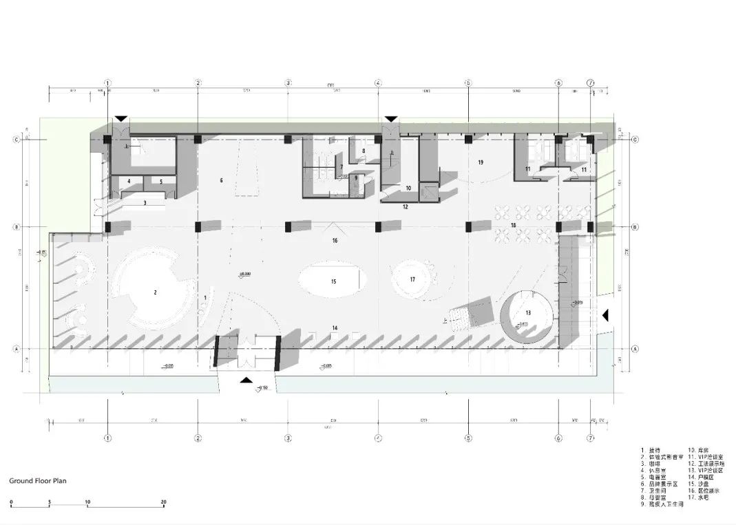
▲ 一层平面图
▲ 二层
平面图
▲ 西立面图
▲ 南
立面图
▲ 剖面图
项目介绍
项目类型:商业建筑
项目地点:西安
建筑面积:2115.81㎡
设 计 单 位:aoe 事建组
项目状 态:完成
主创设计师:温群
技 术 总 监:马剑宁
建筑设计团队:温群, 马剑宁, 高士鑫,海啸,常志宇,张蕊
室内设计团队:杜婧,尹晓凡,李莎,刘美君,薛雅文
灯 光 顾 问:Puri Light 北京 光湖普瑞照明设计有限公司
幕 墙 顾 问:英海特工程咨询
摄影师:DONG 建筑影像
事
更多详情请扫码关注
事建组建筑设计咨询(北京)有限公司
北京市朝阳区西坝河西里 23 号嘉汇中心 2 楼
aoe ARCHITECTURE
2F,23 Xibahe West Zone, Beijing 100028
+ 86 10 8595 0799
|商务洽谈|
|宣传活动|
|物料合作|
客服
消息
收藏
下载
最近









































