查看完整案例


收藏

下载
设计理念:“永恒的家”,于合肥建造梦幻家园的野心与对生活的热切展望。由祥源地产开发,意将合肥阡陌交通的远山水乡打造成中国式的“梦幻家园”,和在当下数字时代下“东方巴黎”的褐石别墅所营造出的一种淡然优雅、舒适温馨的氛围感。
祥源·湖山壹号
遵循“再造生活的永恒经典”,从“家庭”的维度出发,追寻自然的理想国与惬意归家的眷恋感,意在空间中表现出对家的认同感、归属感。褐石别墅之于顶级圈层不仅是居所,而是生活的意义,更是财富无法衡量的美感。其价值不仅是外在的财富体现,更是一个可以传承及收藏的“艺术品”,是对居住艺术的深刻洞察和表现,亦为主人财富家族的全方位圈层社交做永恒的定义。
谦逊低调的家庭交流场“乐生平”,打破固有认知里的别墅空间,全新优化的每个功能区域都维系在保持相对独立又互通延展的舒适空间内,把明亮、柔和的呼息感糅杂进低调的近乎谦逊,会客厅关系存在一种得体的权贵感,这份精巧内敛与现有大部分著名老别墅的艳丽绰约截然不同,作为褐石别墅,它竟然安稳实用。以茶为媒,谈天畅聊。在一方开阔方正的空间里,交流彼此见解,思想碰撞升华。
设计师以探索生活的趣味以及居住的意义,于浮躁的社会中淬炼富有情怀的美学厚度,为业主建立入则宁静,出则繁华的诗意家园。
家庭聚灵动雅,光影的律动与植物的呼息带给室内柔和、轻盈的舒缓氛围,雅奢品质深谙上流圈层对物质与精神的追求,以雅为度,传递空间精神是一种无法替代的文化气质。当然,人间烟火气最抚人心。当家人齐聚,结束白天的忙碌,回归家庭的温馨与平和,一起谈笑风生,幸福美满的画面感全然是心之所向。
长桌美食
建筑的大尺度落地窗,以流动的姿态将光景引入室内,唤醒生活共鸣,以长桌为中心向家庭空间辐射,归家温馨的家庭场景体验。寻三两好友,杯盏交错,休闲时刻,相约好友。一顿美食,畅饮美酒,谈笑欢声,愉悦时刻。茅针香软渐包茸,蓬櫑甘酸半染红。
书法研习
书墨留香
中华文化博大精深,书法艺术更是源远流长。特意收藏了一件由宋代诗人姜夔为合肥所作的一首《淡黄柳》,“温故”而“知新”。艺术成为生活的陪伴者,给生活情景带来可遇不可求的愉悦,赋予永恒的艺术精神追求,诠释塔尖人士艺术美学生活的理念,是精神财富的累积,更是艺术品作为保值增值的资产,亦是家族财富传承的方式。
影音互动
亲子&伴侣互动,VR 体感游戏,陪伴家人,增进彼此的感情。既保证业主使用的私密性,又可以体现作为社交区域对外的洒脱开放,向外延伸的视觉强调了纵深感,空间明快又不显空洞,室内外借力互应相得益彰,沉稳而不张扬,时尚而不浮华,优雅从容。
相敬如宾的亲情链接
“私享天地”
消融私享空间的边界,家庭的温暖不止于独立的空间与功能,更重要的是家庭成员间的情感交融与紧密互动。
缱绻私享 二人世界
红色点缀的卧室,是风吹拂过留下的爱意,生长出属于家庭版图中的温馨。在私人的空间,有一处能够承载个性、安放兴趣的灵魂乐园,把快乐和爱好融为一体,共同度过浪漫时光。慵懒坐在沙发上,或闲聊着贴心话,或自在地各自看书,一杯小酒,一盏暖灯,消弭疲乏,感受此刻悦己而舒缓的静谧。
家里有长辈才是治愈一切的港湾,安心温暖。世间的真善美,情感的紧密联系赋予家人爱的能力,爱滋养出无限可能。万千世界,唯有家才能唤起人们心底最轻柔的眷恋。
桃李年华,卓尔不群。合肥一年四季花开不断,家庭氛围耳濡目染,女孩十分喜欢奇妙有趣的珍奇花草,自幼习琴,热爱国风。
幼学之年--科幻家
男孩热衷航天科技,祥源萌萌熊等形象手办玩偶跃然于上,宇航员和起飞的火箭虚实有度的烘托出儿童灵动活泼的纯真天性。
冥想空间
冥想空间则渐渐转入内敛,重视空间线条和比例的纯粹性,精于细节和材料的组合。以禅意家具,运用极富美学的摆件,搭配突出细节感的温暖,造型感的煮茶吊壶将简洁性与古典美融合到了极致。
每天闻山林清香,感受花海拂面,看日升月沉,和爱人挽手踏浪,携孩童戏水爬山,和长辈唠嗑煮茶...度过从容自在的人生。
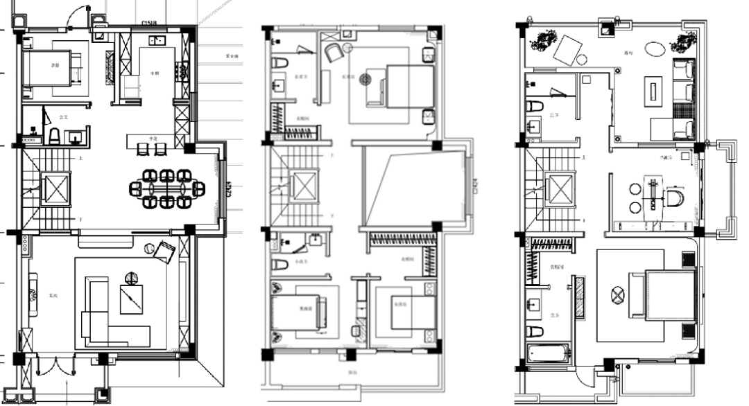
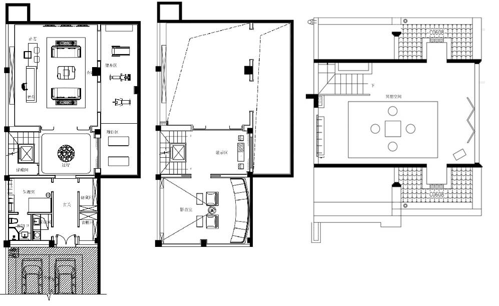
平面图
本文版权为原作者所有,内容仅用于学习交流。
客服
消息
收藏
下载
最近

















































