查看完整案例


收藏

下载
在众多建成的超高层建筑名单中,位于深南大道的“
汉京金融中心
”来头不可小觑——号称亚洲第一高纯钢结构摩天大楼,世界最高核心筒外置塔楼,极具创意。
作为深南大道片区稀缺的可售型超甲级地标写字楼,
汉京金融中心
紧邻腾讯大厦,坐拥深南大道与科技园中区两项绝佳地段条件,已确定转型的前海蛇口自贸区也在不远处。同时,359米高度也让它成为深圳西门户的第一建筑。除了高度之外, “汉京中心”在定位上结合城市特色与人文精神,以达到国际化水准,筑成“深南大道创意地标建筑”。
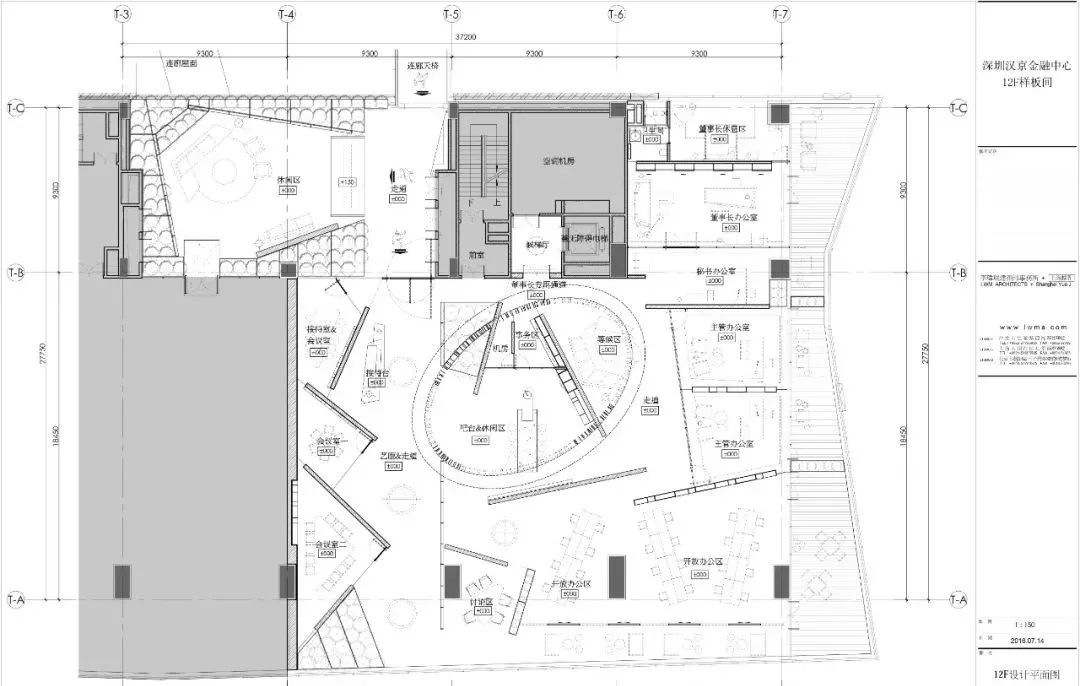
△平面图
△接待区效果图
△休闲区效果图
△吧台区效果图
△办公区效果图
LWMA
为汉京金融中心设计十二层的办公室,考虑到Thom Mayne主持设计的整座建筑贯穿着前卫能量与时代精神,
LWMA
试图打破对商业办公空间的传统定义,在满足空间基本需求的前提下,在充满科技感的金属架构中,加入感性诉求来丰富空间内涵,将多样的城市生活、艺术文化与办公环境交融在一起,凝练出独特的空间气质
。
设计团队试图还原现代清水混凝土的原意,去尊重、感受Thom Mayne建筑的质感,深色金属吊灯跟随墙体韵律延伸,水泥墙和未经修饰的金属组件透露出质朴与真实。
深色金属网在天花排列成灵动的节奏,往边界延展,为空间带来通透的视野层次,秩序与变化组合成新的美学。
斜墙与LED模块玻璃围合成开放办公区、讨论区,利用水泥结构柱、绿植轻松的界定空间尺度,天花深色金属灯筒散发出光线,光线能产生某种富于表现力的特质,线性灯与金属网的延伸方向一致,强调空间的流动性与秩序性。
休闲区
的作用主要体现在两个方面:改变办公模式,提供社区办公场所;体现企业人文关怀。
设计团队延续建筑氛围,在休闲区置入绿地广场的概念,创造在建筑中漫步的体验,朴素的水泥主墙与深色金属门洞,连同两旁有节奏感的LED模块玻璃与绿植形成切割关系,用半围合的空间暧昧表达未来不确定属性。
彩色砂浆磨石搭配灵动的家具、活泼的色块肌理营造层次丰富的视觉感受,嵌入天花的深色金属灯筒形如雕塑,被赋予某种精神上的意义,渲染出别具现代感的艺术氛围,彰显强烈的空间个性,呼应建筑未来感。
由深色金属格栅半围合的吧台休闲区赋予了开放与外向的性格,作为工作当中的集体场所,交谈休憩。
通过管控的VIP电梯通道作为董事长及贵宾专用动线,同时划分出客人等候区,强调私密性与礼仪感,呈现出严谨清晰的办公秩序。
秘书办公室
由深色金属墙面、玻璃围合,深色金属网天花、水泥结构柱、深色金属植栽槽,冷酷而充满诗意,与窗外城市风景相呼应。
董事长办公室
与董事长休息区,白漆金属背墙整合展示与收纳的功能,木地板为空间注入温度,阳台、绿植、光线、城市风景,凸显出空间使用者重要的地位。
LWMA
也很好完成了他们的设计初衷——以人为本,打破了对商业办公空间的传统定义。
未来不会是现在的样子!”那未来的办公是什么样子呢?在未来,办公=生活,生活=办公,像日常生活一样办公,这可能就是未来办公的模样。有着“智慧楼宇”之称的深圳汉京中心,一座工作和生活相互融汇的摩天大厦。
本文版权为原作者所有,
内容仅用于学习交流
客服
消息
收藏
下载
最近











































