查看完整案例


收藏

下载
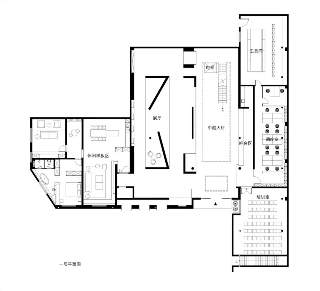
启仓设计近期完成了可瑞舒适家杭州新总部大楼的设计,这个项目位于杭州西湖区古墩路700号,实用面积1800平方米。全楼为上下两层围绕以挑高中庭为核心的白色盒子空间,简净的白色建造体独立于周边环境,传达出建筑与环境,科技与生活以及开放与共享的理念。
大厅入口
新大楼一层设有产品展厅和舒适家各系统的智能体验样板间,二层为综合办公区。功能分布满足共享大厅,开放办公区,多媒体会议,小型研讨区,独立办公室,展示体验空间等。作为一个集办公、展示、销售于一体的综合性总部中心,这个空间将面对不同类型的使用人群,它不仅需要实现空间交通的最优化,还要实现员工和顾客的合理分流,以保障办公和体验的不同环境要求。
垂直交通
整体空间设计以线条为骨架、以色彩为表皮,并在白中大胆地融入红色,以白的纯粹,红的立体营造空间的层次感和记忆点。
前台接待
前台红色的背景代表热情服务的企业态度,在白色主调的大厅中显得尤为醒目,同时兼具视觉引导的功能。
共享大厅
共享大厅是平面动线和垂直动线的中心,为了协调空间的松、紧关系,设计师用一个挑高的中庭,把空间的尺度打开,呈现宏大的空间场域,整体感觉更通透。
光线与空间
设计师注重自然光的艺术运用,通过对顶部折线形天花的处理,在折角处设计透光区,不仅吸纳了自然光进入室内,而且通过这些光线的变化,让空间使用者能感知时间的变化和光的律动。
产品展示区
一楼的产品展示区设计研讨区和洽谈区,不同产品的每个局部展示空间之间有着相互衔接的关系,员工、访客可以自由穿行。而黑白的色彩变化则增强了空间的识别性,加上可瑞标志元素的运用,视觉体验上更加丰富。
智能家居样板间
在智能家居展示区内,简洁的视觉表达和空间装饰,包含了沟通与传达的力量。空间内设可瑞舒适家的四恒系统,保证了整个空间恒温,恒湿,恒氧,恒静,而智能系统则保障了整个办公环境能舒适、便捷、智慧地运行。
综合办公区
为了提高办公的舒适性和效率,设计师将综合办公区设在二楼,除了独立的经理室和高管办公室外,通过中部回廊的设计形成了办公室空间的天然分隔及动线划分,保证各个不同区域的独立性和相对安静的办公环境,令工作效率和人员关系得到优化和改善。
改造前后对比
拒绝平庸,每一项设计都是在尊重使用者需求的基础上探寻着空间更大的可能性。
项目名称:可瑞舒适家杭州总部
项目功能:办公展示
建筑面积:1800㎡
项目造价:580万元
设计机构:启仓设计
主案设计:毛赟、胡雅婷
撰文
:
叶建荣
摄影
:
朴言
毛赟
T10+设计联盟联合发起人
启仓设计机构创始人/主持设计师
博洋空间研究院联合创始人
宁波室内设计师协会理事
宁波大学/浙江万里学院/宁波城市学院客座导师
国家文化产业创业创意人才库成员
40under40中国(浙江)设计杰出青年
第十二届 现代装饰国际传媒奖年度餐饮空间大奖
第十届中国国际室内设计双年展铜奖
首届中国设计星华东地区十强
首届中国青年设计奖“中国百强青年设计师”
T10+设计联盟
T10+设计联盟(T10+Design Alliance)是由刘志明、卓稣萍、李财赋、汪洋、胡梁锋、张奇峰、毛赟、郑钢、潘高峰(图中左起)等设计师共同发起的联合设计品牌。“专业联合,设计共生”,T10+设计联盟创立的初心,是希望联合不同领域的杰出设计机构和产业链伙伴,开展技术、空间、生活、美学、艺术的交流和研究,并以跨领域的合作方式和完善的设计产业链服务,为住宅、地产、办公、商业、会所、酒店、景观等不同类型的客户,提供卓越的设计和专业的服务,创造和谐共生的理想空间与生活方式。
───────────
▼
THE END
▲
客服
消息
收藏
下载
最近

























