查看完整案例


收藏

下载
店铺首店选址于杭州。
依托于杭州互联网与人工智能的发展,结合店铺极具未来感与科技感的视觉效果,为当下的传统零售空间提供了新的营销思路与新型交互智能的购物体验,传达年轻,快时尚的消费理念,激发年轻消费者对自我及美感的探索及释放。
▼店铺透视视角(摄影版权 居德文、徐乾飞)
区别于传统零售空间,倜客眼镜旨在打造一个技术驱动型的,专注于为用户提供便捷配镜的眼镜新零售服务。
通过自主研发的无人配镜终端,智能清洗,AR试戴,新零售系统平台,充分利用大数据分析与处理,智能硬件,深度学习,大数据等技术手段,构造无人购物场景。
▼无人购物场景,用户自由体验(摄影版权 居德文、徐乾飞)
店铺设计灵感围绕“科技感与未来感”,通过拉丝不锈钢和彩色亚克力的运用,在视觉上形成黄蓝相间的的色彩冲击,定义整个空间的视觉中心。
▼“科技感”与“未来感”并存(摄影版权 居德文、徐乾飞)
错落摆置的桌面展示系统,俨然生成了一幅“蒙德里安”经典之作。让用户在未来感与科技感并存的模块空间中,体验无外界干扰,自我完成任务的“成就感”。
▼错落摆置的桌面展示系统(摄影版权 居德文、徐乾飞)
设计中运用了大量几何形体的穿插,并赋予不同的材质与色彩来营造科技感与未来感空间氛围,让用户体验沉浸式的消费乐趣,在自我试用,选择,消费的同时,穿梭于未来科技实验空间。
▼不同色彩与几何形体的穿插(摄影版权 居德文、徐乾飞)
▼穿游于体块之间(摄影版权 居德文、徐乾飞)
桌面球状亚克力容器中封存着商品,仿佛于未来实验室空间里保藏,等待用户去发现与探索。
▼球形容器(摄影版权 居德文、徐乾飞)
穿插设置的半透明亚克力板为整体建筑带来了朦胧幻化的视觉效果。当消费者穿梭其中,视线透过半透明的彩色亚克力板,营造如在未来科技空间中穿梭探索的感觉。
▼半透明亚克力板的穿插(摄影版权 居德文、徐乾飞)
▼朦胧幻化的体验(摄影版权 居德文、徐乾飞)
此外,店铺采用模块化的设计,可以根据场地的变化来调整模块的组合,便于施工及不同店铺的加盟,也为整个店面的创新,升级提供更多的可能性。
▼模块分析图(图片版权 平介设计)
与传统中岛店铺设计方式不同,本店铺的顶面采用轻质金属线条巧妙地环绕着不同的模块,使整个空间的语言浑然一体,同时也减少了耗材,节约了造价成本。
▼顶面构件(摄影版权 居德文、徐乾飞)
顶面的结构同时连接店铺内的货架、门头、灯箱、镜子、展示桌面、广告牌等模块,达到空间与形式的呼应。
▼顶面构件(摄影版权 居德文、徐乾飞)
▼门头细节(摄影版权 居德文、徐乾飞)
▼灯箱细节(摄影版权 居德文、徐乾飞)
▼广告牌细节(摄影版权 居德文、徐乾飞)
本次设计旨在贴合倜客品牌视觉定位,轻盈朦胧的材质折射着层次多变的光影,与穿插交叠的建筑几何感空间融合,突出品牌对未来感
与
科技感的追求。
▼店铺透视(摄影版权 居德文、徐乾飞)
▼轴测图(图片版权 平介设计)
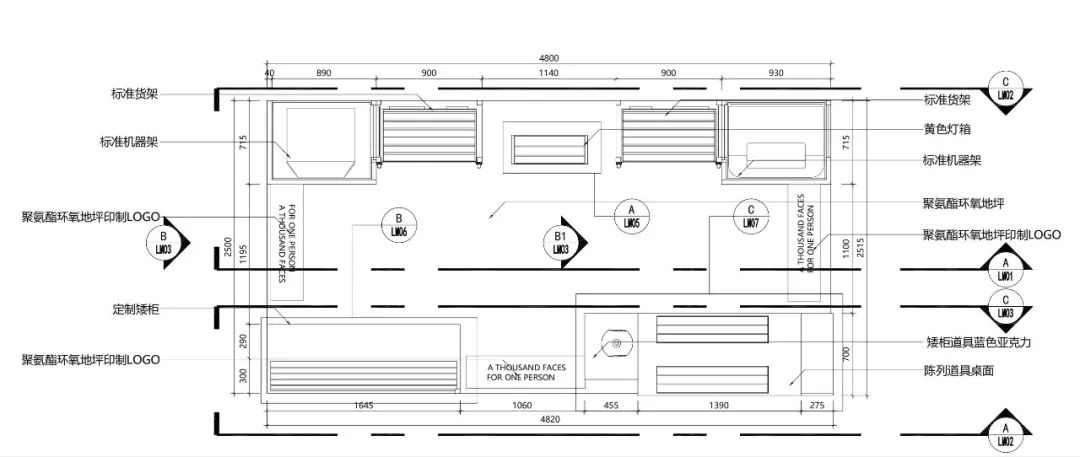
▼平面布置图纸(图片版权 平介设计)
项目信息
项目名称:倜客无人眼镜零售空间
设计方:平介设计
项目设计&完成年份:2021.5
设计团队:杨波、杨楠
项目地址:浙江杭州紫荆龙湖天街
建筑面积:15㎡
摄影版权:居德文、徐乾飞
客户:倜客眼镜
客服
消息
收藏
下载
最近





















