查看完整案例


收藏

下载
项目地点Location:深圳 Shenzhen
主办方Sponsor:深圳市规划和自然资源局、深圳市文化广电旅游体育局、深圳市建筑工务署
用地面积Site Area:144000㎡
建筑面积Built Area:169238.84㎡
设计时间Year Design:2020
©TANGHUA建筑事务所
2020年初,在家办公的我们迎来深圳歌剧院方案设计国际竞赛。在公开征集阶段100余家海选大战中,汤桦建筑设计作为唯一一家单兵作战的深圳本土团队入围,冲进了第二轮竞赛。
在深受疫情影响的萧瑟气氛中,席卷全国的城市建设“
嘉年华
”更让我们颇为困惑,此时此刻的深圳歌剧院竞赛,引出了我们长久以来对于“超级”城市公共建筑课题的思考和答案。
符号VS真实的生活
相较于一个明信片式的符号,我们更注重歌剧院项目给本地居民带来真实的生活提升,并进一步发挥产业联动作用,带动整个片区。
我们设想这里有专业的演艺空间、博物馆、文献中心,也有一些培训基地,甚至是可以对外出租、开放的专业场地。歌剧院不再只是一个单一的表演空间,而是一个表演的产业群落。与此同时,日常的城市功能也成为整个街区之间的粘合剂,市民和本地艺术家可以多重方式来使用这个资源,共建广义的文化街区和文化艺术生态系统,最终成为深圳自己的艺术土壤。
物体VS街区的肌理
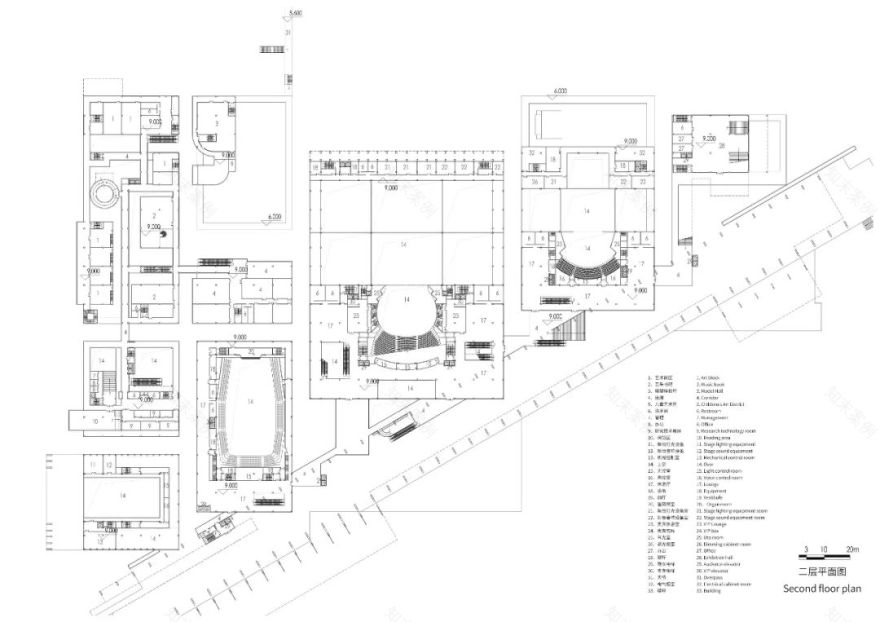
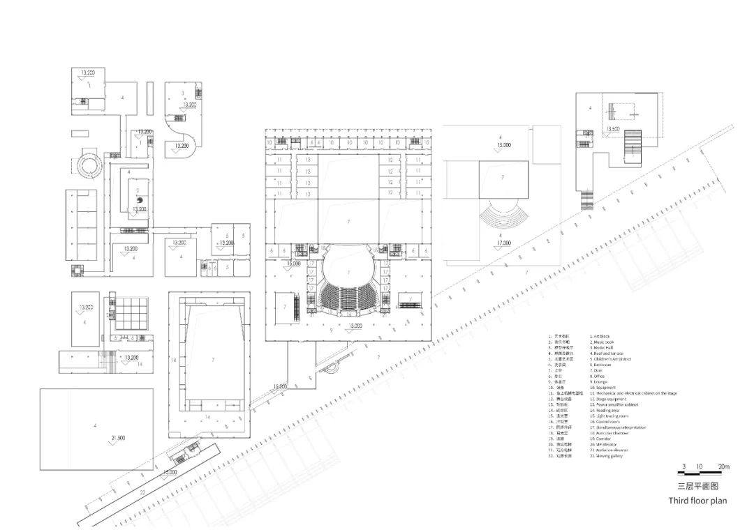
相较于一个形象单一尺度超常的观演建筑,我们更希望歌剧院呈现一种片段化的肌理,成为一个以街道意象为底色的剧场群。它的边界是开放的、多样的,和既有的城市空间融为一体。
公共服务和文创体验区以适中的体量与城市肌理衔接,同时溶解了四个大体量的演艺空间——多功能厅、音乐厅、歌剧厅、戏剧厅。骑楼作为主要的街道界面,成为增加街道活力和适应地域气候的重要保障。开放而且多样的结构,确保了多功能、多事件的发生,为艺术生态系统的培育创造了空间。
雕塑V
S界面的形象
相较于雕塑化的建造一个庞大的歌剧院体量,我们以界面表达歌剧院的标志性。设计用一个留白的场所,在自然与城市街区相遇的界面建立一个纯粹的形象。
标志性的“表现”空间(超级舞台)与专业的技术空间(歌剧厅、音乐厅、剧场等)完全剥离,以获得更好的山、海与城市尺度关系,优化了歌剧院的整体能耗,减少无谓炫技带来的造型成本,把歌剧院内向的公共前厅等空间释放给街区和海湾。
营造一个非物体的剧院群落,在肌理化的艺术街道中呈现多样化的场景和一个留白的非纪念性/非雕塑性公共建筑形象。由此,建构深圳本土的文化与乡愁。
©TANGHUA建筑事务所
©TANGHUA建筑事务所
▲请左右滑动
功能剖透视
具有街区肌理的艺术社区
超级舞台设计概念
城市客厅
当代转译传统木屋架
望海栈道
©TANGHUA建筑事务所
主持建筑师:汤桦
项目团队:戴琼
闫沛祺 王鹏富
杨原 张秋龙 毛铁勇 陈旭 易熙豪 汤孟禅 卢璟 刘华伟 郑昕 王鲲 于文博 杨尹芳
原文编辑:戴琼 汤孟禅 薛逸之
版权声明
Copyright Statement
本文版权归深圳汤桦建筑设计事务所有限公司所有
The copyright of this article belongs to Tanghua Architect & Associates
欢迎各类媒体合作,请与我司联系取得授权
客服
消息
收藏
下载
最近






























