查看完整案例


收藏

下载
校园建筑
新一代的校园已不仅仅是学习场所,
它俨然已成为完整学习生态的一部分。
随着教育边界的拓宽和素质教育的兴起,
校园增加了更具功能性的教学场所。
SPORTS CENTER
教育是永恒的话题。国家“双减政策”的实施,让教育回归校园,把学生健康成长作为教育工作的重点方向。为了进一步推动教育改革,上海市教委在2022年初下发了《上海市学校体育发展“十四五”规划》的通知,要求坚持立德树人的根本任务和“健康第一”的教育理念,让体育回归育人本源,帮助学生在体育锻炼中享受乐趣、增强体质、健全人格、锤炼意志。青春正茂的中学生最需要从运动锻炼中找到自信,在更大的空间中释放蓬勃的活力。
项目背景
本项目所在地上海市实验学校是一所富有鲜明特色的学校,中学部位于浦东新区东明路300号,占地面积110亩,建筑面积43000平方米。学校以前瞻创新的办学理念,自创的教材和独特的学制安排,在上海市独树一帜,具有鲜明的实验特色。普通学校12年的学制在这里只要10年,也就是这里学生的平均年龄要比普通学校小2岁,年轻、自由、个性化是上实学生的特点。
学校从2015年起开始有计划地实施“美丽校园计划”改造工程,逐步完成了图书馆、水舞台和雨花园等改造工程。2017年体育馆新建工程也提上日程。体育馆是全校学生在恶劣天气和雾霾天气活动的唯一场所。原体育馆仅包括一片篮球场及部分功能用房,使用面积约1343m²,仅适合开展一些对场地高度或面积要求不高的运动项目,譬如乒乓球和棋类活动等。学校拟在将来可以采用多元化方式发展体育课程,开发了旱地冰球、台球、射击、射箭等特色课程,但限于室内体育场地不足而暂时搁浅。因此,学校决定在室外篮球场的位置新建一座体育中心,为实施素质教育、开展“阳光体育”活动提供必要的活动场所。
◎ 基地原状(篮球场位置)
设计理念
新建体育中心场地为矩形,北侧是教学楼,南侧是原体育馆(将改造成演艺中心)。为与校园内现有建筑体量协调,新体育中心为两层立方体层叠。建筑的方形体现出力量与规则,与建筑物本身承载的体育功能相吻合。而这两个上下的盒子并不是完全重叠,而是在水平位置上形成参差,使造型更灵动有趣。外立面的颜色一面为褐红色,与毗邻的南侧建筑物在色彩上形成自然过渡,另一面为纯白色,增加建筑物的轻盈纯洁感。色彩的精心搭配及涂料、钢结构与玻璃的不同材质组合,都是对年轻活泼的校园气氛的回应。
考虑到新体育中心建成、南侧演艺中心改造完成之后,从教学楼通往这两处校园内主要公共建筑的巨大人流, 我们在新体育中心内设计了一条南北贯通的主通道,连接教学楼、体育中心和剧场。这样使三个教学区域无缝连接,教学场景的转换更为便捷,也避免了风雨天学生们从地面绕道的不便。
主通道将建筑体量分割为东西两个片区,其中西侧片区较大,因此设置了一条服务性通道连接到校园后勤道路,同时满足各功能场地的辅助空间设置要求。
场地东侧为操场,体育中心主入口开向东侧。同时考虑到南侧建筑的主入口为东北切角处,故新建体育中心形式上与之呼应,将入口开在东南角。
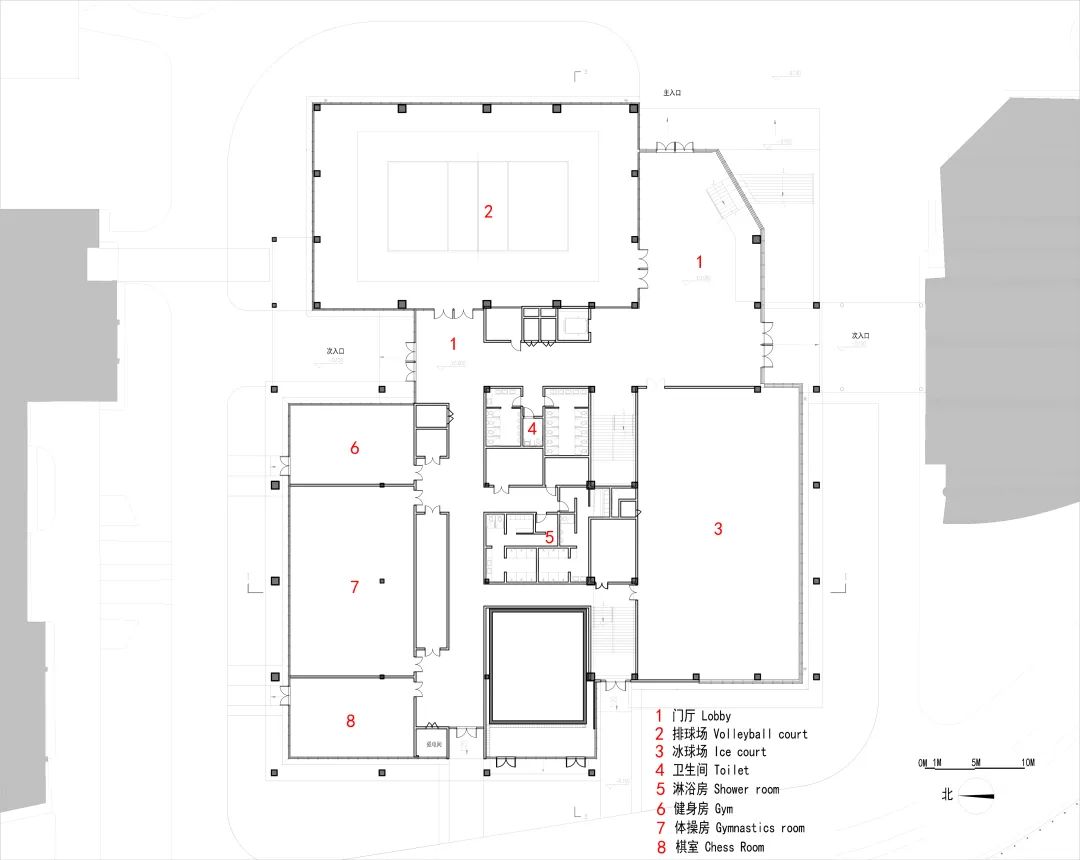
在确定了主通道、服务通道和主入口,场地内余下三块完整的功能空间。每个功能空间都直接连接主通道,通过四个方向的开口解决人员疏散。再将各功能块按照不同运动场地的实际尺度需求优化。放大主入口门厅,并与服务通道相连,形成规整合理的基本平面分区。
空间设计
阳光体育馆
自然光对青少年的健康和学习效率具有重要意义,阳光中所携带的短波长蓝光不仅能够促进眼球的发育,而且能够刺激人体的生理和心理系统。打造一个“天光体育馆”,让学生的运动时刻充满阳光是设计师的重要考量。
体育中心位于教学楼南侧,考虑到对教室日照的影响,将北侧的建筑体量进行削减,保证教室的正常采光,同时在视线上缓解对周边建筑的压迫。
◎ 日照示意图
在外立面材质上,体育中心较大面积地使用玻璃材质,进一步增加自然光线的通透度,延长学生们接触自然光照的时间。篮球场、排球场等大空间的场馆都至少有一整面安装玻璃窗,有些场馆如棋牌室几乎是全明,这样的设计不仅解决了场馆空间的自然采光和通风问题,从外观上也进一步消解体育中心在环境中的体量。
水平交通
体育中心内预留的南北贯通的主通道设置在6m层高处,既保证了首层的大进深空间的采光,也保证了连廊底部的校方车道4m净高的要求。由于这条连廊,建筑的形体关系进一步优化,形成了上下两个体量,中间为退后的灰空间。同时,这条半室外空间在人流密集期为场馆提供疏散和辅助服务功能,也成为学生运动锻炼后的休憩和社交场所,以此形成室内外空间的交汇,达到渐次展开的丰富空间层次。
◎ 水平交通示意图
垂直交通
满足防火疏塞的垂直交通被安排在两个体量交错的位置,贯穿首层至屋面层,满足了建筑的功能需求。垂直交通与水平通廊在建筑中心位置相交,形成了丁字交叉的基本交通体系,所有功能用房挂在交通轴两侧,结构清晰简明。通过这一系列剖面上的空间组织使每个场地最大化地接触阳光,强化一种错落叠加的竖向空间意向,打造丰富的空间形态。
◎ 垂直交通示意图
整体来看,建筑在水平和垂直层面的交通设计使得内部四通八达,纵横交错,这样的布局仿佛打通了任督二脉,各个教学区及场馆内部的功能分区一下子紧密连接,校园运作也因而显得行云流水,整个空间的设计层次丰富而又开放。
另一个特色是体育中心入口处高挑的公共空间:一侧是整面的玻璃幕墙,两条通向二层的楼梯在玻璃幕墙两侧相映成趣,彼此独立又相互守望;另一侧是一整面墙壁的彩绘,描绘的是各种体育运动场景,阳光从玻璃幕墙倾泻进来照在墙画上,呈现一派勃然生机。中间的场地既可作为上课集合地,也可设置乒乓球台实现灵活的多功能性。
结语
体育中心设计有可容纳约1000人左右的报告厅和4片室内球场,为学校实施素质教育、开展“阳光体育”活动,强化艺术教育提供了必要的活动场所。因此,是贯彻落实国家及上海市中、长期教育改革和发展规划纲要精神的有效措施。
少年智则国智,少年强则国强。今日之少年,当强健其体魄,文明其精神。健康的身心是其他一切教育的基础。本项目建设将为学校进一步推进素质教育提供了必要的硬件保障,从建筑语汇的角度诠释了“阳光体育”的精髓。
设计图纸
◎
一层平面图
◎
剖面图
◎
东立面图
项目信息
项目名称:上海市实验学校体育中心
项目地点:上海 浦东新区
建筑面积:7732平方米
设计单位:CPC建筑设计
建成时间:2021年
摄影:是然建筑摄影
客服
消息
收藏
下载
最近

























