查看完整案例


收藏

下载
高速的城市化进程催生了大批的配套型医疗建筑。
医疗项目的快速建设,在带来可观的经济和社会效益的同时也让我们感到一些隐忧。
不同地域下的医院,差异性正日益减少,漠视地域历史文化,造成形式的雷同和内容的空洞,建筑空间失去应有的温度,医院变成了冰冷的机器。
随着医疗水平的提高和人文关怀的觉醒,医院已不仅是单纯治疗疾病的地方,同时也是调养生理心理不良状态的场所。
医院建筑要摆脱趋同、产生意义、变得温暖,就要营造品质优越、具有场所精神的疗愈空间。
医院建筑是公认的最复杂的建筑类型之一,复杂的功能和流线对医院建筑提出苛刻的限制。
医院建筑设计犹如带着枷锁舞蹈,
如何在满足复杂功能需求的同时营造出自己的空间氛围和场所精神给设计师提出了更高的要求。
七十多年前,滚滚长江见证了同济与李庄在抗日烽火中的真情相守,同济大学迁址李庄古镇。同济大学与李庄人民结下的这份深厚的战时情谊历经数十年风雨,历久弥新。
李庄同济医院于2016年建成并投入使用,整个项目的顺利建设源于当地政府、宜宾市第三人民医院、同济大学的相互信任、精诚协作。李庄古镇醇厚的地域文化让这座现代化医院的设计工作凝聚了更多的人文思考,加之李庄与同济深厚的历史渊源,让设计者满怀热情又倍感责任。
项目概况
李庄同济医院是一家二级甲等综合医院,地处宜宾市李庄组团核心部位,位于李庄古镇西侧。一期400床,地上建筑面积为53087㎡,地下建筑面积12600㎡,建筑总高59.55m。
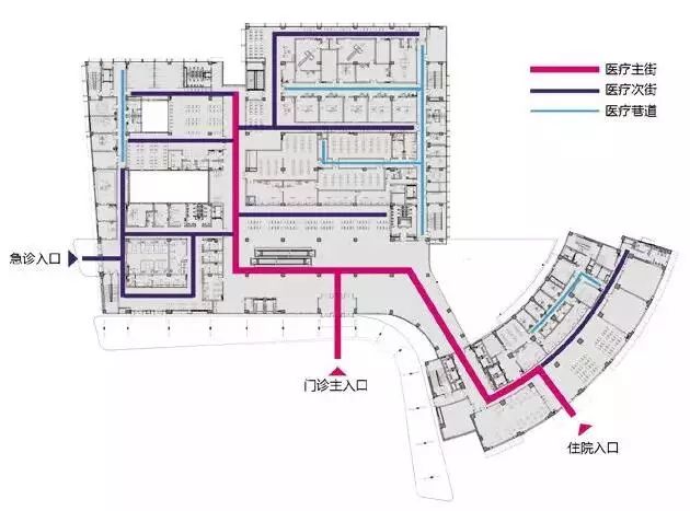
宽街窄巷——内部交通体系
李庄古镇的街巷空间结构完善、层次清晰,至今完整保存着18条明清古街巷。古镇经多年自然生长形成,以一条沿江主街横贯东西,并以此为轴生长出次一级的街巷步行体系。主街连接公路码头,沿街设置古镇重要功能建筑;次街等级降低,沿街设置商业店铺;主巷支巷人流量更小,连接住宅入口和院落山墙。形成“主街—次街—主巷—支巷”的空间层次变化,在平面形态上表现为主次分明的鱼骨状分布。
李庄同济医院的内部交通延续古镇“街巷式”交通网络体系,希望在空间感知上激起使用者的共鸣,产生场所意义和归属感。“医疗主街”宽敞明亮,作为交通主轴串联门急诊、医技和住院。在人流密集区域设置自动扶梯和景观电梯,形成一个高效便捷的立体交通体系。病人通过医疗主街到达候诊空间,并逐渐向诊疗空间过度;适当变窄的“医疗次街”满足病人通行和二次候诊的需要,交通空间等级降低;功能房间沿“医疗次街”开门,犹如古镇沿街店面的形式。就诊区后部是医护工作区域,内部人员通过更窄的“巷”道形成医护步行体系,“巷”的界面内向私密,像毛细血管般深入每个内部区域。病人通行的“医疗街”与医护通行的“医疗巷”内外相生又互不交叉,清晰有效地实现医患分流。
筑地随形——双首层基面
四川独特的山地环境和天人合一的思维体系孕育出李庄古镇独特的地域性建筑形态。依山就势、趋利避害、筑地随形,呈现出建筑与自然和谐共存的状态。当地形变化较大时,通常采用挖填台地的方法处理高差,建筑内部通过台阶踏步连接不同高度的建筑基面。
李庄同济医院基地南高北低,落差接近5m,建筑设计顺应地形,减少对现状地形的破坏,合理布置医疗功能平面,提出“双首层”概念,借地势高差形成南北两个入口基面。门诊、急诊、住院三个主要入口空间设置于基地南侧,统一将±0.000m作为医院“第一首层”标高,确保大量人流在进入医院之后实现无高差水平安全移动。于-4.5m标高设置“第二首层”,面向地势较低的北侧开设入口,作为儿科门诊和感染门诊等小流量医疗功能的入口界面。
首层平面图
剖面图
第二首层平面一半埋在地下,一半处于地面以上,在北侧设置中心供应室,既设于地上满足医疗规范要求,又避开主入口首层,为诊疗功能留出宝贵的首层空间。双首层的平面布置形式在医疗功能和地形变化之间取得协调,双首层并非割裂开的两个独立空间,而是通过下沉庭院和医疗中庭两个立体交通节点在室内外建立紧密的竖向联系,在立体空间上形成双倍首层使用效率。下沉庭院设置的跌落绿化与入口广场形成一个空间整体。场地、建筑、植被,三者自然共生,形成具有山地特征的特殊地域的场所空间。
光影的张力——历史与符号
建筑师把情感因素倾注在建筑实体上,建筑实体在符号图案的传递过程中充当着信息中介,把建筑师所赋予的信息传递给接受者,从而达到建筑师与鉴赏者之间的共鸣,产生应有的审美效果和精神功能。张家祠是李庄望族张家的宗祠,位于李庄羊街临近长江一侧,建于清道光年间。祠内有用整块上等楠木雕刻的50扇窗页,每扇都精工雕刻有不同形态:栩栩如生的仙鹤,四周配以动感的云彩,谓之“百鹤祥云窗”。梁思成先生将张家祠百鹤窗誉为“李庄四绝”之一。
同济大学文远楼可以说是同济最具历史意义与深远影响的建筑之一,年近“花甲”,是中国现代建筑史上的一座丰碑。建筑墙面上经典的镂空浮雕作为文远楼的标志,成为同济精神的一个符号。百鹤窗和文远楼浮雕两件饱含历史文化的建筑元素被艺术化地处理,提炼成现代的金属镂空遮阳板构件,多次运用于李庄同济医院的不同立面上。门诊大厅南侧玻璃幕墙上的金属镂空遮阳板交错有序,在造型上模拟仙鹤羽翼的肌理,形成一种神似的艺术表达。镂空金属板采用暖色氟碳喷涂,在室外形成百鹤祥云木窗的意象。在室内,文远楼浮雕图案被明亮的光线投射在地面上,一内一外,一虚一实,给体验者一种光阴如斯、往事依稀之感,是极具张力的精神体验。
粉墙黛瓦木窗花——材料与色彩
川南民居讲究“天人合一”的自然观,建筑用料因地制宜、就地取材,既经济节约,又与环境十分协调。建筑材料以木、石灰、青砖、青瓦为主。川南植被繁茂,门窗多采用当地木材,并附上工艺精湛的木雕装饰。粉墙、青瓦、木门窗、木雕、青砖勒脚等,成了川南建筑元素的精辟提炼。川南传统建筑色彩朴素淡雅,以灰白色调为主,暖色调作为点缀。青瓦、粉墙的深灰与白色作为整体着色基调;门窗木雕多以原木本色,暖色与青砖白墙搭配显得清新明快。
李庄同济医院以川南传统建筑为原型,在建筑用材上结合现代建筑特点,采用小青瓦、暖色面砖、深色玻璃、白色仿石喷涂、木色金属板等建筑材料,让这些传统和现代的建材在钢筋混凝土结构上重新建构。白色仿石涂料和深色玻璃作为建筑粉白和冷灰的主色调,质朴而端庄,充分符合医院建筑特性。暖色面砖和木色镂空金属板与传统建筑中木门窗的形式和颜色取得统一,成为视觉活跃的要素。窗下墙采用当地小青瓦砌筑,丰富了建筑的肌理和细节。建筑做灰砖墙裙,强化传统建筑青砖勒脚的构造元素。多种建筑材料的协调搭配和色彩的美学抽象,使得这样一座纯粹的现代主义建筑具有了地域文化氛围。
空中花园——融入自然的医院
宜宾市属中亚热带湿润季风气候。气候温和、热量丰足、雨量充沛、光照适宜、冬暖春早、四季分明、临近长江、水资源丰富。在这种地理气候环境下,常绿与阔叶植被极易存活、生长茂盛。当地居民喜爱绿植,积极开展建筑物、屋顶、墙面等立体绿化,整座城市植被繁茂,绿树成荫,被连续授予“森林城市”的美誉。李庄同济医院的绿化景观充分结合当地气候人文特点,充分利用屋顶及下沉庭院,结合医院建筑自身特点,除了美化病人疗养环境品质外,还为病人提供在室外健身活动的场所。景观绿化一方面为室内大厅空间提供绿色景观,一方面为门诊病人提供室外活动场所。空中花园的精心塑造结合场地内大量景观绿化,最终实现了医院院长的建院期许:“建立一座医院中的花园和一所花园中的医院”。
结语
医院建筑以功能为最大权重的设计评价标准,导致设计将关注的重点束缚在功能、效率以及局部问题的解决上,使建筑停留在满足“功能的容器”这一初级状态,自然与地域、历史与文化、艺术与技术等场所构成要素则容易被忽视。李庄同济医院的设计实践正是对医院建筑如何在达成功能和效率的前提下,提出了疗愈空间中应具有场所精神这个命题,并具体实践了让医院回归建筑本源的设计思考。
项目档案
项目名称:
李庄同济医院
项目地点:
四川省宜宾市李庄镇
建筑面积:
65687平方米
设计时间:
2012年
竣工时间:
2016年
项目总负责人:
张洛先
建筑团队:
张洛先、江立敏、谭劲松、周亮、高福源、马明
结构团队:
罗志远、杨庆辉
设备团队:
陈旭辉、李学良、孙翔宇、肖小野、宋海军、龙君
建筑摄影:
张嗣烨
— 猜 你 喜 欢 —
更新与再生——上海市第一人民医院改扩建工程
点击“
阅读原文
”查看更多医疗建筑作品。
客服
消息
收藏
下载
最近
























