查看完整案例


收藏

下载
时光的脉络里,推开一扇门,微风不燥,阳光正暖。
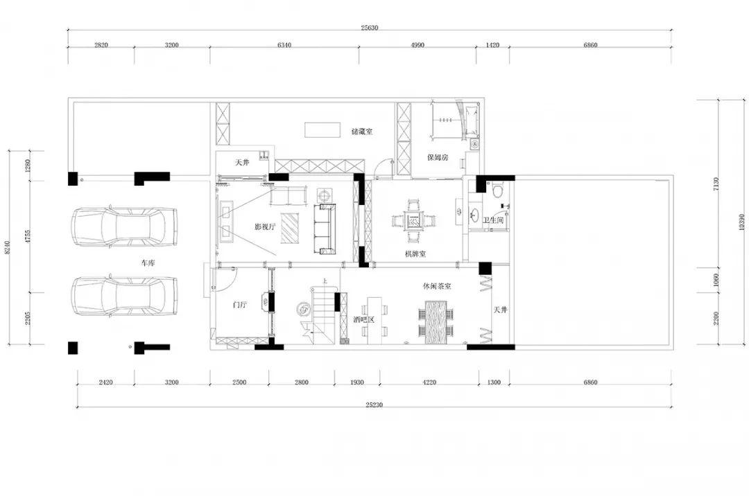
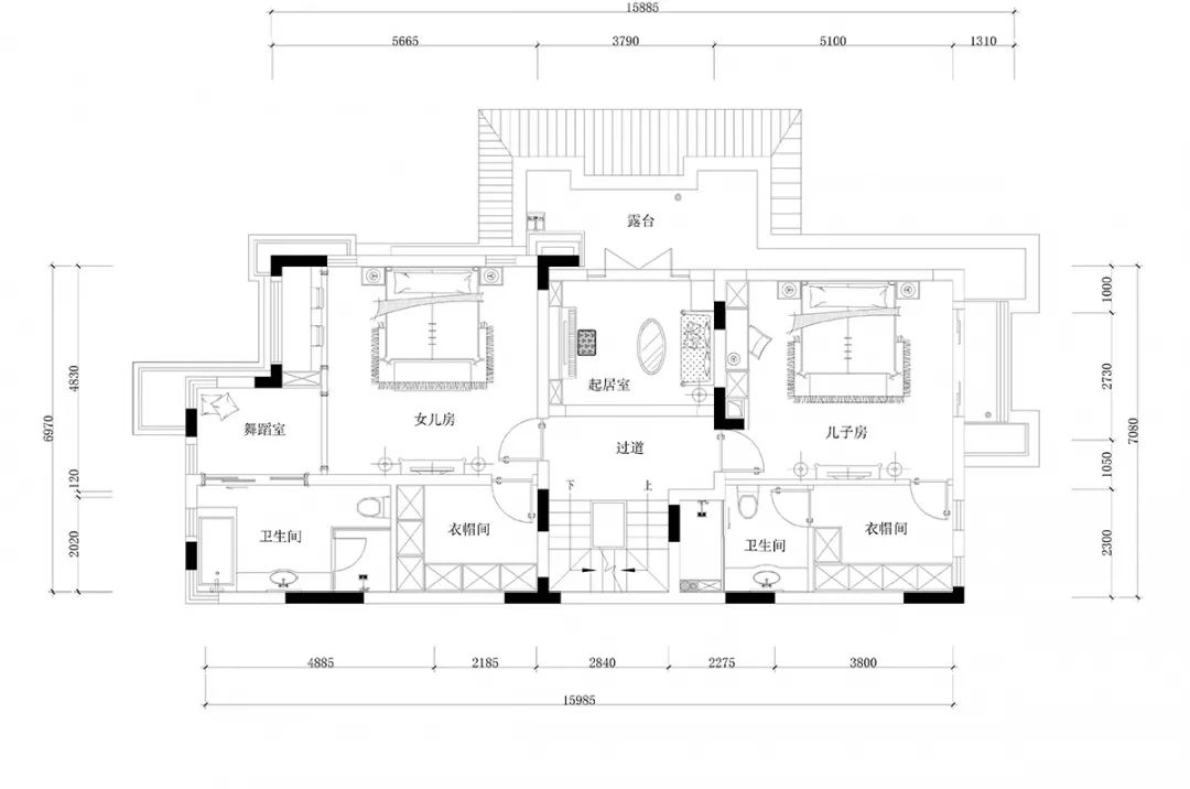
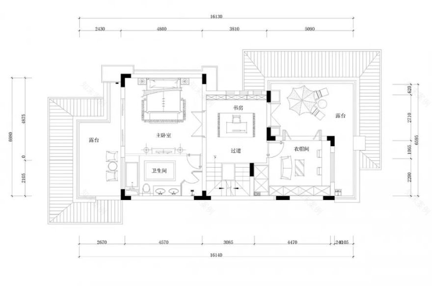
左至右依次为负一至三层平面布置图 ▲
项目户型:独栋别墅
项目面积:598 平米
设计风格:美式轻奢
产品工艺:JK124AY、JK134AY、JK145AY、JK027Y 紫丁香、YT015L
产品材质:复合实木
设计团队:重庆乔金斯
项目地址:重庆·龙湖至德路
落地团队:重庆乔金斯
本套案例设计之初,设计师以美式轻奢为设计主题,整体空间以美式的稳重与华丽为主,搭配上轻奢的软装与细节,大胆的风格碰撞与配色组合,营造出一种独特优雅的高级感,置身其中能给人以别致高级的华丽与档次感。
客厅
JK
轻奢不是浮夸,而是一种精致的生活态度,将这份精致融入生活正是对于轻奢最好的表达。轻奢主义和现代美式的碰撞,成就了温馨格调与设计质感的完美融合。
高级且精致的地毯与整体家具相得益彰,让客厅装饰风格更加完整。深蓝色美式沙发承载着浪漫与优雅,色泽明快而又温柔的抱枕随意倾靠,带来柔和清爽的视觉感。
衣帽间 JK
衣帽间以高级灰为基调,优雅而理性,简约而不简单。空间布局方正合理,从选衣到试衣,动线一气呵成,充分满足屋主的使用需求。
餐厅
JK
餐厅全景与客厅色调一致,灰色的空间搭配褐色的餐椅,加上优美的造型,餐厅空间显得格外的唯美浪漫。
茶室
JK
踏雪访梅只是少数人的雅趣,对大多数人来说,则更愿意躲进屋子里,耍懒猫冬。一碟闲食、三杯暖茶、两盏热酒,一群人围炉闲话的时光总是那么的悠然、惬意……简约的配色、几案共同构筑了这片静谧的小天地。
卧室
JK
卧室背景散发着优雅宁静的气息。在色彩搭配上也不显突兀跳脱,处处是生活的浪漫。为空间增添优雅高级的质感。厨房 JK
从陈列到规划,从色调到材质,宁静与繁华之间富有韵律感,置身其中感受生活的美好。
大气之余不显过分,低调之中暗藏奢华。净此尘世,亦是静此尘世。
文字编辑:黄中帅
/
编辑美化:王 芯
/
审核发布:戴素芳
● JOKINS 门店信息
温州乔金斯
瑞安乔金斯
路桥乔金斯
诸暨乔金斯
永康乔金斯
衢州乔金斯
宁海乔金斯
宁波乔金斯
桐庐乔金斯
天台乔金斯
江山乔金斯
杭州乔金斯
玉环乔金斯
丽水乔金斯
武义乔金斯
乐清乔金斯
义乌乔金斯
十堰乔金斯
柯桥乔金斯
余姚乔金斯
东阳乔金斯
常州乔金斯
江阴乔金斯
无锡乔金斯
张家港乔金斯
镇江乔金斯
盐城乔金斯
靖江乔金斯
徐州乔金斯
三亚乔金斯
武汉乔金斯
宜昌乔金斯
岳阳乔金斯
衡阳乔金斯
长沙乔金斯
洛阳乔金斯
开封乔金斯
南阳乔金斯
莆田乔金斯
石狮乔金斯
福鼎乔金斯
厦门乔金斯
长乐乔金斯
南昌乔金斯
上饶乔金斯
合肥乔金斯
安庆乔金斯
青岛乔金斯
济南乔金斯
临沂乔金斯
烟台乔金斯
大理乔金斯
昆明乔金斯
石家庄乔金斯
保定乔金斯
丹阳乔金斯
永城乔金斯
宜兴乔金斯
桂林乔金斯
广州乔金斯
银川乔金斯
西安乔金斯
沈阳乔金斯
成都乔金斯
重庆乔金斯
福州乔金斯
深圳乔金斯
遵义乔金斯
赣州乔金斯
秦皇岛乔金斯
绵阳乔金斯
佛山乔金斯
昆山乔金斯
南通乔金斯
福清乔金斯
威海乔金斯
六安乔金斯
常德乔金斯
泰州乔金斯
南通乔金斯
平顶山乔金斯
信阳乔金斯
郴州乔金斯
包头乔金斯
兰州乔金斯
象山乔金斯
唐山乔金斯
富阳乔金斯
桐乡乔金斯
浦江乔金斯
顺德乔金斯
承德乔金斯
奉化乔金斯
淮安乔金斯
遂昌乔金斯
宁德乔金斯
海安乔金斯
上海乔金斯
安平乔金斯
抚州乔金斯
湘潭乔金斯
青田乔金斯
扬州乔金斯
启东乔金斯
南宁乔金斯
三门乔金斯
安溪乔金斯
赣州乔金斯
余姚乔金斯
慈溪乔金斯
仁寿乔金斯
泉州乔金斯
霞浦乔金斯
宁波乔金斯
……
乔金斯商城
乔金斯订阅号
客服
消息
收藏
下载
最近






















