查看完整案例


收藏

下载
INTRO
项目导语
本项目地点周边有丰富的旅游娱乐资源,本设计主题围绕民用航空为主题的亲子酒店,我们重点围绕航天精神、探索未知、崇尚科学,敢于创新的理念进行了丰富的设想及尝试。通过对通用航空的理解尝试让从人们探索宇宙的角度出发,再结合现代艺术和对未来的设想。
项目种类:主题酒店设计
项目地点:北京市海淀区北安河路
项目面积:
参与团队:
灯光设计:
主要材料:PVC、皮革、钢材、油漆
▲红色圆点为项目所在地
初步构想
丨
Preliminary conception
首先从主题的亲子酒店的角度出发寻找出入点:
1. 信息社会、社会生产、经济、文化的各个层面都发生了重大变化。
2. 从一个基于制造和生产物质产品的社会向一个基于服务的经济性社会转变。
3. 后工业为社会,随着人们的消费意识加强并追求精神层次的需求,出现一种全面注重美观和情感因素的设计潮流。这种设计潮流在体现了信息时代背景下重新美化人类生活的努力的同时,也带动了设计中的情感化研究。非物质设计中的产品不仅仅是真实呈现物,也是包涵着深刻的思想和情感的载体。
施工前期
丨
Early stage of construction
▲现场实景概览
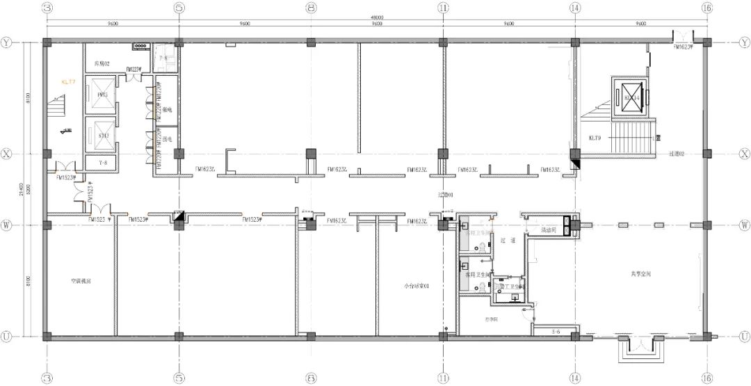
原始平面图
丨
Original plan
1、通过对现场实际空间的勘察,体会到空间内墙地顶基本处于毛坯状态,本次设计空间共分为两个空间,-1F 空间大致呈长条形,空间较为狭长。
2、整个空间的两侧均有楼梯和电梯间,同时还有通往酒店庭院的入口。展厅区域较为空旷完整。
空间功能分配
丨
Space function allocation
为清晰明确的展示主体内容,我们围绕通航主题编制一个故事《火星移民计划》。每一个空间都代表着一个章节,命名更加有趣,能给游客们更加投入、更加沉浸的展示体验。
▲人流
动线图
▲五矿君澜酒店入口
沉浸式设计体验
丨
Immersive design experience
N0.1:-1F 通航主题展厅
将通航主题体验归结成了一段空间转变的故事《火星移民计划》:
主角:
火星移民计划签约者(游客)
▲B2 区-机舱走廊
故事背景:
2109 年,地球资源匮乏,人类开始火星移民计划,签约第一批火星移民计划的人类需要通过一系列的训练才可以参加此项计划,突破宇宙速度奔向火星。经过在地球的训练后,移民者将乘坐火箭冲出大气层,前往移民中转站-月球。在月球进行一些列修整后,移民者将摆脱月球引力前往火星,成功移民。在此之后勇敢的人类依然没有停止探索的步伐,继续探索宇宙,冲出太阳系,奔向了广袤无垠的银河系深处……
第一幕:宇宙研究基地
▲A1 区-宇宙研究基地
签约者(游客)来到地球探索宇宙的研究基地,被告知地球资源极具匮乏,需要签约者做第一批勇士去探索宇宙,移民火星。走进宇宙研究基地便可以看到众多的航空航天器坐落在研究基地。
第二幕:飞向蓝天
▲A2 区-飞向蓝天
签约者(游客)需要通过飞行训练学会驾驶飞机以及其他各种飞行器。那么就需要继续探索飞向蓝天的途径,这时就来到了飞向蓝天来学习飞行及飞行技巧。
第三幕:攀登月球
▲A3 区-攀登月球
签约者(游客)经历了一系列训练后,具备了移民火星的能力。然后前往了宇宙中继站,月球进行休整并进行一系列科考活动以及火星知识的预习,准备去往终点——火星。
第四幕:火星移民
▲A4 区-火星移民
飞船抵达火星,人们走出太空舱后,踏上火星地面。在火星上,人类要穿上火星太空服,勘探火星环境,继而开始在火星上的生活…
终章:冲出太阳系!
▲A5 区-前台售卖
人类成功移民火星,但是勇敢的人们没有停止探索的脚步,继续刻苦研究,最终成功冲出太阳系,投入了银河系的怀抱...
是不是听起来很有趣呢?我们将“艺术-科技-未来”的元素相结合,人类在这数字科技飞速发展的时代,受困于渴望着不可逆的过去的未来生活,我们想要的究竟是什么?我们将作出何种选择?这也许是我们每个人一直在追寻向往的未来,未来究竟如何需要我们人类去探索去寻觅。
N0.2:1F 通航主题酒店客房将会分两个主线进行设计。一个横向的主线是表达通航与人类密切相管的场景,如军事、农业、旅行、拍摄、商务等场景,纵向的主线则是以人类飞行历史去贯穿不同时代的主题。其中标准间贯穿 5 个主题,包房贯穿 2 个主题,给旅客完全不同的入住感受。
▲飞行主题客房平面图
本案重点打造的是通航特色酒店,在空间创意中,将着重挖掘人类生活与通航的密切关系,通过打造趣味、体验式的空间,对访客进行通航知识的普及传播,另一方面激发民众对通航生活的热情。
▲1F 通航主题客房走廊
步入五矿君澜酒店 1F 走廊,就可以深入地感受到飞机客座舱的抽象形态。由不规则八边形混为一体的墙地顶相连接,层层叠加后如同太空飞船舱走廊一般的视觉感受。再加上墙面的哑光漆衬托着吊顶上方打下来的长条形灯带为主照明,外加墙裙下方所照射的剪接照明灯光和门牌号码的间接照明,以及地面舒适柔软的地毯,也满足了酒店的舒适感,同时也已享受到不同的视觉感官体验。
▲客房入口
走近后,可以看到我们精心设计的门牌号,飞机所指向的方向便是房间号,门牌中间便是房间的响铃了。
走进客房后想到,在设计的期间联想到了一部《飞屋环游记》,想象着带着我们的家园去飞行、远行。那么就将房间变化成飞船来实现对飞屋环游记的幻想。墙面的两侧弧面和墙面的圆角矩形的开窗,顶面是一闪“全景天窗”望见了蓝天白云,形象的表达出飞机的机舱内的氛围。
▲大床房
▲双床房
▲行政套房
▲行政套房
完全模拟奢华私人飞机中的卧室场景打造的睡眠空间,沉浸式体验,身在地面,心在天空。
以及在房间里的科普飞行模拟器,与飞行更全方位的接触体验。
PAST REVIEW
丨
往期回顾
客服
消息
收藏
下载
最近

































