查看完整案例


收藏

下载
我们生活方式的改变导致逐渐弱化对于家中空间的传统划分,更多的是根据屋主的生活习惯来进行布局。了解过我们的业主大概都看过我们有一套浴缸放在客厅的案例
(案例直通车)
,很多人曾问过,你们怎么会想出这种创意?
其实答案很简单,把业主最看重的需求放在C位考虑。
正如今天这套案例,既然屋主最在乎的是书房,就将采光最充裕的区域给书房。而不是固化思维,客厅优先。
户型分析
房子信息:
建筑面积:60平
使用面积:45平
居住成员:两人+两猫
设计费:9000元
半包:7.2万
总造价:28万
▲
原始户型图
厨卫狭小、餐厅压抑,
卧室只有一个衣柜,欠缺储物空间。
第一反应都会遵循常规思路,
选择砌墙加门,隔出独立的功能区。
但是房子面积本来就小,
而且只有一面采光点,
这样一来岂非让整体空间更加压抑?
文学家周作人曾说:
我们看夕阳、看花、听雨、闻香,
喝不解渴的酒,吃不求饱的点心,
都是生活上必要的。
我们于日用必需的东西以外,
必须还有一点无用的游戏与享乐,
生活才会觉得有意思。
那些能够把生活过成诗的人,
也不过是懂得了
如何在汲汲营营为生活奔波之余,
追求一些 “无用”的生活趣味。
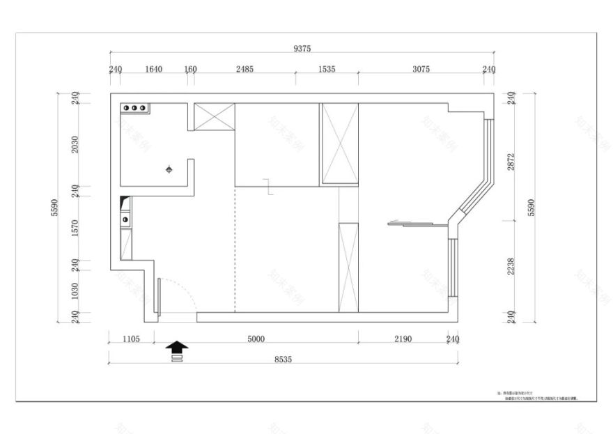
▲
平面布置图
只有小两口居住,
没有太多隐私需要顾忌,
不如将客餐厅、厨房、卧室全部联通,
打造一个安闲、肆意的两人世界。
书 房
一个大大的书桌,
代替客厅占据落地窗前绝佳区域。
悠闲的假日,学会在这里”虚度时光”。
比如静坐发呆;
比如泡一杯茶,看袅袅雾气消散,
浪费他们的氤氲茶香;
比如摊开一本书,一直消磨到月升日落。
一大面的开放书架,
内部尺寸也经过仔细规划,
一小格尺寸基本为40*25公分,
隔板过长或因承重而变形,
但高度可自行调整。
客 厅
没有了隔断之后,
大大的落地窗提供了充足的采光。
浅淡的白色和木色,
搭配简单的布艺沙发,
开放明亮、文艺清新。
作为共同生活的家庭成员,
猫主子的爬架当然也少不了。
厨 房
原始厨房只有一段一米出头的橱柜,
设计师结合吧台,改为U型橱柜,
方便屋主日常制作简餐,
也增加了收纳和操作空间。
小户型在电器的尺寸上考虑的可能要更细致一点,
为了配合厨房空间,
特别选了尺寸上更为窄高的西门子9套洗碗机,
而非常规的8套式。
卧 室
卧室和公共空间通过玻璃隔断划分,
既满足了开放的需求,让视线无限延伸,
又免去了猫主子进衣帽间和卧室“造反”的困扰。
房子层高足有2.9米,
常规移门高度只有2.1米,
为了降低成本,减少安全风险,
我们将移门做了上下分隔而不是整面玻璃。
卧室也做了休闲飘窗,
为了不破坏绝对C位——书房的采光和视野,
屋主选择将晾衣区放在这里。
床头安装了伸缩晾衣架,需要时可以抽出。
利用原有餐区制作衣帽间,
为了通行方便,
衣帽间没有完全封闭,而是在两侧用移门隔断。
后来为了节省造价,
在近卧室一侧改用布帘作为遮挡。
常规衣柜深度60公分,
开门55-60,移门60-65,
这里衣帽间没有做门,深度只留了55公分。
为了能够供一个人自由转身不碰到衣物,
过道留了近90公分。
卫生间
原来卫生间过于拥挤,
将干区分离,
结合洗衣机,放在过道上。
选用挂壁马桶,
一方面因为做了移位方便排污,
一方面节省马桶占用空间。
看似随性实则用心的装修,
因为生活的理想就是理想的生活吖~
关联阅读
点击图片查看案例详情
▼▼▼
长按关注
犀宅原创装饰
地址:上海市普陀区长寿路1118号悦达国际大厦A座18D
客服
消息
收藏
下载
最近

























