查看完整案例


收藏

下载
父母留下的老房子,使用面积只有30平,但是为了小孩补习方便我们决定还是装修好。一通到底的条头糕,只有一个卧室,要满足我们一家三口的居住要求,对设计师的空间改造能力要求还是很高的。
我们在网上看了很多案例最后找到犀宅,设计师考虑的很周到,完全满足了我的设想。装修期间因为很忙,基本上材料都是设计师帮我们看,我们只负责付钱,施工上也很省心。看小孩念书的情况,未来可能要置换,到时还找你们。
——屋主
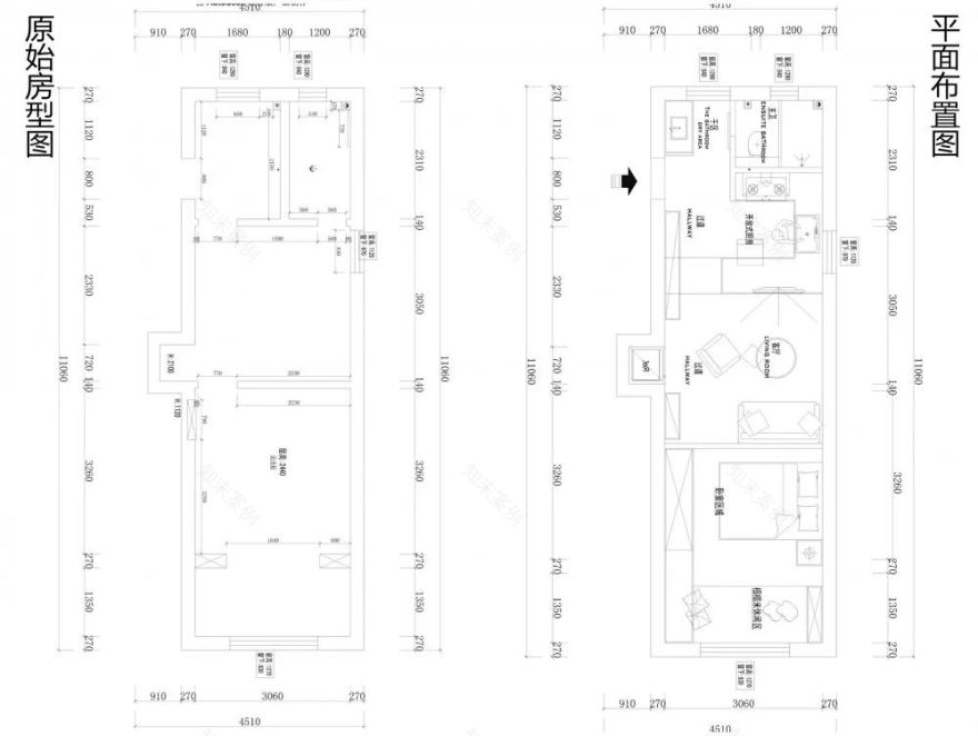
户型分析
房子信息:
建筑面积:43
使用面积:33
设计费:7200
半包费用:6万
硬装:11万
总造价(包含家具电器):14.5万
老公房常见的“一字型”户型,层高矮,分割空间多,厨卫狭小,空间逼仄,缺乏储物。
屋主一家三口居住,希望夫妻和小朋友床位分开,有小朋友的学习区,有足够的储物区、开放式厨房和干湿分离。
我们通过结合采光点,充分利用房型特点,对格局进行了调整。
客餐厅
厨卫区域重新规划,释放进门空间改为卫生间干区。厨房改为开放式,台面延伸制作吧台式餐桌,既扩大了厨房空间,也让整体动线更合理流畅。
橱柜转角结合开放柜,餐桌上方灯具结合置物架,现场制作带抽屉电视柜。因为空间很小,为了增加储物,可以说是“寸土必争”。
卫生间
进门左侧宽度1120,正好将卫生间干区外移,改成干湿分离。节省开门空间,卫生间采用上轨移门。
厨卫区域和客餐厅、过道地面采用地砖和地板错落拼接,兼顾实用和美观性。
卧室
层高只有2米4,客厅和卧室墙面内嵌玻璃隔断,客餐厅卧室区域相互联通,延伸空间进深弱化层高矮的不适感,同时对客厅采光起补充作用。
地台、储物柜、书桌相结合,这里是供小朋友休息、学习的区域,实现屋主和小孩分开睡的需求。
关联阅读
点击图片查看案例详情
▼▼▼
长按关注
犀宅原创装饰
地址:上海市普陀区长寿路1118号悦达国际大厦A座18D
客服
消息
收藏
下载
最近





















